Shenley Road, Camberwell, SE5

£685,000
Under Offer
This property listing is now Under Offer

2 Bedroom Flat for sale in London

1 2 1
  • Two Lovely Patio Gardens
  • Generous Living Area
  • Two Double Bedrooms
  • Much-Loved Location
  • Leasehold

Excellent Two Bedder With Stylish Decor and Two Separate Private Gardens.

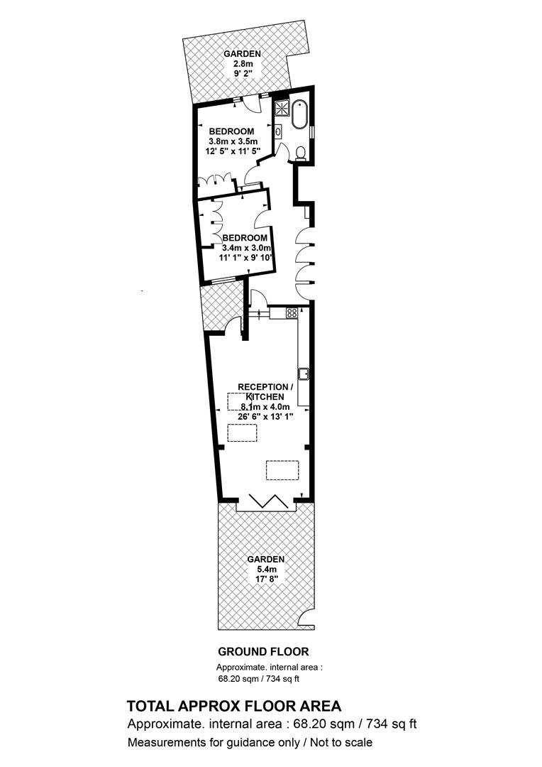
Beautifully spacious, perfectly placed, oodles of storage and two separate private gardens - this splendid two bedder really has it all! It sits on the coveted corner of Shenley Road and Lyndhurst Grove, within a few minutes stroll of Bellenden Village, Warwick Gardens and the Camberwell Grove Conservation Area. The accommodation includes two double bedrooms, fancy bathroom (with roll top bath) and a huge open plan living space/kitchen. You further benefit from a neat storage cellar, private entrance and side access point. The seemingly endless social and culinary attractions of Peckham and Camberwell are each walkable as are some fantastic transport links at Peckham Rye Station including swift services to London Bridge, Elephant & Castle, Blackfriars, Clapham and Canada Water for the Jubilee Line.

Enter on the Lyndhurst Grove side into a large L-shaped hall with neutral decor and some lovely stripped pine floor boards. Access to the storage cellar is offered via a neat hatch. There's space for a table, brollies and shoes. Head right to find the first double bedroom which enjoys access to the paved patio garden. High wooden fencing and abundant mature flora afford you privacy and peace. The bedroom has double built-in wardrobes and plenty of shelving. Your handsome bathroom sits next door with a swanky walk-in shower, period style suite and a large roll top bath. There's yummy modern floor and wall tiles and a chrome heated towel rail.

Your second double bedroom comes next along the hall with more fitted storage, high ceilings and pine floorboards. The radiators, as throughout, as solid cast iron school house style. Back at the entrance, you descend three steps to find that jaw dropping living area which stretches a cool eight metres. Your kitchen cabinets are slick and plentiful. There's a four ring gas hob, oven, ceramic sink, integrated dishwasher and washing machine. As the space widens it allows for a decked light well on the left hand side - perfect for some potted plants. The dining and seat areas stretch forth with three separate overhead skylights and a wall of sliding glass doors supplying a wealth of daylight. The rear doors frame your beautiful rear garden which is not overlooked and boasts some well-stocked raised planters and a side access point - summer ahoy!

The much-celebrated Toad bakery is literally at the bottom of the road - being so close allows you avoid queues! Cafe Mondo is in the same spot and is eproving a real hit. South London Gallery and Camberwell College of Arts, plus the quirky Bellenden Road shops, are at your fingertips. You have all sorts of buses at the end of the road travelling into and across London with night services too. A 10 minute walk has you at either Denmark Hill or Peckham Rye mainline stations (both Zone 2) with services to Victoria, Blackfriars, Farringdon and beyond, (to St Albans and even Stanstead!), or east to London Bridge and Cannon Street. Dulwich Foundation schools are easily accessible by bus or car. The area is also home to one of London's best hospitals, Kings College, which is a 10-minute walk away. Camberwell enjoys an eclectic variety of independent food stores and a number of excellent bars and restaurants including the Tiger and the award-winning Camberwell Arms which does a cracking Sunday lunch. The Grove House Tavern is packing them in all year round!
Tenure: Leasehold

Lease Length: 159 years remaining

Council Tax Band: C

Property Ref: 58297_34153897

Share:

Similar Properties

Camberwell Grove, Camberwell, SE5

2 Bedroom Flat | £685,000

Gorgeous Grade II Listed Georgian Two Bedder on Finest Street - CHAIN FREE.With a picture perfect finish, high ceilings,...

Kirkwood Road, Nunhead, SE15

2 Bedroom Flat | Offers in excess of £680,000

Beautifully Extended Two Bed Period Conversion with Private Garden. Expertly extended and well arranged, this fantastic...

Glengarry Road, East Dulwich, SE22

3 Bedroom Flat | Offers in excess of £675,000

Stunning Split-Level Three Bedroom Period Flat in Ideal Location.Situated on one of SE22's most sought-after roads, is t...

Camberwell Grove, Camberwell, SE5

2 Bedroom Flat | £700,000

Large Two Bedroom Georgian Conversion With Private Garden in Conservation Area - CHAIN FREE.Spacious and perfectly place...

Flaxman Road, Camberwell, SE5

2 Bedroom Flat | Offers in excess of £700,000

Huge Split Level Period Two Bedder With Generous Garden. Enjoying stylish and sympathetic decor throughout, this beautif...

Denman Road, Peckham, SE15

2 Bedroom Flat | £700,000

Divine Split Level Two Bedroom Flat With Juliette Balcony.Spread generously over the top two floors of a perfectly place...

Wooster & Stock (Nunhead)

Nunhead Green, Nunhead, London, SE15 3QQ

020 7952 0595

How much is your home worth?

Use our short form to request a valuation of your property.

Request a Valuation

Mortgage Calculator

Amount Borrowed: £
Total Amount Repayable: £
Total Monthly Payment: £
©2026 The Guild of Property Professionals. All rights reserved. Terms and Conditions | Privacy Policy | Cookie Policy | Complaints Policy | Members Login
The Guild of Property Professionals Trading Address: 121 Park Lane, London W1K 7AG. GPEA Limited. Registered in England & Wales.  Company No: 02819824.  Registered Office Address: 2 St. Stephen's Court, St. Stephen's Road, Bournemouth, Dorset, England, BH2 6LA.  VAT Registration No: 576 8795 61
Book a Property Valuation Update Cookies Preferences