Kirkwood Road, Nunhead, SE15

Offers in excess of
£680,000
Under Offer
This property listing is now Under Offer

2 Bedroom Flat for sale in London

1 2 1
  • Private Garden
  • Lovely Kitchen Extension
  • Two Double Bedrooms
  • Share of Freehold

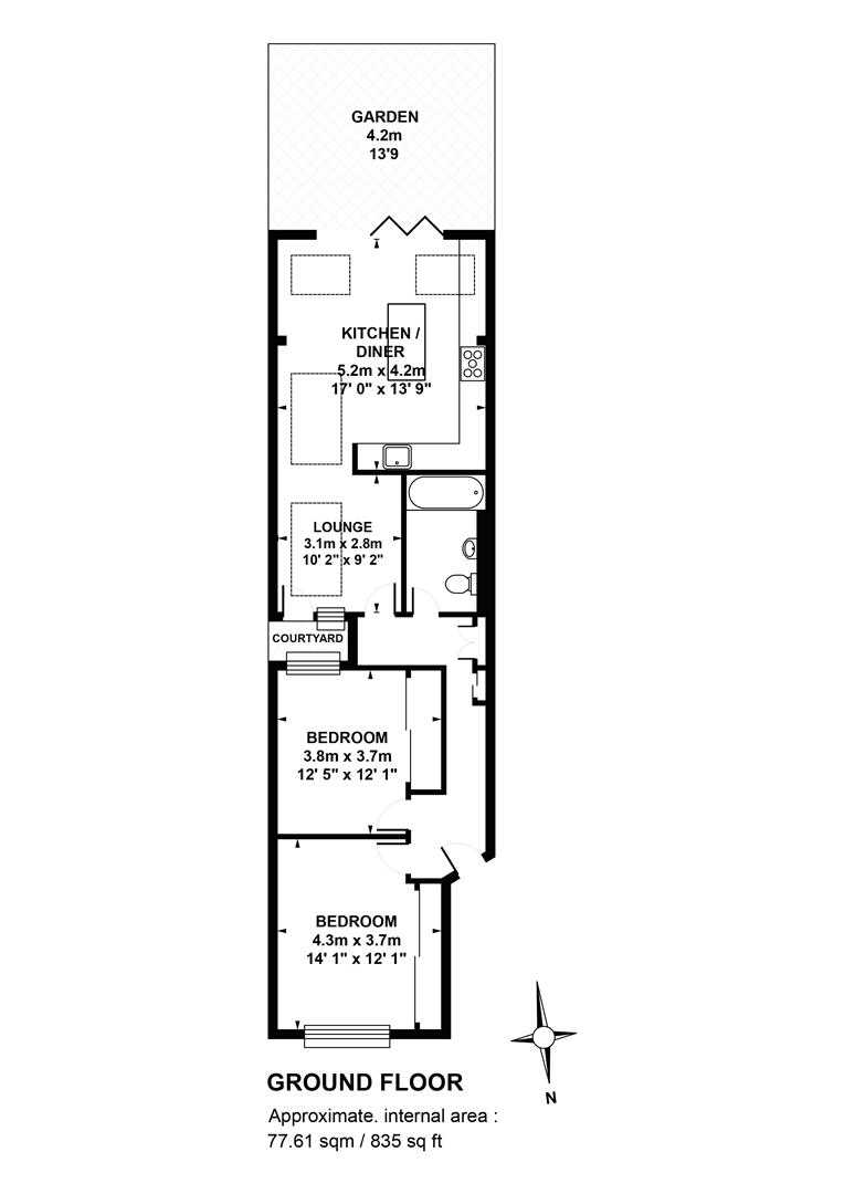
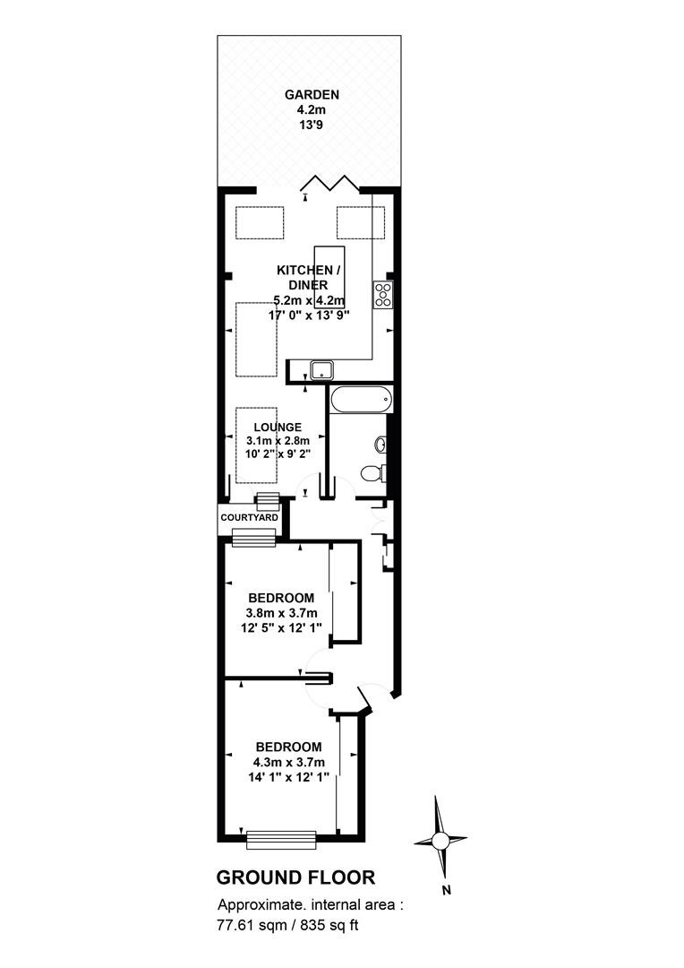
Beautifully Extended Two Bed Period Conversion with Private Garden.

Expertly extended and well arranged, this fantastic two bedder offers a comfortable and spacious living environment. It sits on the ground floor of a well-placed period number and boasts a private split-level garden to boot. Two double bedrooms and a handsome contemporary bathroom adds to the charm. Transport-wise you're well catered for. There are extremely good train links; you can choose from Nunhead or Queens Road Peckham stations (9 minutes and 12 minutes to each respectively by foot). The journey to London Bridge from Queens Road Peckham station is just eight minutes and it of course benefits from being on the 'Ginger Line' taking you to Shoreditch in 18 minutes via overground. Nunhead also offers a fast train service to Victoria, St. Pancras and Blackfriars.

A shared garden and entrance lead inward. Your inner hall initially leads you to a front facing double bedroom with recessed storage and plenty of light. The second double has a peaceful rear aspect and more fitted storage. Further along the hall you find a nicely presented modern bathroom with shower and crisp white suite. The lounge leads off from the end of the hall and enjoys a huge overhead skylight and some fancy wall tones. An open arch leads from here to the full-width kitchen/diner which offers unbeatable cooking, dining and entertaining space. There's a central island for additional food prep and a full range of integrated appliances. A set of tri-fold glass doors open wide to your patio and garden - it's a magic spot for summer al-fresco dining.

The location leaves you just a short stroll from the village-esque Nunhead Green where you'll find the wonderful Ayres bakery, fishmongers, butchers, D4100 bar and pizza joint, numerous pubs, wine bars and two amazing coffee shops. It's a short walk to Peckham Rye and the wide variety of bars, restaurants and shops in Peckham including Franks for rooftop summer drinks and Nola for award winning coffee. Peckham also boasts a famous cinema with tickets for just £5.99, gyms and large supermarkets. In the other direction is Nunhead cemetery, good for exercising the dog or just enjoying the greenery and stunning views of St Paul's. You are also in walking distance of East Dulwich's fab highstreet or Brockley for wine bars, Hilly Fields picnics or the great Saturday market.

Tenure: Share of Freehold

Lease Length: 999 years

Council Tax Band: C

Property Ref: 34213462

Share:

Similar Properties

Camberwell Grove, Camberwell, SE5

2 Bedroom Flat | £675,000

Wonderful Two Bedroom Georgian Conversion with Shared Garden - CHAIN FREE.Resting along the tree lined and magical Cambe...

Grosvenor Terrace, Camberwell, SE5

2 Bedroom Apartment | £675,000

Spacious Split-Level Two Bedder With Private Front and Rear Gardens - CHAIN FREE.This handsome two bedder enjoys a peace...

Glengarry Road, East Dulwich, SE22

3 Bedroom Flat | Offers in excess of £675,000

Stunning Split-Level Three Bedroom Period Flat in Ideal Location.Situated on one of SE22's most sought-after roads, is t...

Shenley Road, Camberwell, SE5

2 Bedroom Flat | £685,000

Excellent Two Bedder With Stylish Decor and Two Separate Private Gardens. Beautifully spacious, perfectly placed, oodles...

Camberwell Grove, Camberwell, SE5

2 Bedroom Flat | £700,000

Large Two Bedroom Georgian Conversion With Private Garden in Conservation Area - CHAIN FREE.Spacious and perfectly place...

Flaxman Road, Camberwell, SE5

2 Bedroom Flat | Offers in excess of £700,000

Huge Split Level Period Two Bedder With Generous Garden. Enjoying stylish and sympathetic decor throughout, this beautif...

Wooster & Stock (Nunhead)

Nunhead Green, Nunhead, London, SE15 3QQ

020 7952 0595

How much is your home worth?

Use our short form to request a valuation of your property.

Request a Valuation

Mortgage Calculator

Amount Borrowed: £
Total Amount Repayable: £
Total Monthly Payment: £
©2026 The Guild of Property Professionals. All rights reserved. Terms and Conditions | Privacy Policy | Cookie Policy | Complaints Policy | Members Login
The Guild of Property Professionals Trading Address: 121 Park Lane, London W1K 7AG. GPEA Limited. Registered in England & Wales.  Company No: 02819824.  Registered Office Address: 2 St. Stephen's Court, St. Stephen's Road, Bournemouth, Dorset, England, BH2 6LA.  VAT Registration No: 576 8795 61
Book a Property Valuation Update Cookies Preferences