Derwent Grove, East Dulwich, SE22

Offers in excess of
£800,000
Under Offer
This property listing is now Under Offer

2 Bedroom Flat for sale in London

1 2 2
  • Beautiful Private Garden
  • Private Side Access Point
  • Stunning Full-Width Living Space
  • Master Ensuite
  • Leasehold flat + freehold ownership of building

Exceptional Two Bedroom Period Conversion with Stunning Private Garden.

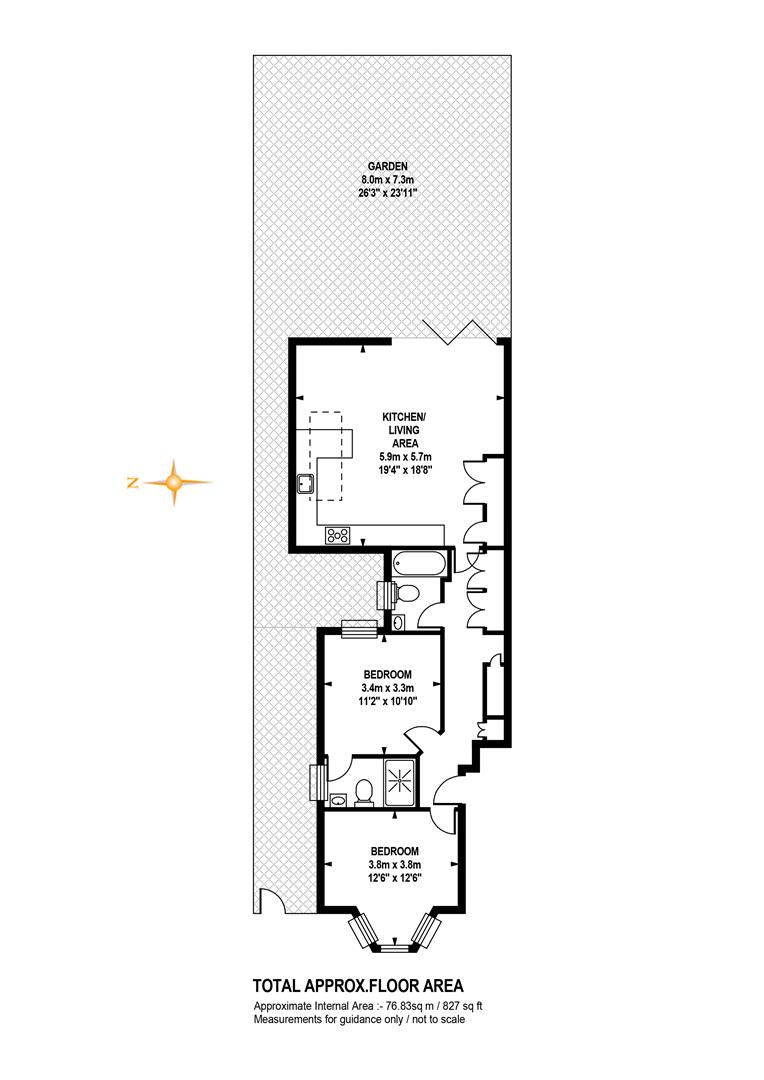
We can't speak more highly of this beautifully augmented two bedroom period conversion - it's premium in all aspects! A glorious open-plan full-width living area with generous fully integrated contemporary kitchen faces onto a most-enchanting split-level private garden with integrated seating and the dappled shade of a mature Magnolia tree. It's simply splendid. the accommodation further comprises two lovely bedrooms (master ensuite) and a fully tiled bathroom. There's plenty of bespoke storage and a super-handy laundry cupboard as well as nifty low level recessed shoe storage. As though the interior wasn't enough to wet your whistle, the property sits on a peaceful, mature and highly sought-after residential -no-through' road just ten seconds from luscious Lordship Lane - that's all the boxes ticked! You're a pleasant 3 minute ramble to East Dulwich Station for a swift 13 minute service to London Bridge. You're around 15 minute walk (or 4 minute bus) to Denmark Hill for the Windrush Line and many more central connections.

A key benefit of this property is that it is being sold with the freehold for the entire building, offering the incoming purchaser greater control and long-term security. The current owners manage the building insurance on behalf of both flats, with a fair proportion recharged to the upstairs property. This straightforward arrangement is expected to continue. The sellers have confirmed that the freehold title will be transferred to the buyer on completion.

A shared hall leads to your ground floor door which opens to a welcoming hall with neutral tones. Beautiful oak flooring continues left to the first of your double bedrooms - a neat front facing double with Farrow and Ball paint shades, crisp cornicing and some fab designer wallpaper on the ceiling - it's a lovely touch. The second double bedroom comes further along the hall with fitted storage and adjoining fully tiled ensuite shower. Here you benefit from heated towel rail, trough-style wash hand basin, wall-hung loo and large walk-in shower with drencher. A side aspect casement window will let steam out.

The hall descends two steps (past your nifty shoe nook) and widens to supply a run of bespoke storage and that fab laundry cupboard. Opposite this you find your bathroom, another fully tiled affair with all the trimmings. Last but not least comes that utterly gorgeous full-width kitchen/living space which offers a perfect arrangement of cooking, dining and lounging opportunites. The kitchen cabinets and counters run on three sides for tonnes of spice storage and room for dicing and slicing. Appliances include a five ring gas hob, AEG oven and microwave, integrated fridge/freezer and dishwasher. Further cabinet space sits on the far wall.

There's plenty of room to seat 6-8 for dinner and the large L-shaped sofa you've been dreaming of. A wall of wide, sliding glass doors frame and open to your paved patio. From here, past a seating area, three polite York stone steps rise upward to the lawn which is crowned by that mature magnolia, rather aptly known as a 'Grandmother tree'. There are roses on the rear wall, a seamless storage shed and a host of well-chosen plants, posies and shrubs. You'll just love it.

The property is ideally situated next to some of the area's most popular nurseries, state and private primary and secondary schools. Lordship Lane and Dulwich Village, both a short stroll away, provide access to extensive shops, pubs and restaurants, including the popular East Dulwich Tavern (EDT) as well as East Dulwich Picture House, perfect for an evening at the cinema. Both Dulwich Park and Brockwell Park are easily accessible. You'll spend many happy weekend mornings at nearby gyms and yoga studios, followed by brunch and a walk through one of the many nearby green spaces.

Tenure: Leasehold flat + freehold ownership of building

Lease Length: 990 years

Council Tax Band: B

Property Ref: 34554214

Share:

Similar Properties

Scylla Road, Nunhead, SE15

3 Bedroom Semi-Detached House | Guide Price £800,000

Beautifully Extended Victorian Three Bed Home With Stylish Finish - CHAIN FREE.GUIDE PRICE £800,000 - £865,000Sitting wi...

Maldon Close, Camberwell, SE5

3 Bedroom Semi-Detached House | £800,000

Lovely Three Bedroom Home in Popular Peaceful Spot - CHAIN FREE.Lovingly owned by just one family since it was built in...

Kimberley Avenue, Nunhead, SE15

2 Bedroom Terraced House | Guide Price £800,000

Fantastic Two Bedroom House With Studio and Huge South Facing Garden.GUIDE PRICE £800,000 - £850,000.Viewings start Satu...

Camberwell Grove, Camberwell, SE5

2 Bedroom Terraced House | £835,000

Utterly Precious Two Bed Georgian Stable-Conversion off Camberwell Grove - CHAIN FREE.We've found the quaintest part of...

Choumert Grove, Peckham, SE15

3 Bedroom Terraced House | £850,000

Bright Spacious Period Style Home Over Three Lovely Floors - CHAIN FREE.This unique Victorian style home, just moments f...

Cormont Road, Camberwell, SE5

3 Bedroom Flat | £850,000

Vast Grade II Listed Mansion Block Three Bedder - Over 1200Sq Ft - CHAIN FREE.They don't build them like this anymore! T...

Wooster & Stock (Nunhead)

Nunhead Green, Nunhead, London, SE15 3QQ

020 7952 0595

How much is your home worth?

Use our short form to request a valuation of your property.

Request a Valuation

Mortgage Calculator

Amount Borrowed: £
Total Amount Repayable: £
Total Monthly Payment: £
©2026 The Guild of Property Professionals. All rights reserved. Terms and Conditions | Privacy Policy | Cookie Policy | Complaints Policy | Members Login
The Guild of Property Professionals Trading Address: 121 Park Lane, London W1K 7AG. GPEA Limited. Registered in England & Wales.  Company No: 02819824.  Registered Office Address: 2 St. Stephen's Court, St. Stephen's Road, Bournemouth, Dorset, England, BH2 6LA.  VAT Registration No: 576 8795 61
Book a Property Valuation Update Cookies Preferences