Lowman Road Islington

Offers Over
£400,000
SSTC
This property listing is now SSTC

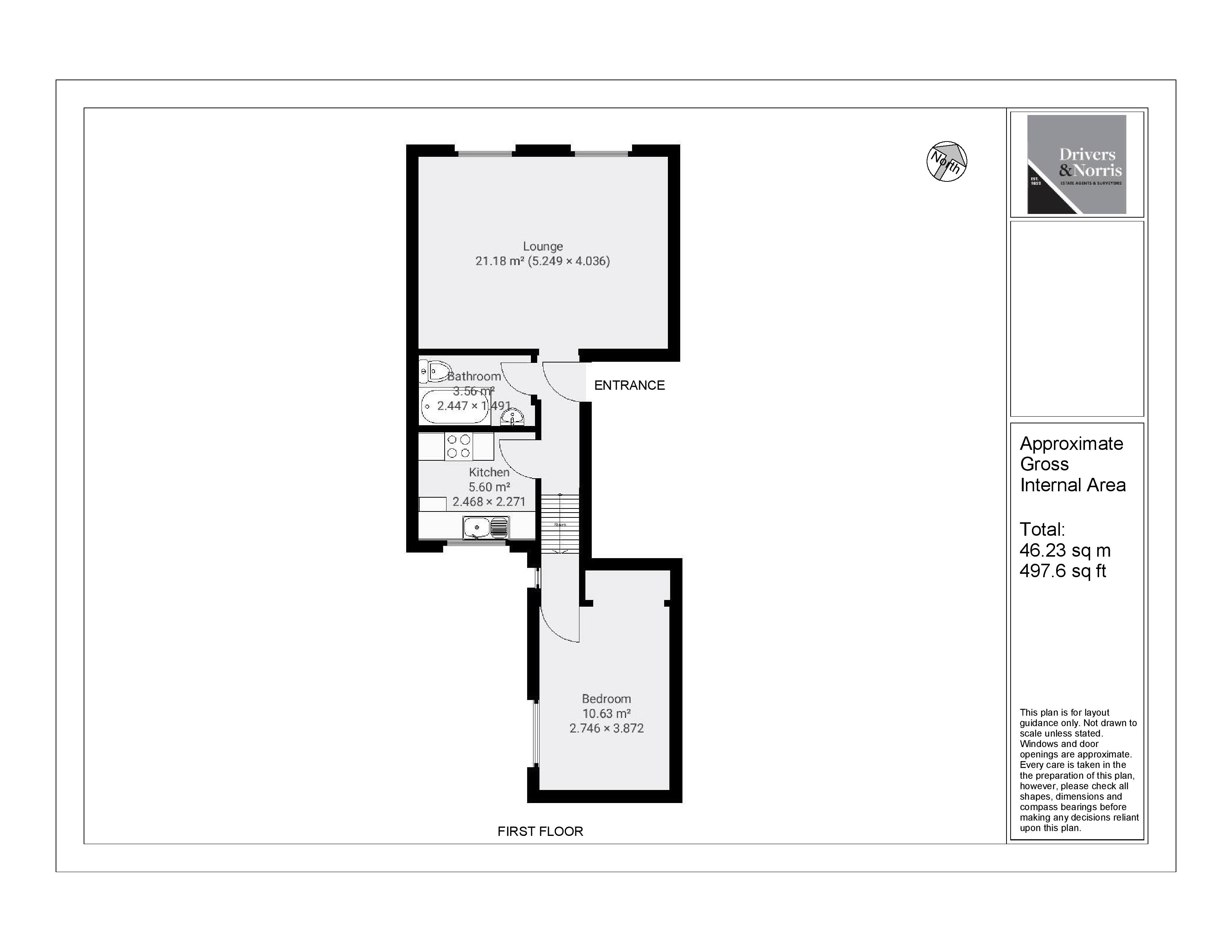
1 Bedroom Flat for sale in London

1 1 1
  • Spacious Lounge & double bedroom
  • New double glazed sash window
  • New Roof recently done
  • Holloway Road station 5 minutes
  • Period features
  • Long Lease
  • Close to amenities

A well presented one bedroom apartment on the first floor of this imposing period property located on this quiet tree lined residential turning just moments from the vibrant Holloway Road with its array of bars, cafes ,restaurants, high street & independent shops and Holloway Road Underground Station (Piccadilly Line)
The accommodation comprises, entrance hall, lounge, kitchen, bedroom and bathroom/WC and benefits from storage in each room and extensive loft storage area above the hall, bathroom and bedroom.

Important Information

  • This is a Leasehold property.
  • The annual cost for the ground rent on this property is £200
  • The annual service charges for this property is £1173
  • This Council Tax band for this property is: D
  • EPC Rating is D

Property Ref: DAN_DAN230247

Share:

Similar Properties

Fairfield Close North Finchley

2 Bedroom Flat | Guide Price £400,000

2 BEDROOM, TOP FLOOR NEW BUILD APARTMENT; NORTH FINCHLEY Newly built, two bedroom apartment, situated in the roof space...

Fairfield Close Finchley

2 Bedroom Flat | Guide Price £400,000

2 BEDROOM, TOP FLOOR NEW BUILD APARTMENT; NORTH FINCHLEY Newly built, two bedroom apartment, situated in the roof space...

Highgate Avenue Highgate

1 Bedroom Flat | Asking Price £400,000

Top floor one bedroom converted apartment within this imposing double fronted semi detached period property located on t...

Holloway Road Islington

House | Guide Price £415,000

A well-presented apartment, set on the top floor of a warehouse conversion. The apartment has a spacious and light-fille...

Camden Road Islington

2 Bedroom Flat | Guide Price £425,000

Two bedroom duplex conversion within this charming school building located in the Hillmarton conservation area close to...

Two-Bedroom Garden Flat

2 Bedroom Ground Floor Flat | Guide Price £450,000

Conveniantly located just 0.3m from Finsbury Park Station, this two-bedroom apartment with a private rear garden present...

Drivers & Norris (Holloway)

Holloway, London, N7 6HP

0207 607 5001

How much is your home worth?

Use our short form to request a valuation of your property.

Request a Valuation

Mortgage Calculator

Amount Borrowed: £
Total Amount Repayable: £
Total Monthly Payment: £
©2026 The Guild of Property Professionals. All rights reserved. Terms and Conditions | Privacy Policy | Cookie Policy | Complaints Policy | Members Login
The Guild of Property Professionals Trading Address: 121 Park Lane, London W1K 7AG. GPEA Limited. Registered in England & Wales.  Company No: 02819824.  Registered Office Address: 2 St. Stephen's Court, St. Stephen's Road, Bournemouth, Dorset, England, BH2 6LA.  VAT Registration No: 576 8795 61
Book a Property Valuation Update Cookies Preferences