Top Floor Three-Bedroom Apartment | Private Garden | Renovation Opportunity | Sought-After Islington Location

Guide Price
£650,000

3 Bedroom Flat for sale in London

1 3 1
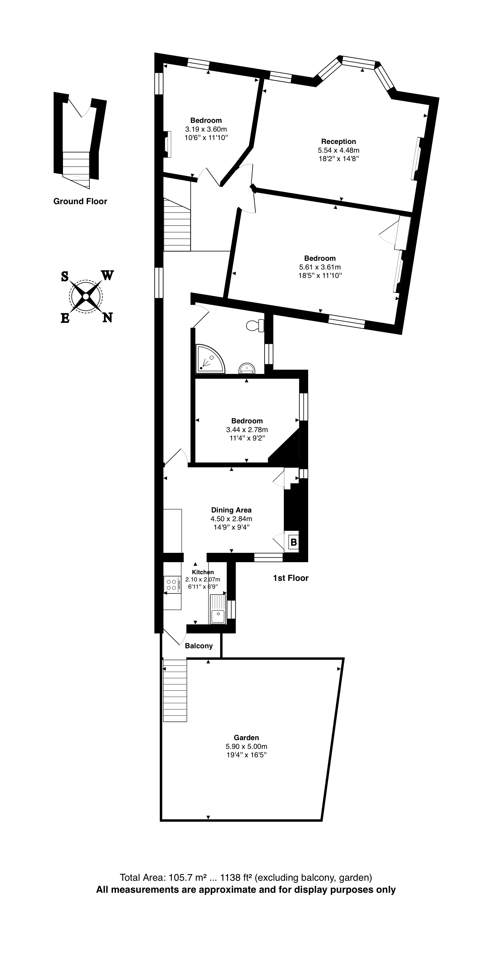
  • Key Features: Top floor Three well-proportioned bedrooms Bright bay-fronted reception room Private garden Freehold Excellent renovation opportunity Chain free

Boasting impressive ceiling heights and a bright bay-fronted reception room, the property is filled with natural light and character. The layout currently comprises three bedrooms, a spacious reception, separate kitchen and bathroom, offering flexible living arrangements ideal for families, sharers or those working from home.

To the rear, the property benefits from a private garden, a rare and highly sought-after feature for a property of this type and location.

While the flat would benefit from modernisation, it presents a fantastic value-add opportunity for buyers looking to put their own stamp on a home and significantly enhance its value.

Ideally positioned within easy reach of Tufnell Park, Holloway and Archway, with excellent transport links, local amenities, and green spaces all nearby.

Important Information

  • This Council Tax band for this property is: E

Property Ref: DAN260163

Share:

Similar Properties

Carronade Court, Eden Grove

3 Bedroom Flat | Asking Price £650,000

Three bedroom apartment set within a PRIVATE DEVELOPMENT , on the 9th Floor and located moments away from Holloway Tube...

Manor Gardens, Islington

3 Bedroom Flat | Guide Price £625,000

Located within a sought-after gated development in Islington, this impressive three double bedroom, two bathroom apartme...

York Way, Islington

3 Bedroom Duplex | Offers in excess of £625,000

Three bedroom DUPLEX apartment set over the TOP FLOORS of this PERIOD CONVERSION which was recently completely rebuilt a...

Arthur Road, Islington

2 Bedroom Flat | Fixed Price £675,000

Tucked away on a quiet residential turning, within easy reach of Gillespie Park Nature Reserve, and moments from Arsenal...

Two Bedroom Period Maisonette - Highgate Village

2 Bedroom Maisonette | Guide Price £700,000

Positioned just moments from the heart of Highgate Village, this elegant two-bedroom maisonette offers charm, character...

Stylish Two-Bedroom, Two-Bathroom Apartment with Private Terrace in a Modern Camden Development

2 Bedroom Flat | Offers in excess of £700,000

Set on a quiet, tree-lined residential turning in Camden, this beautifully presented two-bedroom, two-bathroom apartment...

Drivers & Norris (Holloway)

Holloway, London, N7 6HP

0207 607 5001

How much is your home worth?

Use our short form to request a valuation of your property.

Request a Valuation

Mortgage Calculator

Amount Borrowed: £
Total Amount Repayable: £
Total Monthly Payment: £
©2026 The Guild of Property Professionals. All rights reserved. Terms and Conditions | Privacy Policy | Cookie Policy | Complaints Policy | Members Login
The Guild of Property Professionals Trading Address: 121 Park Lane, London W1K 7AG. GPEA Limited. Registered in England & Wales.  Company No: 02819824.  Registered Office Address: 2 St. Stephen's Court, St. Stephen's Road, Bournemouth, Dorset, England, BH2 6LA.  VAT Registration No: 576 8795 61
Book a Property Valuation Update Cookies Preferences