Westwell Road, London, SW16

Guide Price
£475,000
Under Offer
This property listing is now Under Offer

2 Bedroom Flat for sale in London

1 2 1
  • Share of freehold
  • Chain Free
  • Gyms, Restaurants and shops all within walking distance
  • Streatham common and the rookery moments away
  • Private courtyard area
  • Direct access to a large communal garden
  • 0.3 Miles to Streatham Common station
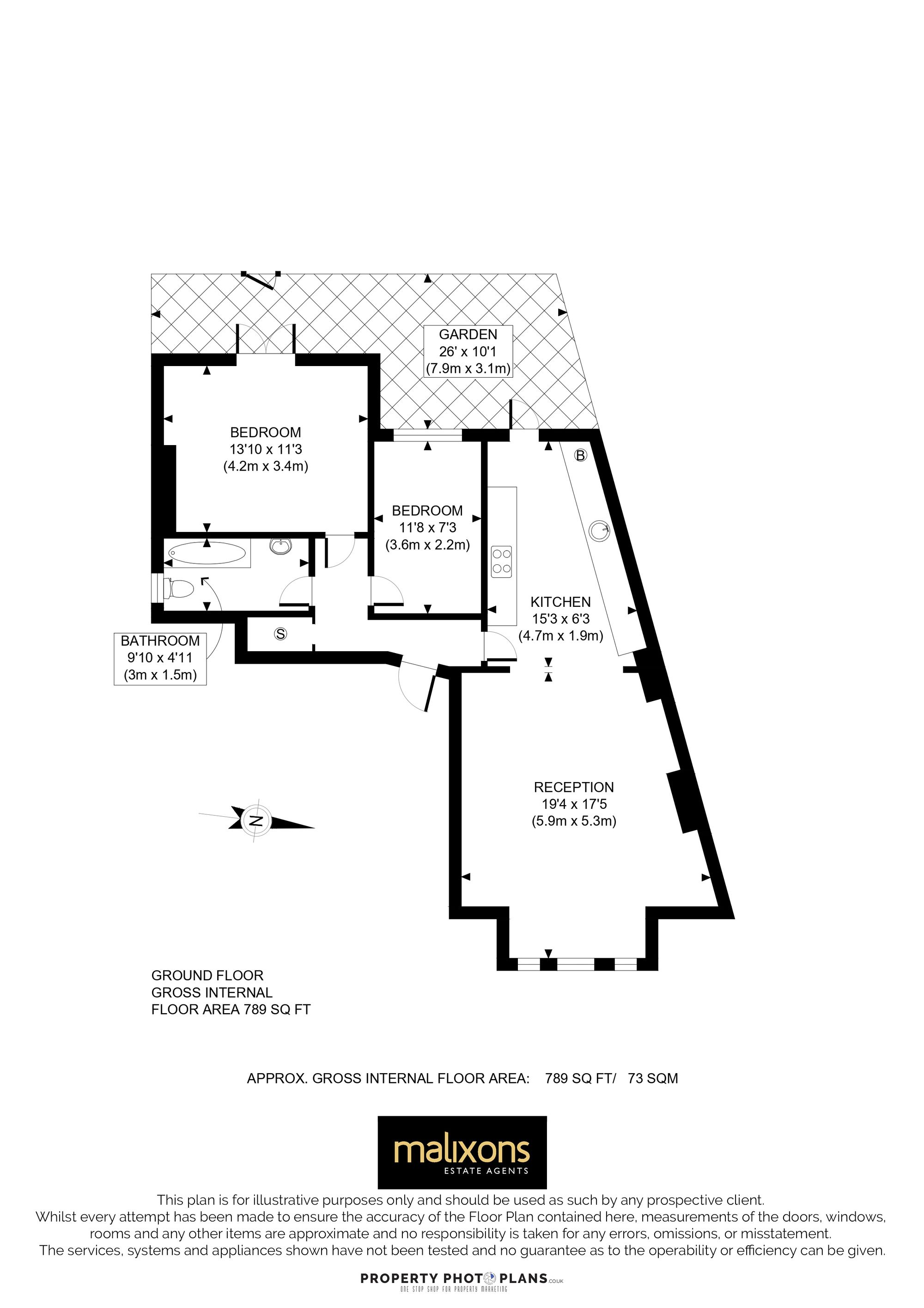
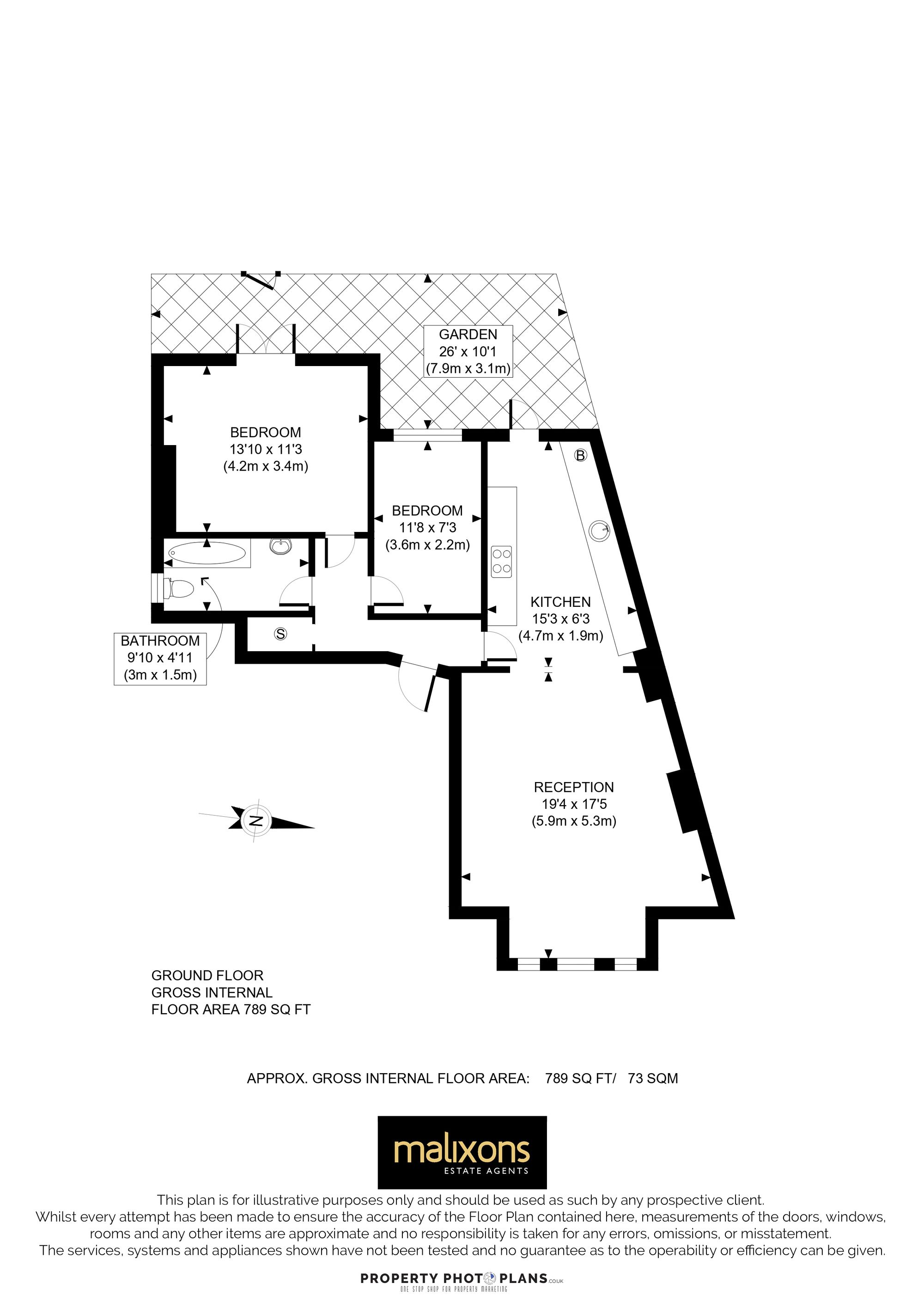
  • Just under 800 sq ft
  • Victorian conversion
  • Schools and nurseries nearby

Set within an attractive Victorian conversion, this spacious and beautifully maintained ground floor home offers just under 800 sq ft of well-designed living space. The property benefits from a share of freehold and is offered chain-free, presenting a hassle-free purchase in a sought-after location.

Inside, the home effortlessly blends classic period features with modern finishes. High ceilings and generous proportions create a bright, airy atmosphere, while the layout has been carefully considered to maximise comfort and practicality. The generous reception room offers plenty of space for both living and dining, complemented by a separate, well-equipped kitchen.

To the rear, a private courtyard provides a peaceful outdoor retreat—ideal for morning coffee, quiet evenings, or entertaining friends. Residents also have direct access to a large, well-kept communal garden, adding valuable outdoor space rarely found in properties of this type.

Situated in the heart of Streatham, the property is just 0.3 miles from Streatham Common station, offering fast and frequent connections into central London. Everyday essentials are within easy reach, with a great selection of local shops, cafés, restaurants, gyms, and other amenities all nearby. For those who enjoy time outdoors, Streatham Common and the beautifully landscaped Rookery Gardens are only a short walk away, offering a welcome escape from city life.

Important Information

  • This is a Share of Freehold property.
  • EPC Rating is E

Property Ref: 37d4dc65-3a40-4cc8-96ca-eb67f8ddc9d8

Share:

Similar Properties

Colliers Water Lane, Thornton Heath, CR7

3 Bedroom Terraced House | Guide Price £475,000

GUIDE PRICE £475,000-£525,000 Superb CHAIN FREE three bedroom house located 0.5 miles from Thornton Heath station

Leigham Court Road, London, SW16

3 Bedroom Apartment | Guide Price £450,000

PRESTIGIOUS split level three bedroom apartment in this attractive period building in Streatham Close. NOT TO BE MISSED!

Fountain Road, Anderson House Fountain Road, SW17

3 Bedroom Flat | £450,000

A superb CHAIN FREE three bedroom flat located just 0.5 Miles from Tooting Broadway Station

The Close, Mitcham, CR4

3 Bedroom End of Terrace House | £500,000

CHAIN FREE three bedroom family home located just 0.2 Miles from Tooting Tram Stop

Old School Place, Croydon, CR0

4 Bedroom Terraced House | Guide Price £500,000

Guide Price £500,000 - £550,000FANTASTIC mid terraced family home in a modern development

Trafford Road, Thornton Heath, CR7

4 Bedroom Terraced House | Guide Price £500,000

Charming terraced house with 3 beds + family room (flexible as 4th bedroom) + separate reception, underground cellar. La...

Malixons (Tooting)

Tooting, London, SW17 7AA

020 3196 4789

How much is your home worth?

Use our short form to request a valuation of your property.

Request a Valuation

Mortgage Calculator

Amount Borrowed: £
Total Amount Repayable: £
Total Monthly Payment: £
©2026 The Guild of Property Professionals. All rights reserved. Terms and Conditions | Privacy Policy | Cookie Policy | Complaints Policy | Members Login
The Guild of Property Professionals Trading Address: 121 Park Lane, London W1K 7AG. GPEA Limited. Registered in England & Wales.  Company No: 02819824.  Registered Office Address: 2 St. Stephen's Court, St. Stephen's Road, Bournemouth, Dorset, England, BH2 6LA.  VAT Registration No: 576 8795 61
Book a Property Valuation Update Cookies Preferences