Telford Road, UB1

£490,000
Under Offer
This property listing is now Under Offer

3 Bedroom End of Terrace House for sale in London

1 3 1
  • Driveway
  • Large Garden
  • STPP Huge potential for extension
  • Close to Ealing Hospital
  • Close to local schools
  • Close to Local Amenities
  • Close to Parks
  • 3 bedroom

Council tax band: C.

New to the Market! this Lovely 3 bedroom end of terraced corner plot property situated on Telford Road. 


A perfect priced home for a growing family, this lovely property come with huge benefits which includes, Subject to planning permission to do a side and rear extension. The existing owner had planning permission which is lapsed. 

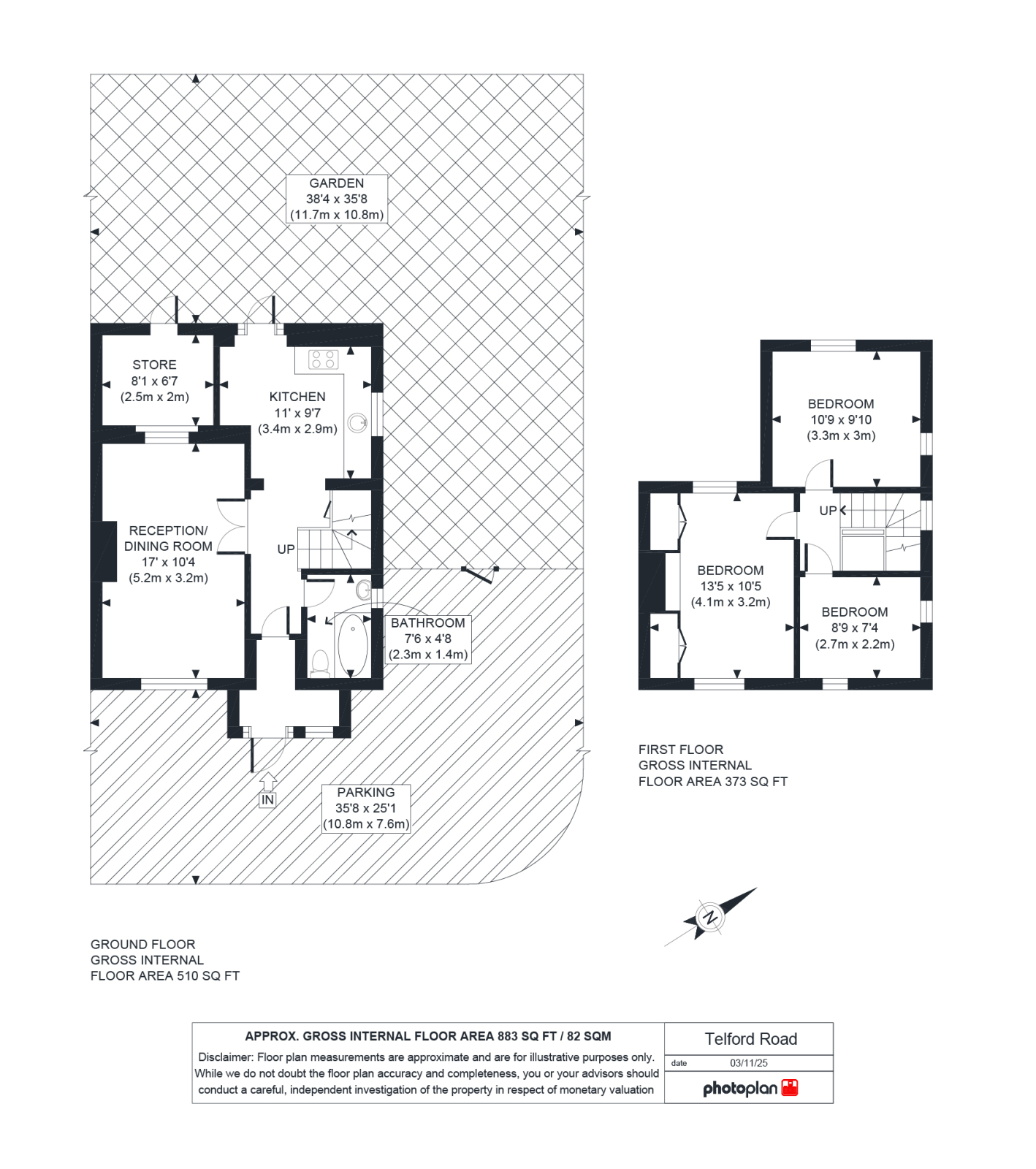
This well-presented property is ideally located on a quiet residential road. The property offers spacious and versatile living throughout, making it perfect if you are seeking a comfortable home. The current owners have also redecorated the property. The Property also offers a driveway for off-street parking. 

The ground floor features a welcoming entrance hallway leads to the Kitchen at the end of the hallway, also on the left of the hallway you will be through to a spacious bright reception with dining area. The property offers a spacious rear garden. Upstairs are 3 bedrooms, two doubles and one single. 

Located within easy reach of Southall Station (Elizabeth Line), residents enjoy quick connections to central London, Heathrow Airport, and Ealing Broadway. Local amenities, schools, parks, and shops are all within walking distance, while the nearby A40 and M4 provide excellent road access into Central London.

Important Information

  • This is a Freehold property.

Property Ref: 632118_homesearch_1622191015

Share:

Similar Properties

Wembley, Middlesex, HA0

2 Bedroom Apartment | £485,000

2 Bed, 2 Bathroom NEW BUILD in Sudbury Town almost 800 sqft Just a 4 minute walk from Subury Town Station (Piccadilly Li...

Lampton Parkside , TW3

2 Bedroom Flat | £480,000

Ready to move in! Discover Apartment E3.57 at The Evergreens - a spacious 760sqft, two bedroom, two bathroom home right...

Lampton Parkside, TW3

2 Bedroom Flat | £472,000

Ready to move in! Welcome to Apartment E3.34 at The Evergreens—a generous 774 sq ft two-bedroom, two-bathroom home perfe...

Randolph Road, UB1

2 Bedroom Flat | £530,000

2 Bedroom Luxury Apartment The Green Quarter Rosemary House

Randolph Road, UB1

2 Bedroom Flat | £540,000

2 Bedroom Luxury Apartment The Green Quarter Rosemary House

Randolph Road, London, UB1

2 Bedroom Flat | £544,000

2 Bedroom Luxury Apartment The Green Quarter Quadrant House

Homesearch (Ealing)

Ealing, London, W5 4QB

020 8560 0125

How much is your home worth?

Use our short form to request a valuation of your property.

Request a Valuation

Mortgage Calculator

Amount Borrowed: £
Total Amount Repayable: £
Total Monthly Payment: £
©2025 The Guild of Property Professionals. All rights reserved. Terms and Conditions | Privacy Policy | Cookie Policy | Complaints Policy | Members Login
The Guild of Property Professionals Trading Address: 121 Park Lane, London W1K 7AG. GPEA Limited. Registered in England & Wales.  Company No: 02819824.  Registered Office Address: 2 St. Stephen's Court, St. Stephen's Road, Bournemouth, Dorset, England, BH2 6LA.  VAT Registration No: 576 8795 61
Book a Property Valuation Update Cookies Preferences