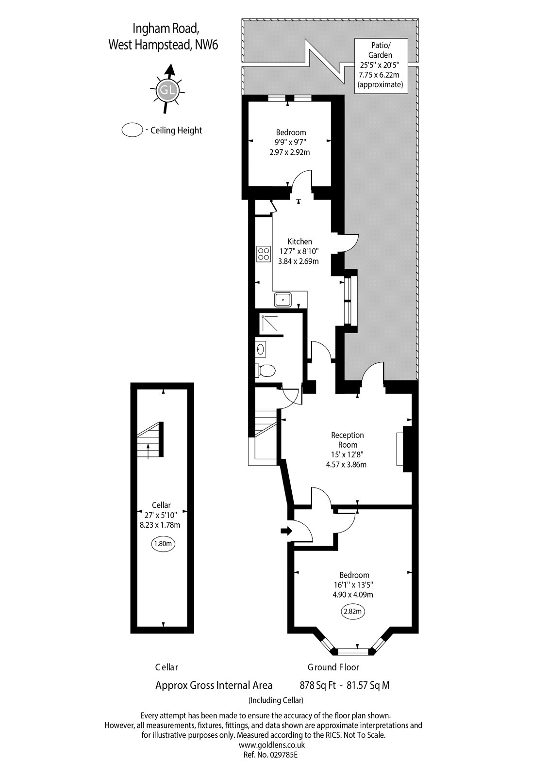
Ingham Road West Hampstead

Guide Price
£775,000

2 Bedroom Flat for sale in London

1 2 1
  • Two Bedroom
  • One Bathroom
  • Private Garden
  • Ground Floor
  • Share Of Freehold
  • Newly Refurbished

A superb opportunity to acquire this beautifully refurbished two-bedroom ground floor garden apartment, set on one of West Hampstead’s finest roads. This stunning home has been thoughtfully modernised throughout, offering a stylish and comfortable living space. The property features a spacious reception room with direct access to a private garden, a principal bedroom, a well-proportioned second bedroom and a contemporary family bathroom.

The apartment also benefits from a large private cellar, providing exceptional storage space. Ideally located on Ingham Road, residents enjoy easy access to the vibrant array of local shops, restaurants, and amenities on Fortune Green Road and West End Lane. Excellent transport connections are close by, including the Jubilee Line, Overground, and Thameslink services at West Hampstead.

Important Information

  • This is a Share of Freehold property.
  • The annual service charges for this property is £900

Property Ref: WES_WES230229

Share:

Similar Properties

Adamson Road, Belsize Park

2 Bedroom Ground Floor Flat | Guide Price £750,000

An exciting opportunity to purchase a wonderful two-bedroom garden apartment located on Adamson Road. This well-presente...

Canterbury House, Kilburn

2 Bedroom Flat | Guide Price £750,000

This beautiful two bedroom duplex apartment is situated on the ground and first floors of this luxurious contemporary wa...

Dennington Park Road, West Hampstead

2 Bedroom Flat | Guide Price £730,000

Nestled on the prestigious Dennington Park Road, one of West Hampstead's most sought-after addresses, this stunning two-...

Pandora Road, West Hampstead

2 Bedroom Ground Floor Flat | Guide Price £799,950

Charming Two -Bedroom Apartment with private Garden Access – Pandora Road, West Hampstead Set on one of West Hampstead’...

Aylestone Place, Brondesbury Park

2 Bedroom Flat | Guide Price £830,000

Aylestone Place is an exclusive development of just nine beautifully crafted homes, comprising six luxury apartments and...

Fairfax Road, South Hampstead

2 Bedroom Penthouse | Guide Price £900,000

This fantastic apartment of over 1,000sq ft of lateral space situated within this small and well-maintained purpose buil...

Oakhill Residential (Belsize Park)

West Hampstead, Belsize Park, London, NW6 1DS

020 3544 4444

How much is your home worth?

Use our short form to request a valuation of your property.

Request a Valuation

Mortgage Calculator

Amount Borrowed: £
Total Amount Repayable: £
Total Monthly Payment: £
©2026 The Guild of Property Professionals. All rights reserved. Terms and Conditions | Privacy Policy | Cookie Policy | Complaints Policy | Members Login
The Guild of Property Professionals Trading Address: 121 Park Lane, London W1K 7AG. GPEA Limited. Registered in England & Wales.  Company No: 02819824.  Registered Office Address: 2 St. Stephen's Court, St. Stephen's Road, Bournemouth, Dorset, England, BH2 6LA.  VAT Registration No: 576 8795 61
Book a Property Valuation Update Cookies Preferences