Louisa Close

£500,000
SSTC
This property listing is now SSTC

2 Bedroom Ground Floor Flat for sale in London

2 1
  • Renewed Lease (ready on completion)
  • 2 Double Bedrooms
  • Secure, Gated Community
  • 30 Second Walk into Victoria Park
  • Modernised Throughout
  • Allocated Parking Bay
  • Catchment for Quality Local Schools

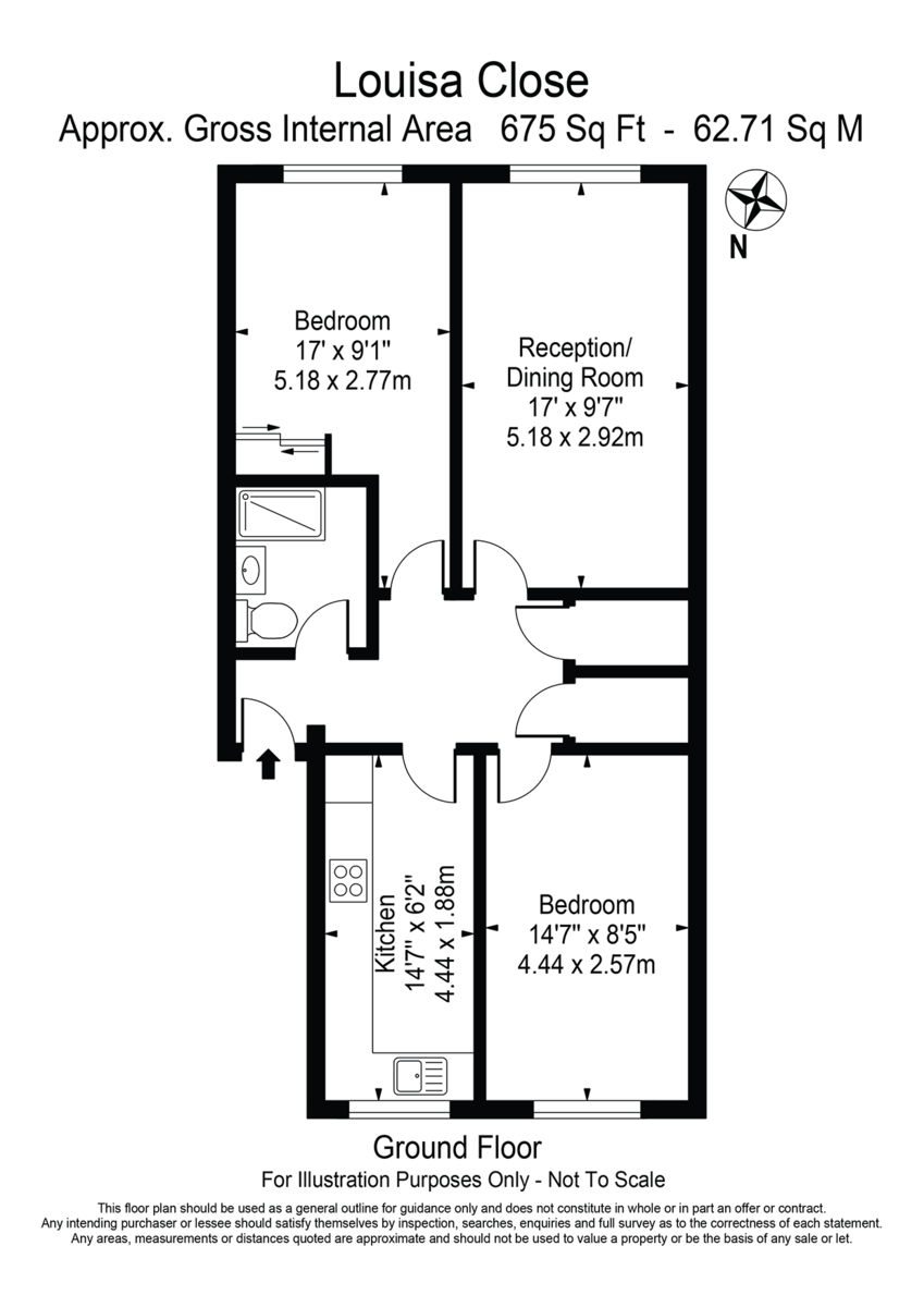
Louisa Close is a discreet, gated community which can go largely unknown by the public despite its A1 location on the very periphery of Victoria Park.Once you have passed the secure entrance there is a real private, safe and secure feeling among the 20 properties, which are ranging from 1 bed apartments to 4 bedroom houses. Internally the property has been decorated with a modern, contemporary theme, so any buyer will just be able to turn the key with no work required from day 1.The generous size (675 sq ft) means you have two genuine double bedrooms, lounge/diner, separate kitchen, modernised shower room and sizeable hall with store cupboards.

Property Ref: 57829_102789006264

Share:

Similar Properties

Lauriston Road

1 Bedroom Flat | Guide Price £500,000

Guide Price £500,000-£525,000Located in the heart of Victoria Park Village on this popular road, we offer this spacious...

Carriers Apartments, Stoneway Walk

1 Bedroom Ground Floor Flat | Guide Price £500,000

Guide Priced £500,000-£525,000A word from the sellers; We have loved living here for the past 4 years and are sad to be...

Cadogan Terrace, London

1 Bedroom Apartment | £500,000

Cadogan Terrace is an attractive treelined road home to some large imposing Victorian residences all of which will have...

Lauriston Road, Victoria Park

1 Bedroom Flat | £525,000

**Located on Lauriston Road offering a Victoria Park Village address**This large one bedroom apartment is arranged over...

Victoria Park Road, London

1 Bedroom Apartment | £525,000

This attractive Victorian apartment lies within Victoria Park Village - one of Hackneys genuine hotspots. Forming part o...

Rutland Road, London

3 Bedroom Ground Floor Flat | £525,000

This unique property is located in a prime position within the much requested Parkside estate. Its versatile living spac...

Sovereign House Estates Victoria Park (Victoria Park)

213 Victoria Park Road, Victoria Park, London, E9 7HD

0208 9855800

How much is your home worth?

Use our short form to request a valuation of your property.

Request a Valuation

Mortgage Calculator

Amount Borrowed: £
Total Amount Repayable: £
Total Monthly Payment: £
©2026 The Guild of Property Professionals. All rights reserved. Terms and Conditions | Privacy Policy | Cookie Policy | Complaints Policy | Members Login
The Guild of Property Professionals Trading Address: 121 Park Lane, London W1K 7AG. GPEA Limited. Registered in England & Wales.  Company No: 02819824.  Registered Office Address: 2 St. Stephen's Court, St. Stephen's Road, Bournemouth, Dorset, England, BH2 6LA.  VAT Registration No: 576 8795 61
Book a Property Valuation Update Cookies Preferences