Priory Park Road, Kilburn

Offers in excess of
£725,000

3 Bedroom Flat for sale in London

1 3 1
  • Three Bedrooms
  • One Bathroom
  • Duplex
  • Share Of Freehold
  • Private Entrance

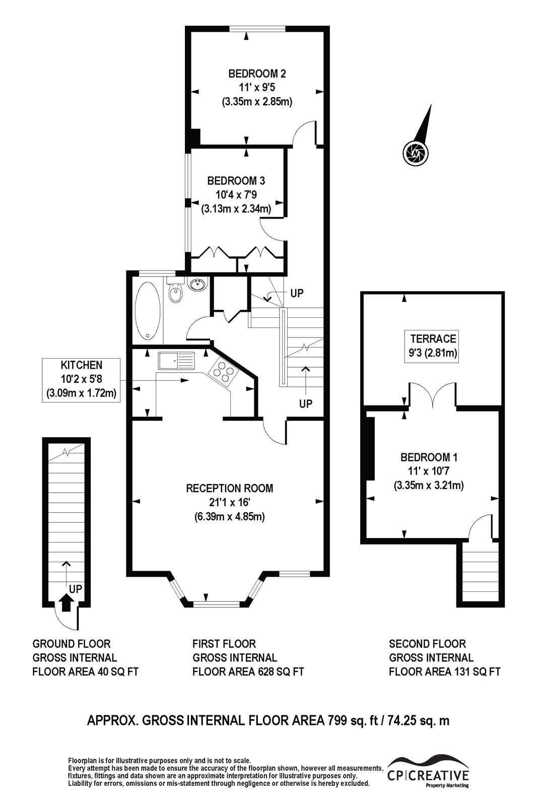
A wonderful three bedroom duplex apartment situated on the first and second floors within a victorian terrace residence.

This charming apartment offers well-proportioned accommodation, the first floor featuring a fantastic open plan kitchen/ reception room with ample amounts of light from this bay window as well as two double bedrooms. The second floor comprises Principal bedroom with access to a private terrace. Further benefits include a share of freehold and private entrance.



Priory Park Road is a residential street, close to the local amenities in Kilburn and West Hampstead. Transport links include Kilburn (Jubilee), Brondesbury (Overground), and Queen's Park (Bakerloo & Overground).

Important Information

  • This is a Leasehold property.

Property Ref: WES_WES230239

Share:

Similar Properties

Clay Yard, West Hampstead

1 Bedroom Flat | Guide Price £720,000

Introducing The Clay Yard — a stunning development in the heart of West Hampstead, where luxury meets wellness. With 10...

Adamson Road, Belsize Park

2 Bedroom Ground Floor Flat | Guide Price £695,000

A beautifully brand newly refurbished two bedroom, two bathroom apartment located on Adamson Road in the heart of Swiss...

Cleve Road, South Hampstead

2 Bedroom Flat | Guide Price £650,000

A Charming Two-Bedroom Apartment on One of South Hampstead’s Finest Roads Set on the second floor of an imposing period...

Dennington Park Road, West Hampstead

2 Bedroom Flat | Guide Price £730,000

Nestled on the prestigious Dennington Park Road, one of West Hampstead's most sought-after addresses, this stunning two-...

Adamson Road, Belsize Park

2 Bedroom Ground Floor Flat | Guide Price £750,000

An exciting opportunity to purchase a wonderful two-bedroom garden apartment located on Adamson Road. This well-presente...

Canterbury House, Kilburn

2 Bedroom Flat | Guide Price £750,000

This beautiful two bedroom duplex apartment is situated on the ground and first floors of this luxurious contemporary wa...

Oakhill Residential (Belsize Park)

West Hampstead, Belsize Park, London, NW6 1DS

020 3544 4444

How much is your home worth?

Use our short form to request a valuation of your property.

Request a Valuation

Mortgage Calculator

Amount Borrowed: £
Total Amount Repayable: £
Total Monthly Payment: £
©2026 The Guild of Property Professionals. All rights reserved. Terms and Conditions | Privacy Policy | Cookie Policy | Complaints Policy | Members Login
The Guild of Property Professionals Trading Address: 121 Park Lane, London W1K 7AG. GPEA Limited. Registered in England & Wales.  Company No: 02819824.  Registered Office Address: 2 St. Stephen's Court, St. Stephen's Road, Bournemouth, Dorset, England, BH2 6LA.  VAT Registration No: 576 8795 61
Book a Property Valuation Update Cookies Preferences