St. Swithuns Road, London

Asking Price
£375,000
SSTC
This property listing is now SSTC

1 Bedroom Ground Floor Flat for sale in London

1 1 1
  • Chain free
  • One double bedroom
  • Private garden
  • Ground floor
  • 990 year lease
  • Period features

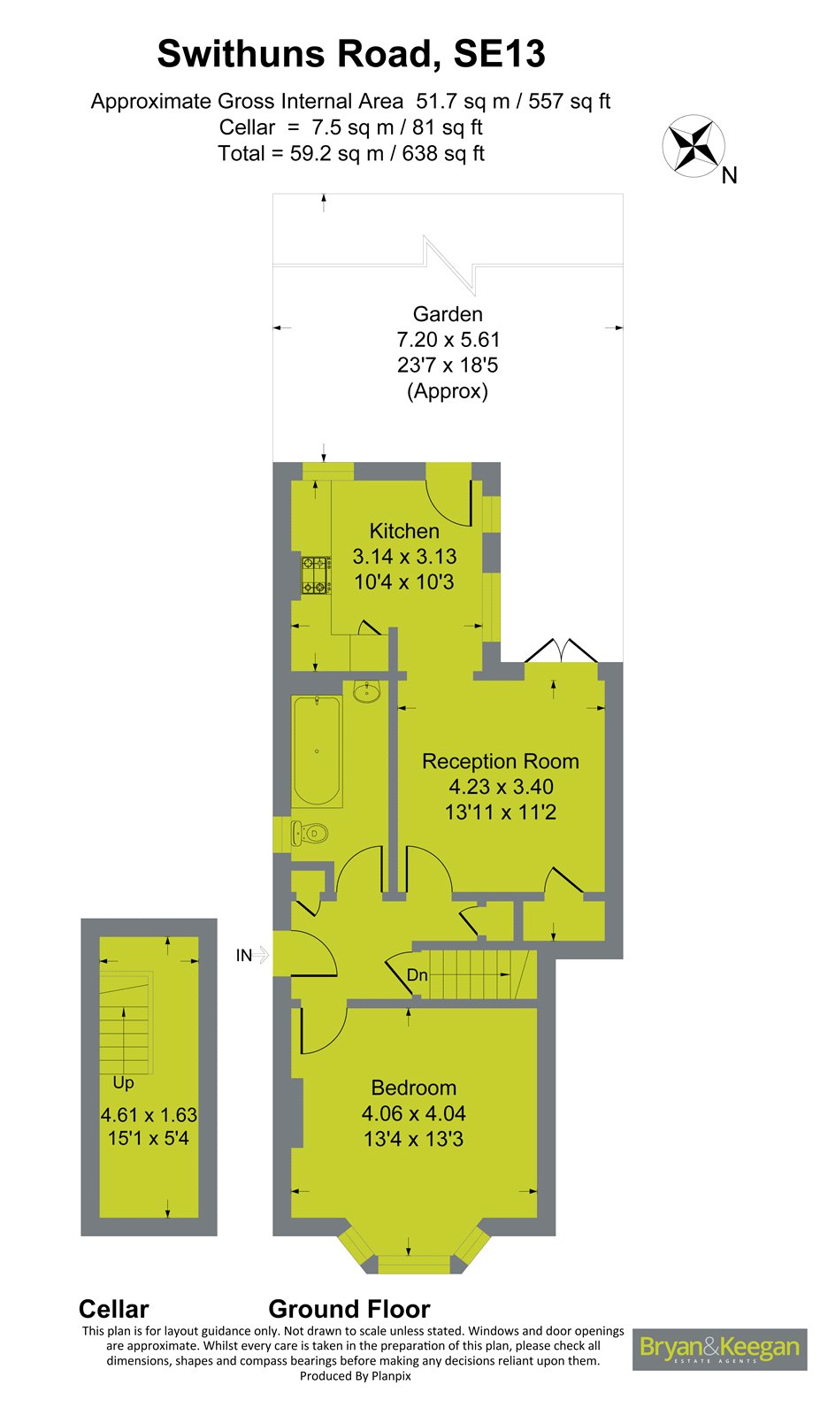
Bryan and Keegan are delighted to present this stunning Victorian conversion: a charming double-bedroom ground floor garden flat that perfectly blends period character with modern comfort. Beautifully presented throughout, the property boasts elegant interiors, a private garden, an impressive 990-year lease—offering both style and long-term peace of mind and the added benefit of being sold Chain free!

Step into the bright and spacious living room, where original wooden floorboards and a Victorian fireplace. Large French doors bathe the room in natural light and open onto a well-maintained patio, leading to an eye-catching private garden—an inviting retreat for relaxing or entertaining.

The property also features a newly modernised kitchen with direct access to the garden, providing a seamless indoor-outdoor flow. The generous double bedroom is flooded with light from its beautiful bay window, while original period features, including a second Victorian fireplace, continue the characterful theme throughout. A well-appointed family bathroom and ample hallway storage complete the interior.

St Swithuns Road is a peaceful one-way street, ideally positioned between Ennersdale Road and Hither Green Lane. Hither Green Station, less than half a mile away, offers frequent services into Charing Cross and Waterloo East, as well as convenient routes to Sevenoaks.

Local amenities are abundant, with Hither Green Lane and Staplehurst Road providing an excellent selection of conveniences, including a French patisserie, popular coffee shops, gastro pubs, restaurants, and supermarkets.

Important Information

  • This is a Leasehold property.
  • This Council Tax band for this property is: B
  • EPC Rating is C

Property Ref: BBY240145

Share:

Similar Properties

Montem Road, London

2 Bedroom Ground Floor Flat | Offers Over £375,000

| Offers between £375,000-£400,000 | Two bedrooms | Private parking | Ground floor | Communal garden | Great location |...

Upper Brockley Road, Brockley

1 Bedroom Flat | Offers in excess of £350,000

| Offers between £350,000-£365,000 | One double bedroom |Victorian conversion | Private garden | Short walk to Brockley...

Tressillian Road, London

1 Bedroom Ground Floor Flat | Offers Over £350,000

| Chain free | Share of freehold | Private entrance | Brockley Conservation area | Private courtyard | Close transport l...

Wickham Road, London

2 Bedroom Ground Floor Flat | Asking Price £400,000

| Chain Free | Split level maisonette | Private front door | Private garden | Large communal garden | Internal accommoda...

Arica Road, London

1 Bedroom Ground Floor Flat | Guide Price £400,000

**Guide Price of £400,000-£420,000**| One double bedroom | Ground-floor | Period conversion | Desirable Street | Private...

Bolden Street

1 Bedroom Ground Floor Flat | Asking Price £400,000

A larger than average one bedroom ground floor flat with a private garden located in the St Johns conservation area.

Bryan & Keegan (Lewisham)

190 Hither Green Lane, Lewisham, London, SE13 6QB

0208 852 2388

How much is your home worth?

Use our short form to request a valuation of your property.

Request a Valuation

Mortgage Calculator

Amount Borrowed: £
Total Amount Repayable: £
Total Monthly Payment: £
©2026 The Guild of Property Professionals. All rights reserved. Terms and Conditions | Privacy Policy | Cookie Policy | Complaints Policy | Members Login
The Guild of Property Professionals Trading Address: 121 Park Lane, London W1K 7AG. GPEA Limited. Registered in England & Wales.  Company No: 02819824.  Registered Office Address: 2 St. Stephen's Court, St. Stephen's Road, Bournemouth, Dorset, England, BH2 6LA.  VAT Registration No: 576 8795 61
Book a Property Valuation Update Cookies Preferences