Blackshaw Road, London, SW17

£525,000
Under Offer
This property listing is now Under Offer

3 Bedroom Maisonette for sale in London

2 3 1
  • Chain Free
  • 3 Bedrooms
  • Private garden
  • Own front door
  • 0.7 Miles from Tooting Broadway Station
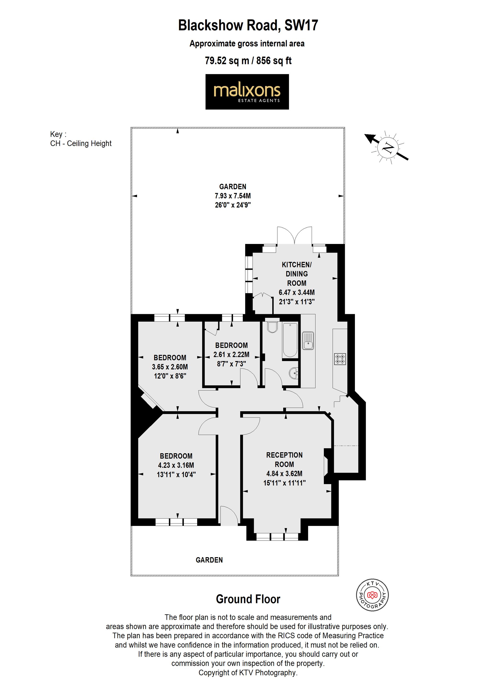
  • Over 850 Sq ft
  • Close to Amenities
  • Extended kitchen/living area
  • St Georges Hospital nearby

Guide £525,000 - £550,000 Located in the heart of the vibrant Tooting community, this well-presented three-bedroom maisonette offers a fantastic opportunity for buyers seeking both space and convenience. Offered chain-free, the property benefits from its own private entrance and a secluded garden—ideal for enjoying some outdoor space in comfort.

Just 0.6 miles from Tooting Broadway Station, this home is perfectly placed for easy access to central London, making commuting simple and efficient. Spanning over 850 sq ft, the layout has been thoughtfully designed to maximise both functionality and flow.

The extended kitchen/living area provides a modern, open-plan space that works equally well for everyday living and entertaining. With contemporary finishes and a practical layout, it’s a great area to relax or host guests.

All three bedrooms are well-proportioned and offer a calm, comfortable setting for rest and relaxation. The property has been neutrally updated over time, with quality fixtures and finishes that add character and a sense of care throughout.

Everyday essentials are within easy reach thanks to a range of nearby amenities, and the property is also conveniently close to St George’s Hospital, one of the area's key institutions.

Natural light fills the space, enhancing the home's welcoming feel. Whether you're starting your day or winding down, the peaceful environment makes it easy to feel at home.

Important Information

  • This is a Leasehold property.
  • This Council Tax band for this property is: C

Property Ref: c42eaf9c-e126-43c0-a6e0-e79be2143f34

Share:

Similar Properties

Beckway Road, London, SW16

3 Bedroom House | Offers in excess of £525,000

£525,000-£550,000 Discover the perfect family home on Beckway Road, London. This charming terraced house offers three be...

Madeira Road, Mitcham, CR4

3 Bedroom House | Guide Price £525,000

Guide £525,000 - £575,000. This Fantastic 3-bedroom, 2-reception home with off-street parking for multiple cars is a rar...

Westwell Road, London, SW16

2 Bedroom Flat | Guide Price £500,000

A superb CHAIN FREE two double bedroom period conversion located just 0.3 Miles from Streatham common station

Melfort Road, Thornton Heath, CR7

5 Bedroom House | Guide Price £550,000

GUIDE PRICE £550,000- £590,000 FANTASTIC space offered with this mid terrace Victorian five bedroom family home . MUST B...

Whitford Gardens, Mitcham, CR4

3 Bedroom Terraced House | Guide Price £550,000

A superb chain-free Victorian three-bedroom home, ideally located just 0.5 miles from Mitcham Eastfields station

Woodside Green, 21 Woodside Green, SE25

Not Specified | Offers Over £575,000

INVESTMENT opportunity on this commercial Building with two flats in Woodside Green. NOT TO BE MISSED!

Malixons (Tooting)

Tooting, London, SW17 7AA

020 3196 4789

How much is your home worth?

Use our short form to request a valuation of your property.

Request a Valuation

Mortgage Calculator

Amount Borrowed: £
Total Amount Repayable: £
Total Monthly Payment: £
©2026 The Guild of Property Professionals. All rights reserved. Terms and Conditions | Privacy Policy | Cookie Policy | Complaints Policy | Members Login
The Guild of Property Professionals Trading Address: 121 Park Lane, London W1K 7AG. GPEA Limited. Registered in England & Wales.  Company No: 02819824.  Registered Office Address: 2 St. Stephen's Court, St. Stephen's Road, Bournemouth, Dorset, England, BH2 6LA.  VAT Registration No: 576 8795 61
Book a Property Valuation Update Cookies Preferences