Strathdon Drive, London, SW17

£375,000
Under Offer
This property listing is now Under Offer

2 Bedroom Flat for sale in London

1 2 1
  • High lease
  • Communal grounds and residents parking
  • Close proximity to Tooting and Earsfield
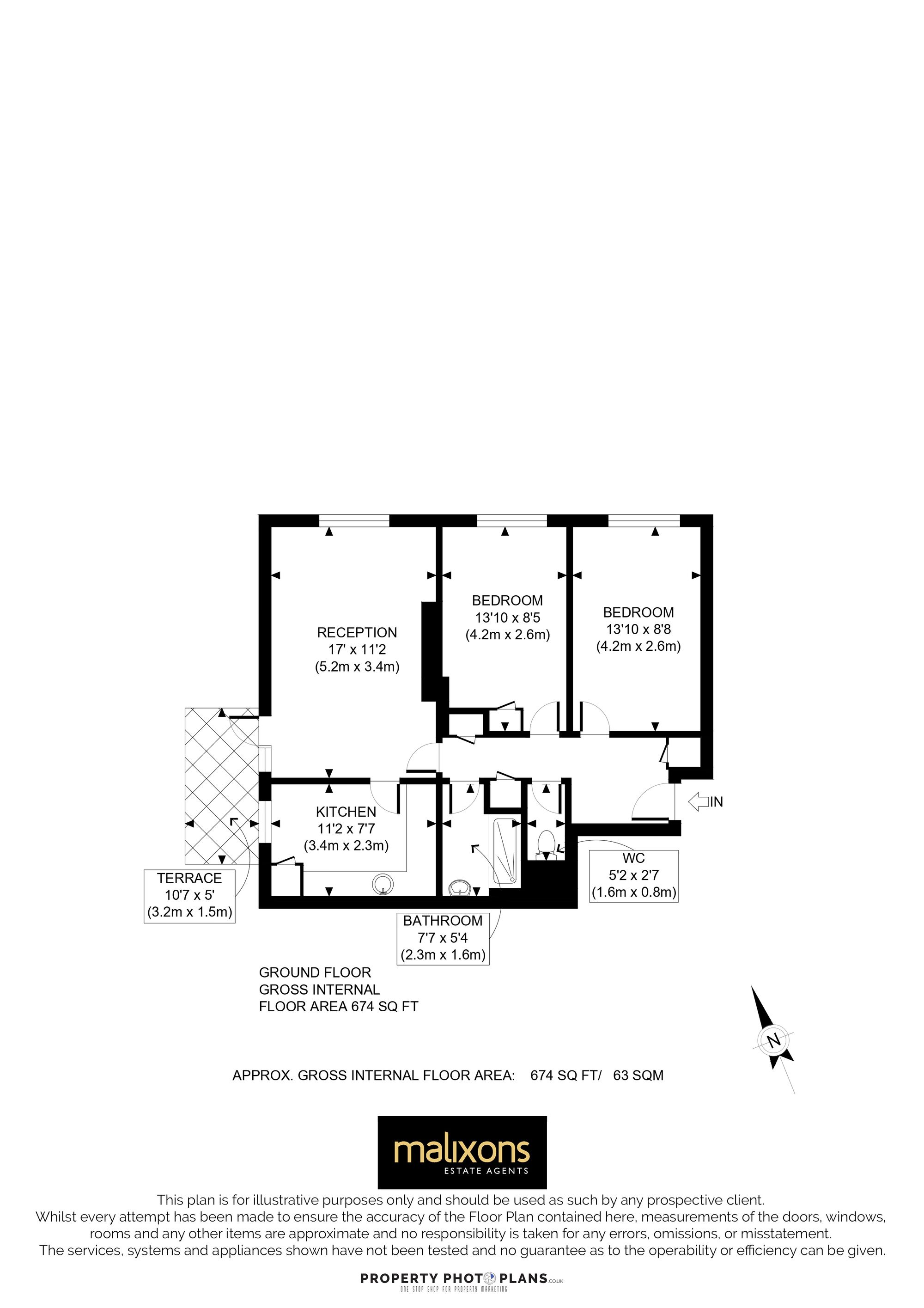
  • 674 Sq ft
  • Ground Floor
  • Balcony
  • Close to St Georges Hospital
  • 0.7 miles to Earsfield station

This spacious two double bedroom flat is located on the ground floor of a purpose-built development. While the property is not refurbished and would benefit from some updating, it offers great potential to create a comfortable and stylish home.

The flat boasts a generous layout, including a large reception room with access to a private balcony, and a well-sized kitchen. The decor is dated in places but the space is bright and well-proportioned. Additional features include communal gardens and residents' parking.

Strathdon Drive enjoys a convenient location close to both Earlsfield and Tooting, offering a wide variety of shops, bars, and restaurants.

Transport links are excellent, with Earlsfield mainline station (just 15 minutes to Waterloo), Tooting Broadway underground station, and several local bus routes all within easy reach.

Important Information

  • This is a Leasehold property.
  • The annual service charges for this property is £1764
  • This Council Tax band for this property is: C

Property Ref: c51fd5e6-d9b9-49f0-8e5e-88a8842992e2

Share:

Similar Properties

Pathfield Road, London, SW16

2 Bedroom Flat | Guide Price £375,000

GUIDE PRICE £375,000 - £415,000 UPDATED ground floor conversion garden flat offered with no forward chain less than half...

Angles Road, London, SW16

2 Bedroom Maisonette | Guide Price £375,000

Barringer Square, London, SW17

2 Bedroom Maisonette | Guide Price £375,000

£350,000-£375,000 A Fantastic CHAIN FREE 2 double bedroom purpose built flat located just 0.3 miles from Tooting Bec sta...

Leigham Court Road, Belenoyd Court, SW16

2 Bedroom Flat | Offers in excess of £380,000

Discover the perfect blend of comfort and convenience in this beautifully presented flat on Leigham Court Road. With two...

Rialto Road, Mitcham, CR4

3 Bedroom Maisonette | £390,000

Fantastic three-bedroom maisonette, over 800 sq. ft., ready for modernisation—just 0.1 miles from Mitcham Eastfields Sta...

Fountain Road, Anderson House Fountain Road, SW17

2 Bedroom Flat | Guide Price £400,000

GUIDE £400,000 - £450,000 A Wonderful Chain-Free Third-Floor Purpose-Built Flat Featuring Two Bedrooms and a Balcony.

Malixons (Tooting)

Tooting, London, SW17 7AA

020 3196 4789

How much is your home worth?

Use our short form to request a valuation of your property.

Request a Valuation

Mortgage Calculator

Amount Borrowed: £
Total Amount Repayable: £
Total Monthly Payment: £
©2025 The Guild of Property Professionals. All rights reserved. Terms and Conditions | Privacy Policy | Cookie Policy | Complaints Policy | Members Login
The Guild of Property Professionals Trading Address: 121 Park Lane, London W1K 7AG. GPEA Limited. Registered in England & Wales.  Company No: 02819824.  Registered Office Address: 2 St. Stephen's Court, St. Stephen's Road, Bournemouth, Dorset, England, BH2 6LA.  VAT Registration No: 576 8795 61
Book a Property Valuation Update Cookies Preferences