Ashbourne Road, Mitcham, CR4

Guide Price
£350,000
Under Offer
This property listing is now Under Offer

1 Bedroom Flat for sale in Mitcham

1 1 1
  • Chain free
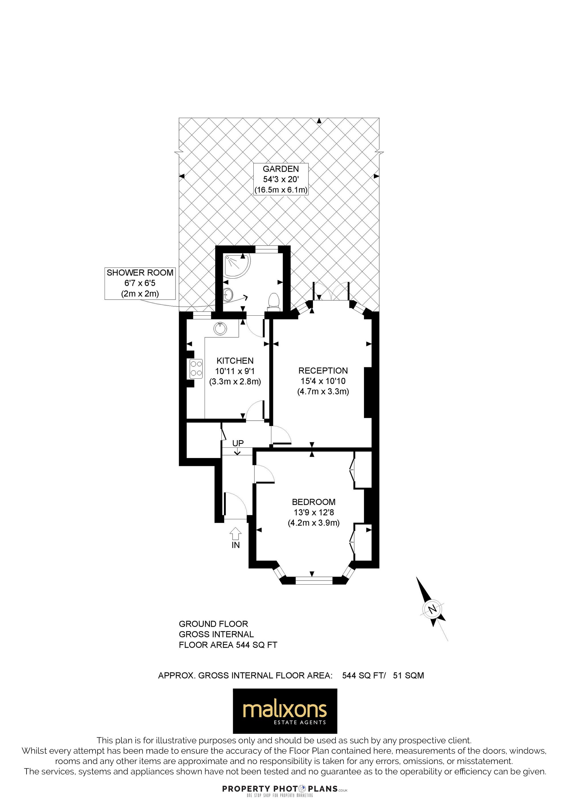
  • 544 Sq ft
  • Private garden
  • Potential to extend STPP
  • Borders of Tooting
  • Figges Marsh common nearby
  • 0.4 Miles to Tooting Station
  • Share of freehold

Located on the edge of vibrant Tooting, this bright and spacious one-bedroom SHARE OF FREEHOLD flat offers 544 sq ft of stylish, chain-free living, ready for immediate occupancy.

With ample potential, including the option to extend (STPP), this property is an ideal choice for first-time buyers or those looking to personalise their space.

Just 0.4 miles from Tooting Station, this home offers excellent transport links to the city, while being set in a peaceful location next to Figges Marsh Common. A private garden provides a tranquil retreat, perfect for relaxing or entertaining.

The unbeatable location is complemented by a wealth of local amenities, including top-rated schools, a variety of bars, restaurants, cafés, and gyms—all within easy reach. Whether you're enjoying a night out, brunch with friends, or a quick gym session, everything is on your doorstep.

Energy Efficiency Current: 76.0
Energy Efficiency Potential: 78.0

Important Information

  • This is a Freehold property.
  • This Council Tax band for this property is: C

Property Ref: 8f5d1e3d-cb51-4221-9715-b096b3327099

Share:

Similar Properties

Union Grove, Dartington House Union Grove, SW8

2 Bedroom Flat | Guide Price £350,000

**GUIDE PRICE £350,000 - £390,000** A well presented ground floor 2 bedroom flat, ready to become your new home sweet ho...

Gleneagle Road, London, SW16

2 Bedroom Apartment | Guide Price £350,000

GUIDE PRICE £350,000 - 380,000 MODERN BUILT two bedroom, two bathroom apartment set in this attractive development offer...

Cornwall Road, Croydon, CR0

2 Bedroom House | Guide Price £350,000

GUIDE PRICE £350,000 - £380,000 QUAINT two up two down mid terrace cottage minutes from Wandle Park, River and Cafe offe...

Gleneldon Road, London, SW16

1 Bedroom Flat | Fixed Price £370,000

Malixons are delighted to present this fantastic investment opportunity on Gleneldon Road, SW16, comprising three well-p...

Strathdon Drive, London, SW17

2 Bedroom Flat | £375,000

A spacious and conveniently located two-bedroom ground floor flat, situated just 0.7 miles from Earlsfield Station.

South Lambeth Road, Wingfield House, SW8

1 Bedroom Flat | Guide Price £375,000

GUIDE PRICE £375,000 - £425,000 WELCOME to this charming one bedroom flat nestled within the historic confines of Wingfi...

Malixons (Tooting)

Tooting, London, SW17 7AA

020 3196 4789

How much is your home worth?

Use our short form to request a valuation of your property.

Request a Valuation

Mortgage Calculator

Amount Borrowed: £
Total Amount Repayable: £
Total Monthly Payment: £
©2025 The Guild of Property Professionals. All rights reserved. Terms and Conditions | Privacy Policy | Cookie Policy | Complaints Policy | Members Login
The Guild of Property Professionals Trading Address: 121 Park Lane, London W1K 7AG. GPEA Limited. Registered in England & Wales.  Company No: 02819824.  Registered Office Address: 2 St. Stephen's Court, St. Stephen's Road, Bournemouth, Dorset, England, BH2 6LA.  VAT Registration No: 576 8795 61
Book a Property Valuation Update Cookies Preferences