Rother Vale, Lordswood, Chatham, ME5

Guide Price
£300,000
SSTC
This property listing is now SSTC

2 Bedroom Terraced House for sale in Lordswood, Chatham

1 2 1
  • Extended Terraced House
  • Two Double Bedrooms
  • No Chain
  • Open Plan Layout
  • Lordswood Area
  • Driveway & Carport
  • Rear Garden Approx 54ft

Guide Price £300,000 - £310,000

No chain! This exceptional extended house offers a spacious interior and is located in the popular area of Lordswood and is well placed for local shops and amenities. Ideal first buy or for anyone who likes to entertain family and friends.

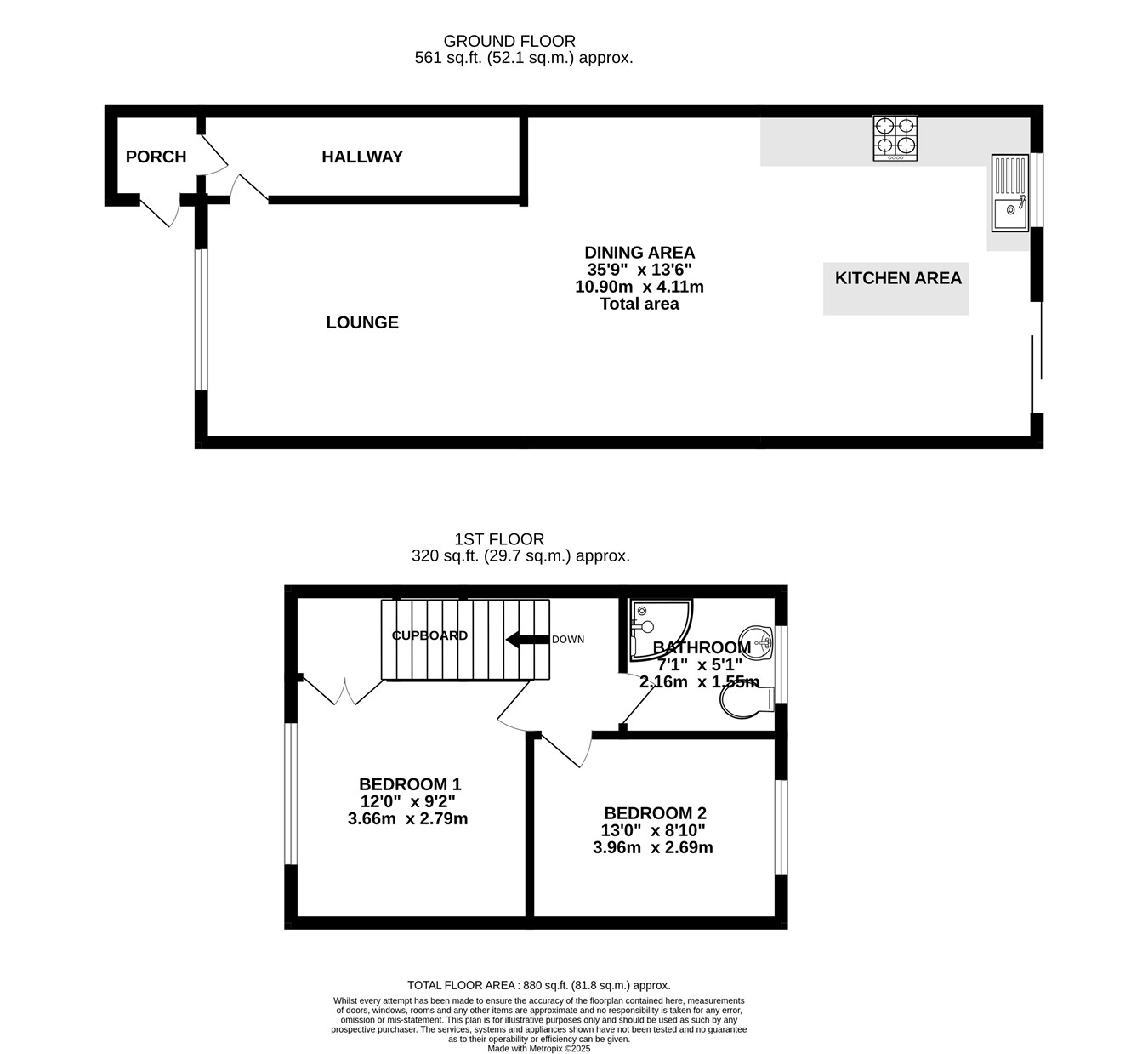
The entrance porch has a door that opens into the contemporary open plan living space with the lounge area flowing easily to the kitchen/dining zone. There is an extensive range of units and worksurfaces with a beautiful centre island/breakfast bar. There is an integral dishwasher in addition to the oven and gas hob. Upstairs are two double bedrooms, one of which is currently utilised as a home office and dressing room. The bathroom has a shower cubicle, wash hand basin and WC. The rear garden is larger than average with a good sized patio area with a timber feature dividing patio to the lawned area with raised borders. To complete this wonderful home is a driveway for 2+ vehicles with carport and an outside power supply. Must be viewed to fully appreciate all that it offers.Ground Floor

Lounge/Kitchen/Dining Room
35' 9" x 13' 6" (10.90m x 4.11m)

First Floor

Bedroom 1
12' 0" x 9' 2" (3.66m x 2.79m)

Bedroom 2
13' 0" x 8' 10" (3.96m x 2.69m)

Shower Room
7' 1" x 5' 1" (2.16m x 1.55m)

Important Information

  • This is a Freehold property.

Property Ref: 29785452

Share:

Similar Properties

Hawthorns, Meadside Walk, Walderslade, Chatham, ME5

2 Bedroom Terraced House | Offers in excess of £300,000

The property is being offered with no onward chain allowing for a speedy purchase and is an ideal home for the first tim...

Carlton Crescent, Chatham, ME5

3 Bedroom Semi-Detached House | Offers Over £300,000

Being offered with no forward chain is this extended three bedroom semi detached house with the potential to be a four b...

Meadside Walk, Walderslade , Chatham, ME5

3 Bedroom Terraced House | Offers Over £290,000

No Chain! A fantastic opportunity to purchase a three bedroom house situated along a no through road and in a popular lo...

Corys Road, Rochester, ME1

2 Bedroom Apartment | Guide Price £305,000

Guide Price £305,000 - £315,000A spacious top floor 2-bedroom apartment being offered with no onward chain and a great o...

Campion Close, Chatham, ME5

3 Bedroom Terraced House | Offers in excess of £315,000

You will not be disappointed as we offer to the market this three bedroom home. This lovely home is ready to move into a...

Croydon Close, Lordswood, Chatham, ME5

3 Bedroom Semi-Detached House | Offers Over £325,000

Situated in the ever popular area of Lordswood with its schools, local shops and leisure centre, this beautifully presen...

Greyfox Sales & Lettings (Walderslade)

Walderslade Village Centre, Walderslade, Walderslade, Kent, ME5 9LR

01634 672227

How much is your home worth?

Use our short form to request a valuation of your property.

Request a Valuation

Mortgage Calculator

Amount Borrowed: £
Total Amount Repayable: £
Total Monthly Payment: £
©2026 The Guild of Property Professionals. All rights reserved. Terms and Conditions | Privacy Policy | Cookie Policy | Complaints Policy | Members Login
The Guild of Property Professionals Trading Address: 121 Park Lane, London W1K 7AG. GPEA Limited. Registered in England & Wales.  Company No: 02819824.  Registered Office Address: 2 St. Stephen's Court, St. Stephen's Road, Bournemouth, Dorset, England, BH2 6LA.  VAT Registration No: 576 8795 61
Book a Property Valuation Update Cookies Preferences