Plot 3, Carlton Road, Manby

£115,000

5 Bedroom Land for sale in Louth

5
  • East Lindsey District Council Planning Application Number: N/113/01855/22
  • EPC Rating - Not Applicable
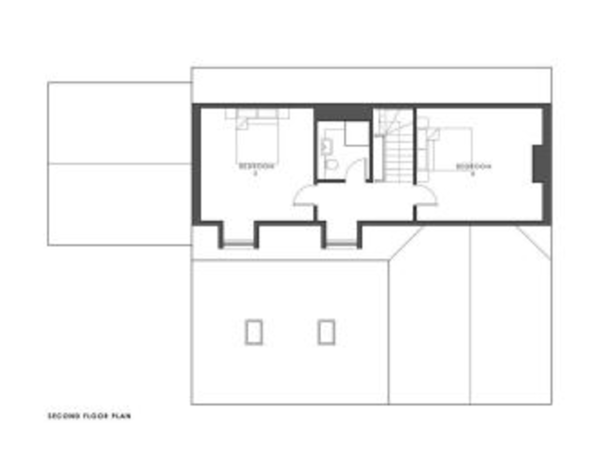
  • Full Planning for a Five Bedroomed Detached House and Double Garage

Location Carlton Road is located within the popular, rural village of Manby, located five miles from the thriving town of Louth. Facilities in the area include a Primary School, Post Office/Village Store, Restaurant and Churches. Louth offers an excellent range of local amenities including Cafes, Restaurants, Primary and Secondary Education including the well-reputed King Edward VI Grammar School.  

Description We are delighted to offer for sale this exceptional and substantial building plot, with Full Planning Consent for a substantial detached dwelling within the popular village of Manby, near Louth and also convenient for the East Coast. The plot is generously proportioned and has Full Planning Consent for a substantial three-storey five bedroomed detached house, together with an attached double garage. The overall plot size is approximately 0.3 acres. In addition to this plot, there is the option to purchase Plots 1 and 2 which both have planning for additional (slightly smaller) five bedroomed detached houses. Full Planning Consent was granted on 16th June 2023 by East Lindsey District Council. Planning Application Number: N/113/01855/22.  

Services All mains services are understood to be available within Carlton Road. EPC Rating - Not applicable.  

Tenure The plot is available on a Freehold basis and is likely to be of interest to local Developers or Self-Builders.  

Property Ref: 102125027801

Share:

Similar Properties

Arlington Road, Newtoft

3 Bedroom End of Terrace House | Offers in excess of £110,000

Situated in the popular rural village of Newtoft, this is a spacious three bedroomed end terraced house with the additio...

Kingsmead Park, Swinhope

2 Bedroom Park Home | £110,000

A beautifully presented and modern two double bedroom park home situated in this popular over 50s and pet friendly park...

Kingsmead Park, Swinhope

2 Bedroom Park Home | Offers Over £100,000

A well-presented and spacious Park Home situated on a corner plot in a quiet position within the popular over 50s, pet f...

Linwood Road, Market Rasen

2 Bedroom Terraced House | £135,000

A well presented Two Bedroom Mid Terrace House situated in the heart of Market Rasen, just a short walk from the town ce...

Wesley Court, Market Rasen

2 Bedroom Maisonette | £135,000

Situated close to the heart of Market Rasen, this modern Two Bedroom Maisonette offers immaculate and well designed livi...

Prospect Place, Market Rasen

3 Bedroom Terraced House | £140,000

NO ONWARD CHAIN - A three-bedroom mid-terrace home located close to the centre of the market town of Market Rasen — just...

Mundys Market Rasen (Market Rasen)

22 Queen Street, Market Rasen, Lincolnshire, LN8 3EH

01673 847487

How much is your home worth?

Use our short form to request a valuation of your property.

Request a Valuation

Mortgage Calculator

Amount Borrowed: £
Total Amount Repayable: £
Total Monthly Payment: £
©2026 The Guild of Property Professionals. All rights reserved. Terms and Conditions | Privacy Policy | Cookie Policy | Complaints Policy | Members Login
The Guild of Property Professionals Trading Address: 121 Park Lane, London W1K 7AG. GPEA Limited. Registered in England & Wales.  Company No: 02819824.  Registered Office Address: 2 St. Stephen's Court, St. Stephen's Road, Bournemouth, Dorset, England, BH2 6LA.  VAT Registration No: 576 8795 61
Book a Property Valuation Update Cookies Preferences