Wesley Court, Market Rasen

£135,000
SSTC
This property listing is now SSTC

2 Bedroom Maisonette for sale in Market Rasen

2 1
  • Modern 2 Bedroom Maisonette
  • Spacious Living Accommodation
  • Open Plan Living/Kitchen/Diner
  • 2 Double Bedrooms & Bathroom
  • Enclosed Private Garden
  • Allocated Parking Space
  • Viewing Highly Recommended
  • EPC Energy Rating - B
  • Council Tax Band - A (West Lindsay District Council)

Situated close to the heart of Market Rasen, this modern Two Bedroom Maisonette offers immaculate and well designed living accommodation throughout. The property features a private Entrance Hall with stairs leading to a First Floor Landing, where you'll find a fantastic open plan living, Kitchen and Dining Area, perfect for modern lifestyles. The Second Floor provides two well proportioned double Bedrooms and a contemporary Bathroom. Outside, there is a private enclosed garden and an allocated parking space. An ideal opportunity for first time buyers or investors, with early viewing highly recommended. 

LEASEHOLD INFORMATION Length of Lease – 999 years from and including 1st July 2018.

Years Remaining on Lease – 973.

Service Charge Amount - £25pcm

All figures are estimates provided by the vendor and will be confirmed/checked with the Solicitors prior to Exchange of Contracts and completion of the sale.
 

LOCATION Market Rasen is a thriving Market Town situated on the edge of the Lincolnshire Wolds with the added benefit of a train station and bus services providing regular links to larger Towns and City networks. The Town is renowned for its Golf Course and Racecourse and also has a wonderful range of local independent retail outlets, regular markets in the cobbled market square, various restaurants, boutique hotel and guest houses, public houses, library, health care providers and good local schooling; Primary Schooling – Market Rasen C of E Primary (Ofsted Graded 'Good'), Secondary Schooling – De Aston School (Ofsted Graded 'Good'). 

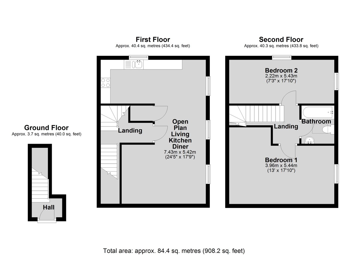
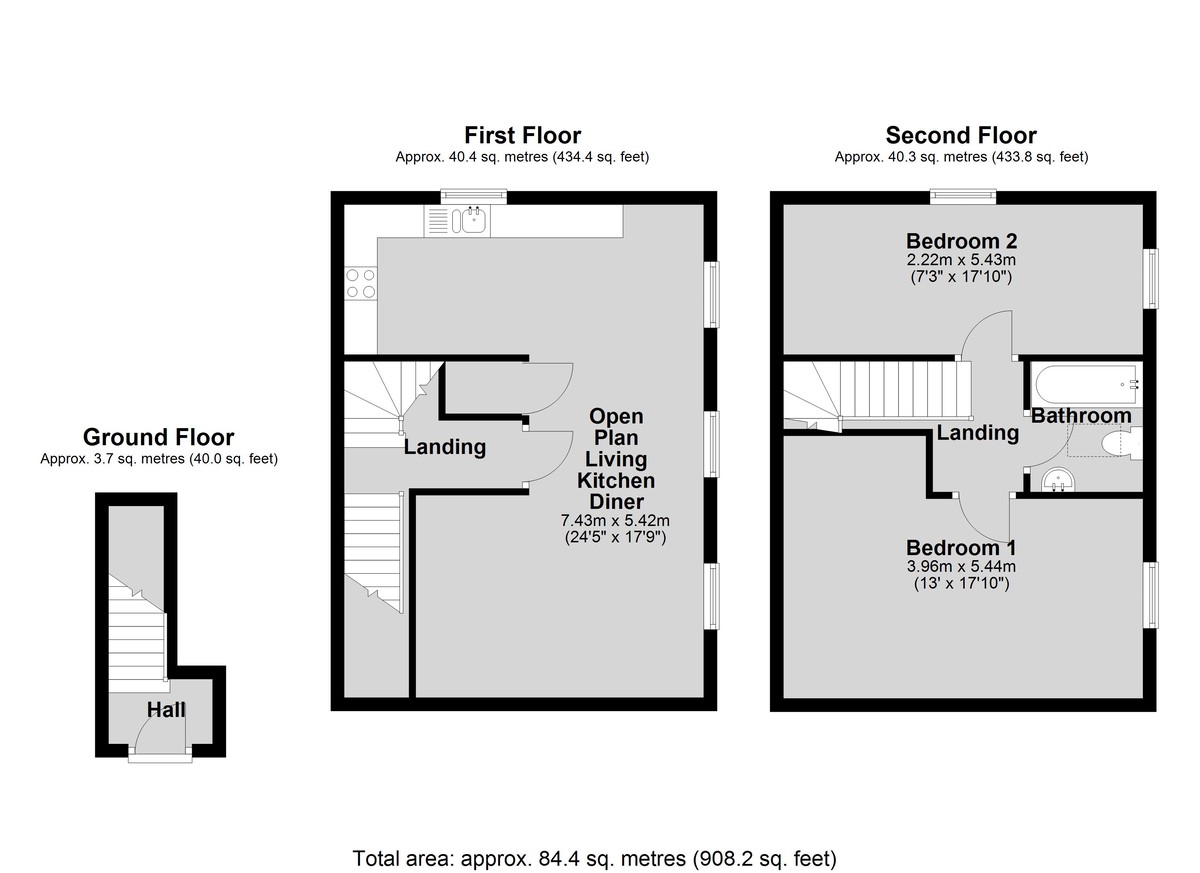
HALL With staircase to the first floor and radiator.  

FIRST FLOOR LANDING With staircase to the second floor and radiator.  

OPEN PLAN LIVING KITCHEN DINER 24' 4 (max)" x 17' 9 (max)" (7.42m x 5.41m) Living and dining area having three double glazed windows to the side aspect and two radiators. Kitchen area fitted with a modern range of wall and base units with work surfaces over, 1 1/2 bowl sink with side drainer and mixer tap, electric oven and hob with extractor fan, integrated fridge freezer, space for washing machine and double glazed window to the rear aspect.  

SECOND FLOOR LANDING  

BEDROOM 1 17' 10" x 12' 11" (5.44m x 3.96m) With double glazed window to the side aspect and radiator.  

BEDROOM 2 17' 9" x 7' 3" (5.43m x 2.22m) With double glazed windows to the side and rear aspects and radiator.  

BATHROOM Fitted with a three piece suite comprising of panelled bath with shower and glass shower screen, close coupled WC and pedestal wash hand basin, tiled splashbacks, towel radiator, spotlights and Velux window. 

OUTSIDE The property benefits from an allocated off street parking space and an enclosed private garden laid to artificial lawn with garden shed.  

Property Ref: 735095_102125035494

Share:

Similar Properties

Linwood Road, Market Rasen

2 Bedroom Terraced House | £135,000

A well presented Two Bedroom Mid Terrace House situated in the heart of Market Rasen, just a short walk from the town ce...

Plot 3, Carlton Road, Manby

5 Bedroom Land | £130,000

We are delighted to offer for sale this exceptional and substantial building plot, with Full Planning Consent for a subs...

King Street, Market Rasen

2 Bedroom End of Terrace House | £119,950

An extended end-terraced character home, situated a short walk to all Market Rasen amenities, offers flexible living spa...

Cumberland Terrace, Brookenby, Binbrook

3 Bedroom End of Terrace House | £140,000

A three-bedroom end terrace home located in the village of Brookenby, positioned just outside the sought-after Lincolnsh...

High Street, Binbrook

2 Bedroom Semi-Detached House | £140,000

Offered for sale with No Onward Chain, this large than expected character cottage is ideally situated close to all ameni...

Prospect Place, Market Rasen

3 Bedroom Terraced House | £140,000

NO ONWARD CHAIN - A three-bedroom mid-terrace home located close to the centre of the market town of Market Rasen — just...

Mundys Market Rasen (Market Rasen)

22 Queen Street, Market Rasen, Lincolnshire, LN8 3EH

01673 847487

How much is your home worth?

Use our short form to request a valuation of your property.

Request a Valuation

Mortgage Calculator

Amount Borrowed: £
Total Amount Repayable: £
Total Monthly Payment: £
©2025 The Guild of Property Professionals. All rights reserved. Terms and Conditions | Privacy Policy | Cookie Policy | Complaints Policy | Members Login
The Guild of Property Professionals Trading Address: 121 Park Lane, London W1K 7AG. GPEA Limited. Registered in England & Wales.  Company No: 02819824.  Registered Office Address: 2 St. Stephen's Court, St. Stephen's Road, Bournemouth, Dorset, England, BH2 6LA.  VAT Registration No: 576 8795 61
Book a Property Valuation Update Cookies Preferences