Quarry House, Corston

£665,000
SSTC
This property listing is now SSTC

3 Bedroom Semi-Detached House for sale in Malmesbury

2 3 2
  • Semi-detached period house
  • Large wing of an 18th Century quarry house
  • High ceilings and full height bay windows
  • 3 bedrooms, 2 bathrooms
  • Two large reception rooms
  • Modern fitted kitchen
  • Garage with room over
  • Wraparound garden
  • Private parking
  • No onward chain

Description
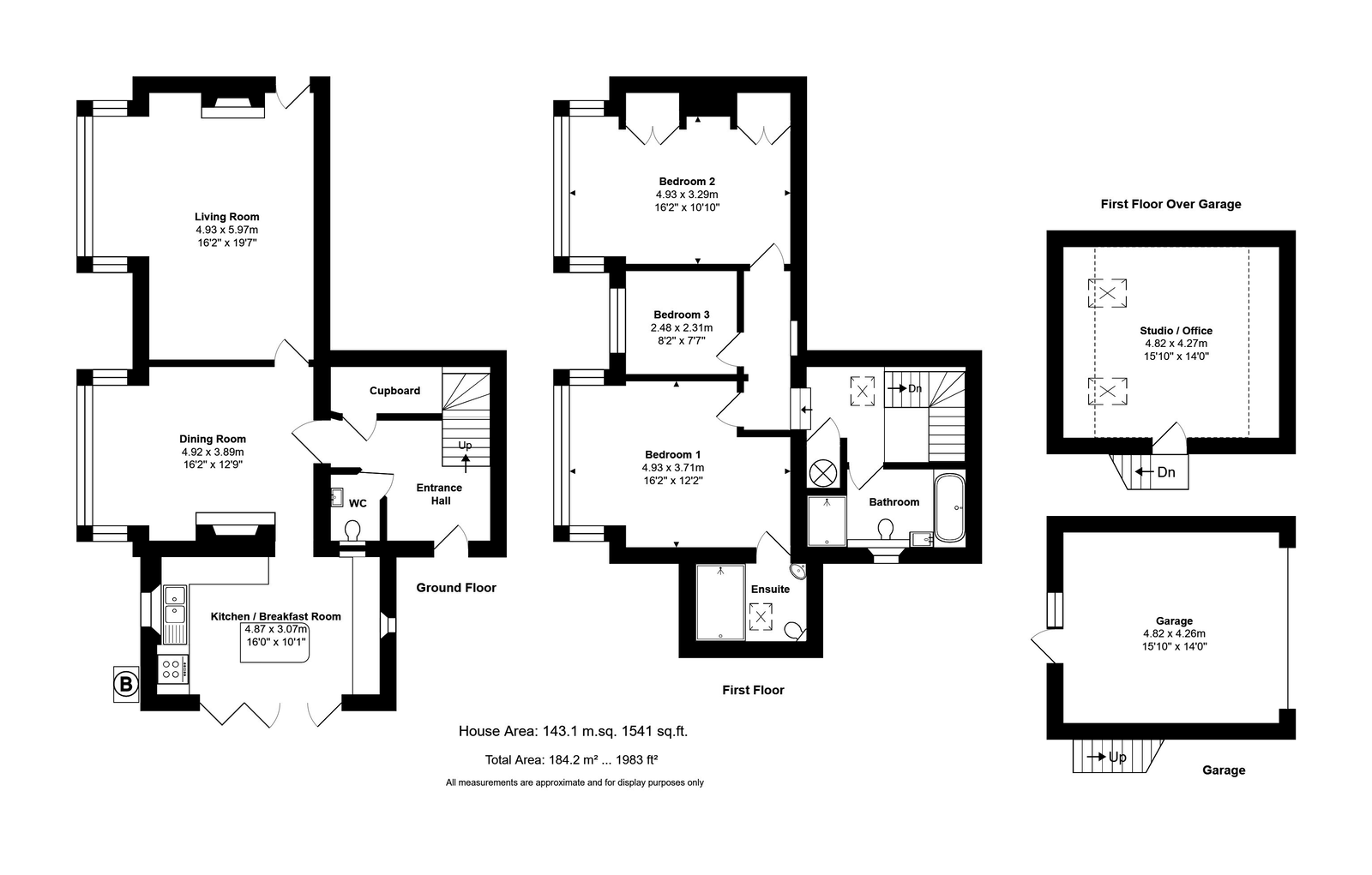
This characterful semi-detached period home forms a large wing of a late 18th Century quarry foreman's house believed to have been remodelled in the 1920s to incorporate two full height bay windows which complement the high ceilings enhancing the light and airy accommodation. In recent years, the property has been remodelled, tastefully decorated and upgraded with new windows to the main bay. The accommodation is arranged over two floors and extends in all to 1,541 sq.ft. while a garage provides storage and the additional benefit of a room above which offers a home office/studio space.
 
The ground floor opens to an entrance hall with flagstone flooring, WC off and stairs up to the first floor which has a large store cupboard beneath. There are two well-proportioned reception rooms, both benefitting from the full height windows and fireplaces, and the living room of which has a multi-fuel burning stove inset. The kitchen/breakfast room has been superbly designed with bi-fold doors opening to the sunny garden whilst the units have integrated Neff appliances to include an induction hob, fridge/freezer and oven/grill. On the first floor, a galleried landing leads to a modern bathroom fitted with a separate shower and bath. There are two large double bedrooms and a third single bedroom. The principal bedroom is served by a wet-room style en-suite. 
 
The wraparound gardens are a delight, arranged to three sides with lawns and colourful established borders and trees providing the whole a good degree of privacy enclosed by timber fencing. In addition to the double garage there is off road parking to the front for two or more cars.
Situation
The village of Corston has a number of amenities which include a public house and parish church with delightful walks amongst the Wiltshire countryside that surrounds it. Malmesbury is an ancient hilltop town situated on the southern edge of the Cotswolds and is about 2.5 miles away which has numerous independent shops, pubs and restaurants and a regular weekly Farmers market whilst the town has excellent choice of both primary and secondary schools and good recreational and leisure facilities. The M4 motorway (J17) is conveniently located 3 miles to the south of Corston providing excellent access to the major centres of Bristol and Swindon together with London and the West Country. Main line rail services are available from Chippenham and Kemble near Cirencester providing fast links with the capital (Paddington in about 75 minutes).
Additional Information
The property is Freehold with oil-fired central heating, mains drainage, water and electricity.  Superfast broadband is available. Information taken from the Ofcom mobile and broadband checker, please see the website for more information and for mobile phone coverage. Wiltshire Council Tax Band E.

Important Information

  • This is a Freehold property.
  • This Council Tax band for this property is: E

Property Ref: 1212198

Share:

Similar Properties

New Church Street, Tetbury

3 Bedroom End of Terrace House | £650,000

This beautifully presented Grade II listed Georgian townhouse is centrally located and has been sympathetically and tast...

Littleton Drew

4 Bedroom Detached House | Offers Over £650,000

A beautifully finished, detached chalet style house with spacious accommodation including ground and first floor bedroom...

Draper Close, Tetbury

4 Bedroom Detached House | £650,000

Overlooking a large open green, a spacious detached Cotswold stone house with a south-facing garden and garage. No onwar...

High Street, Hawkesbury Upton

4 Bedroom Terraced House | £675,000

An attractive natural stone period house with wonderful character, large south-facing garden, and double garage. NO CHAI...

High Street, Hawkesbury Upton

3 Bedroom Link Detached House | £695,000

A characterful former farmhouse located in the very heart of the village close to many amenities, with off-street parkin...

Waterside, Castle Combe

4 Bedroom Cottage | £695,000

A magnificent Grade II listed double-fronted period cottage commanding Castle Combe's most iconic setting overlooking th...

James Pyle & Co (Sherston)

Swan Barton, Sherston, Wiltshire, SN16 0LJ

01666 840886

How much is your home worth?

Use our short form to request a valuation of your property.

Request a Valuation

Mortgage Calculator

Amount Borrowed: £
Total Amount Repayable: £
Total Monthly Payment: £
©2026 The Guild of Property Professionals. All rights reserved. Terms and Conditions | Privacy Policy | Cookie Policy | Complaints Policy | Members Login
The Guild of Property Professionals Trading Address: 121 Park Lane, London W1K 7AG. GPEA Limited. Registered in England & Wales.  Company No: 02819824.  Registered Office Address: 2 St. Stephen's Court, St. Stephen's Road, Bournemouth, Dorset, England, BH2 6LA.  VAT Registration No: 576 8795 61
Book a Property Valuation Update Cookies Preferences