The Tarters, Sherston

£595,000

4 Bedroom Detached House for sale in Malmesbury

1 4 2
  • Detached family house
  • 3/4 bedrooms
  • Updated bathroom and separate shower room
  • Fitted kitchen/dining room
  • Living room with wood-burning stove
  • Conservatory
  • South-westerly garden
  • Views to the church
  • Easy walking distance to the High Street

Description

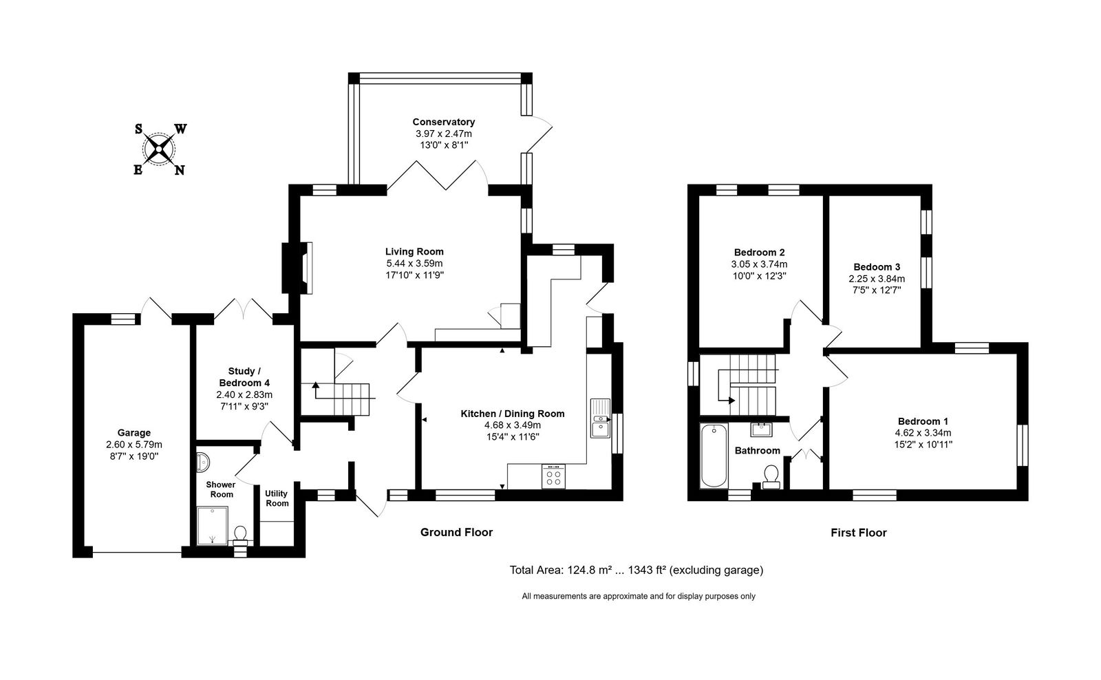
This detached modern home is situated in a quiet corner of the highly sought-after village of Sherston yet within an easy level walk to the High Street and offers flexible family-sized accommodation. The property has been recently upgraded with a brand-new heating system of an air source heat pump. The light and airy accommodation is arranged over two floors extending to around 1,343 sq.ft and has lovely views towards the church.

On the ground floor, an entrance hall has plenty of convenient storage and leads to a large front kitchen/dining room with modern fitted units and integrated appliances. The living room has a cosy wood burning stove and tri-folding doors connecting to the rear conservatory. Also on the ground floor is a utility room, shower room and a versatile study with double doors to the garden which could be utilised as a ground floor bedroom. On the first floor are three double bedrooms and a newly refitted family bathroom with shower over the bath.

Externally, there is a double driveway providing off-road parking in addition to a single garage with a front garden. The rear garden enjoys a south-west aspect and has been landscaped with a new large patio.

Situation
The beautiful, ancient and much sought after village of Sherston with its broad High Street and historic stone houses is set in an Area of Outstanding Natural Beauty conveniently located on the edge of the Cotswolds. Sherston has a thriving community and offers many facilities, including a church, popular primary school, doctors surgery, Co-op shop and post office, coffee shops, hairdresser, Indian restaurant, garden centre and the highly regarded 16th century Rattlebone Inn, with its excellent food and friendly atmosphere. The facilities and amenities in Sherston more than adequately provide for everyday need with a whole host of societies and clubs meeting on a regular basis offering entertainment and social events for young and old alike. Schooling locally is second to none, with very good state and independent schools providing transport to and from the village on a daily basis. Close by are the market towns of Malmesbury and Tetbury which are both approximately 5 miles away. Malmesbury is reputed to be the oldest Borough in the country dating back to the 11th Century. Both towns offer a wider range of shops, services, schooling and leisure facilities. There are main line stations to London-Paddington at Kemble (14 miles) and Chippenham (12 miles) whilst Junctions 17 & 18 of the M4 are both within 15 minutes' drive providing convenient access to Bath, Bristol and Swindon.
Additional Information
The property is Freehold with air source heat pump central heating, mains drainage, water and electricity. The property is located within the Cotswold Area of Outstanding Natural Beauty. Superfast broadband is available and there is mobile phone coverage with some limitations. Information taken from the Ofcom mobile and broadband checker website, please check the website for more information. Wiltshire Council Tax Band E. 

Important Information

  • This is a Freehold property.
  • This Council Tax band for this property is: E

Property Ref: 633479

Share:

Similar Properties

The Berrells, Tetbury

3 Bedroom Detached House | £595,000

Situated within this highly desirable private no-through lane beside the Cutwell valley, this detached chalet home enjoy...

Hollis Gardens, Luckington

3 Bedroom Detached House | £595,000

Situated within a desirable mature close, this detached modern house has extended accommodation with further potential t...

Gaston Lane, Sherston

4 Bedroom Link Detached House | Guide Price £595,000

With a stunning interior and great layout, this link-detached modern house has a larger than average garden and driveway...

Kington St. Michael

3 Bedroom Semi-Detached House | Offers Over £600,000

A pretty traditional period cottage within a large sunny plot with PLANNING PERMISSION to build a second dwelling. NO CH...

Pump Lane, Long Newnton

3 Bedroom Detached House | Offers Over £600,000

Positioned down a quiet country lane in the Cotswold village of Long Newnton, just 1 mile outside of Tetbury, a charming...

Bath Road, Tetbury

3 Bedroom Detached House | £615,000

Occupying an excellent position close to the town centre and lovely countryside walks, an individual detached house whic...

James Pyle & Co (Sherston)

Swan Barton, Sherston, Wiltshire, SN16 0LJ

01666 840886

How much is your home worth?

Use our short form to request a valuation of your property.

Request a Valuation

Mortgage Calculator

Amount Borrowed: £
Total Amount Repayable: £
Total Monthly Payment: £
©2026 The Guild of Property Professionals. All rights reserved. Terms and Conditions | Privacy Policy | Cookie Policy | Complaints Policy | Members Login
The Guild of Property Professionals Trading Address: 121 Park Lane, London W1K 7AG. GPEA Limited. Registered in England & Wales.  Company No: 02819824.  Registered Office Address: 2 St. Stephen's Court, St. Stephen's Road, Bournemouth, Dorset, England, BH2 6LA.  VAT Registration No: 576 8795 61
Book a Property Valuation Update Cookies Preferences