Scagglethorpe, Malton, YO17

Guide Price
£650,000

Not Specified for sale in Malton

Set within a peaceful yet accessible location, this attractive parcel of land extends to approximately one acre and offers an excellent opportunity for leisure, holiday, or lifestyle use.

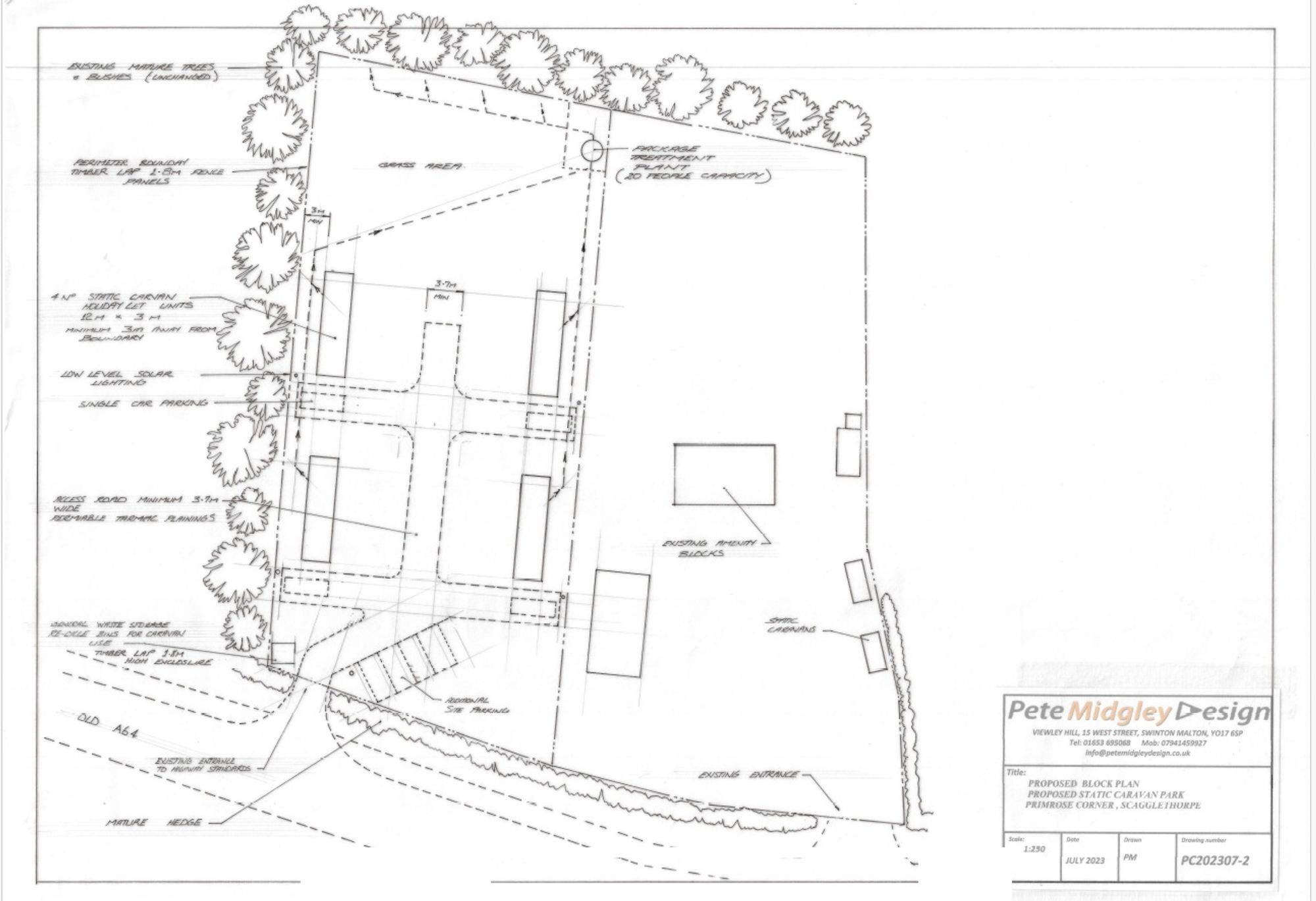
The site benefits from planning permission for the siting of four static caravans or lodges, together with two amenity buildings, providing flexibility for a variety of holiday or recreational arrangements. The grounds are well proportioned, allowing ample space for a practical and appealing layout, including landscaping and parking, ensuring the approved scheme can be implemented with ease.

The amenity buildings are thoughtfully positioned to complement the proposed caravan/lodge accommodation, supporting the overall functionality and convenience of the site.

It should be noted that both amenity buildings have been adapted for residential use, and a retrospective planning application has been submitted to regularise this change. In the event that consent is not granted, the buildings can be readily reinstated to their approved use as amenity buildings in accordance with the existing planning permission.

A static caravan may also be available by separate negotiation.

Overall, this is a versatile and well-located plot with established planning consent in place, offering immediate potential along with future flexibility, subject to the necessary approvals.

Prospective purchasers are advised to satisfy themselves as to the current planning position by making direct enquiries with North Yorkshire County Council. Specific reference to planning approvals 18/0016/FUL, 21/01223/FUL, ZE23/05028/FUL, ZE24/00543/FUL

Important Information

  • This is a Freehold property.
  • EPC Rating is C

Property Ref: 14229333-343c-4bfd-af7b-b517cfb8986b

Share:

Similar Properties

21 Hackness Road, Scarborough

6 Bedroom House | £650,000

Stunning Six-Bedroom Detached Family Home in Sought-After NewbyThis exceptional detached property offers versatile accom...

8 Sutton Farm, Langton Road, Norton, Malton, YO17 9PU

3 Bedroom Detached Bungalow | Guide Price £650,000

Stunning three-bedroom bungalow in exclusive private development with open-plan living, vaulted ceilings, ensuites, gard...

21 Hackness Road, Scarborough

6 Bedroom House | £650,000

Stunning Six-Bedroom Detached Family Home in Sought-After NewbyThis exceptional detached property offers versatile accom...

Garth Head Lane, Snainton, Scarborough, YO13 9PP

4 Bedroom Detached Bungalow | Guide Price £695,000

Set within approximately 1.76 acres on the edge of the popular village of Snainton, Strathyre is a substantial four-bedr...

Garth Head Lane, Snainton, Scarborough, YO13 9PP

4 Bedroom Detached Bungalow | Guide Price £695,000

Set within approximately 1.76 acres on the edge of the popular village of Snainton, Strathyre is a substantial four-bedr...

Manor Farm Main Street, Westow, North Yorkshire, YO60 7NE

5 Bedroom Detached House | Guide Price £695,000

Manor Farm is a beautiful five bedroom grade II listed family home located in the highly regarded village location of We...

Willowgreen Estate Agents (Malton)

Malton, North Yorkshire, YO17 7LY

01653 916600

How much is your home worth?

Use our short form to request a valuation of your property.

Request a Valuation

Mortgage Calculator

Amount Borrowed: £
Total Amount Repayable: £
Total Monthly Payment: £
©2026 The Guild of Property Professionals. All rights reserved. Terms and Conditions | Privacy Policy | Cookie Policy | Complaints Policy | Members Login
The Guild of Property Professionals Trading Address: 121 Park Lane, London W1K 7AG. GPEA Limited. Registered in England & Wales.  Company No: 02819824.  Registered Office Address: 2 St. Stephen's Court, St. Stephen's Road, Bournemouth, Dorset, England, BH2 6LA.  VAT Registration No: 576 8795 61
Book a Property Valuation Update Cookies Preferences