Semi-detached cottage with 3 acres (STS)

Offers in excess of
£750,000

4 Bedroom Semi-Detached House for sale in Manningtree

2 4 2
  • Outstanding rural property Spacious semi-detached cottage Four bedrooms Equestrian facilities incl. stables and manege Barn and double garage 3.1 acre plot (STS) of delightful gardens and paddock

Set on an expansive plot of approximately 3.1 acres (STS), this property offers a unique blend of countryside charm and modern equestrian facilities. The well-maintained paddock and manege provide ideal spaces for riding and training, while the stables ensure that all equine needs are met. Complementing these facilities is a spacious kitchen garden, perfect for those with green fingers, allowing for the cultivation of home produce.

The house itself, set amidst beautifully stocked gardens, is an oasis of tranquillity. The gardens feature a variety of mature plants, shrubs, and vibrant flowers, creating a picturesque and serene environment. Meandering paths lead through the lush greenery, offering peaceful spots to relax and enjoy the natural beauty. The garden also includes a delightful greenhouse, adding to the property's charm.

In addition to the equestrian and gardening amenities, the property boasts ample space for outdoor recreation and leisure. The lush lawns and secluded corners within the garden provide perfect settings for outdoor gatherings, whether for family picnics or elegant garden parties.

This property harmoniously blends the best of rural living with convenient facilities, making it a rare find for equestrian enthusiasts and garden lovers alike.

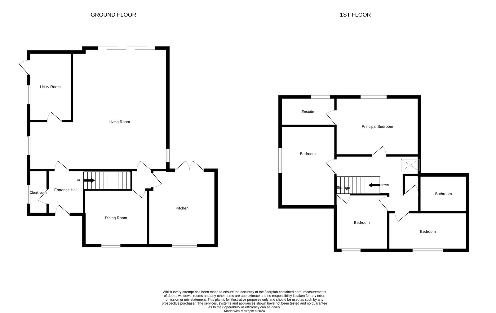
The house offers a harmonious blend of rustic charm and modern comfort, designed to cater to a variety of lifestyles. The spacious living room exudes warmth and character, featuring terracotta tile flooring, exposed wooden beams, and a wood-burning stove set within a charming brick fireplace. Large windows and French doors invite natural light to flood the space, seamlessly connecting the indoors with the lush gardens outside.

The kitchen provides plenty of space for food preparation whilst a cozy breakfast area is perfect for casual meals and family gatherings. A dedicated dining room offers a perfect spot for entertaining.

On the first floor, the principal bedroom benefits from its own ensuite facilities, whilst the remaining three bedrooms share use of the family bathroom.

The utility room and cloakroom complete the accommodation.

Important Information

  • This is a Freehold property.
  • This Council Tax band for this property is: C
  • EPC Rating is D

Property Ref: DDH240065

Share:

Similar Properties

Five bedroom detached house

5 Bedroom Detached House | Guide Price £749,995

Outstanding, circa 18th century, three-storey family home set on a generous plot in the glorious North Essex countryside...

Four bedroomed detached house

4 Bedroom Detached House | Guide Price £735,000

Set on Harwich Road in Lawford, this home delivers an outstanding blend of modern design, solid craftsmanship, and well-...

Five-bedroomed detached house

5 Bedroom Detached House | Guide Price £725,000

This detached family home offers generous and well-balanced accommodation set within a prominent corner plot. The layout...

Detached two bedroomed bungalow

2 Bedroom Detached Bungalow | Guide Price £775,000

Situated in the sought-after village of Dedham, this spacious detached bungalow is quietly positioned within Princel Mew...

Five bedroom detached house

5 Bedroom Detached House | Guide Price £775,000

Occupying a generous plot along the ever-popular Ardleigh Road in Dedham, this well-presented chalet bungalow offers fle...

Grade II listed four bedroom house

4 Bedroom Semi-Detached House | Guide Price £795,000

Beautifully located on Crown Street, with delightful views from the upper floors across the meadow, this important Grade...

Kingsleigh Estate Agents (Dedham)

Dedham, Essex, CO7 6DE

01206 940123

How much is your home worth?

Use our short form to request a valuation of your property.

Request a Valuation

Mortgage Calculator

Amount Borrowed: £
Total Amount Repayable: £
Total Monthly Payment: £
©2026 The Guild of Property Professionals. All rights reserved. Terms and Conditions | Privacy Policy | Cookie Policy | Complaints Policy | Members Login
The Guild of Property Professionals Trading Address: 121 Park Lane, London W1K 7AG. GPEA Limited. Registered in England & Wales.  Company No: 02819824.  Registered Office Address: 2 St. Stephen's Court, St. Stephen's Road, Bournemouth, Dorset, England, BH2 6LA.  VAT Registration No: 576 8795 61
Book a Property Valuation Update Cookies Preferences