Five bedroom detached house

Guide Price
£749,995

5 Bedroom Detached House for sale in Manningtree

3 5 1
  • Detached period farmhouse Three reception rooms Five bedrooms Kitchen / breakfast room Utility room Double garage with loft storage Large plot with outstanding field views

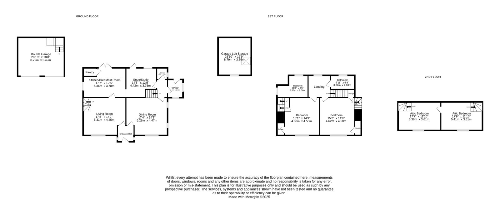
Set in the heart of the North Essex countryside, this distinguished 18th-century farmhouse – once two cottages - offers a wealth of character and charm. The ground floor is arranged to provide an inviting and practical living space, with a series of well-proportioned rooms that balance traditional period features with a comfortable and homely atmosphere.

The sitting room exudes warmth, centred around an impressive, exposed brick fireplace with a wood-burning stove, framed by original timber beams and a deep sash window that welcomes natural light. Adjacent, the dining room provides a wonderful setting for gatherings, with its own substantial fireplace adding to the sense of history and permanence.

The snug, with its exposed timber detailing and direct access to the garden, offers a quiet retreat, ideal as a study or additional relaxation space. The kitchen / breakfast room is the heart of the home, generously proportioned and designed for both functionality and conviviality. A traditional AGA, set against a backdrop of hand-crafted cabinetry and wooden work surfaces, adds a farmhouse feel, while doors leading directly onto the terrace, create a seamless connection with the outdoors.

A separate utility room ensures practical needs are met, while the ground floor cloakroom completes the ground floor accommodation, providing convenience for everyday living.

The first floor offers a generous arrangement of rooms, each exuding the character and charm of this historic farmhouse. The principal bedroom is an expansive and tranquil space, with a feature fireplace, exposed timber detailing, and soft natural light filtering through large sash windows that frame views over the surrounding countryside. A second double bedroom, equally well-proportioned, enjoys a similar outlook, while a third bedroom provides a cosy retreat.

The family bathroom is finished to a high standard, blending traditional styling with modern comfort.

Two separate staircases, one from each end of the property - lead to the second floor, where two spacious attic bedrooms are nestled beneath the original beams. These rooms have a wonderful sense of character, with exposed brickwork, sloping ceilings, and dormer windows that add to their charm. With an abundance of space and a tucked-away feel, they offer versatile accommodation, whether as additional bedrooms, workspaces, or a secluded hideaway for relaxation. The entire upper floor showcases the farmhouse’s rich history while providing ample flexibility for modern family living.

Surrounded by the rolling countryside of North Essex, the grounds of this charming farmhouse offer a peaceful and picturesque setting. Designed with a natural, organic feel, the gardens extend around the property, blending seamlessly with the wider rural landscape. Mature trees provide structure and seasonal interest, while open lawns create a sense of space and tranquillity.

A series of informal pathways meander through planted borders and wildflower pockets, leading to a secluded summerhouse that offers a quiet retreat with far-reaching views. The outdoor space invites a relaxed and self-sufficient lifestyle, with plenty of opportunities for gardening, wildlife watching, or simply enjoying the natural surroundings.

Towards the end of the garden lies a tranquil pond area, gently sheltered by planting and trees. It’s a serene hideaway that brings a real sense of calm and privacy to the outdoor space.

A gravelled driveway sweeps to the side of the property, leading to a substantial detached double garage with eaves storage – ideal for conversion subject to permissions - above, offering ample space for vehicles and additional storage. This well-considered outbuilding enhances the practicality of the home while complementing its traditional charm.

Important Information

  • This is a Freehold property.
  • This Council Tax band for this property is: F
  • EPC Rating is F

Property Ref: DDH250028

Share:

Similar Properties

Four bedroomed detached house

4 Bedroom Detached House | Guide Price £735,000

Set on Harwich Road in Lawford, this home delivers an outstanding blend of modern design, solid craftsmanship, and well-...

Five-bedroomed detached house

5 Bedroom Detached House | Guide Price £725,000

This detached family home offers generous and well-balanced accommodation set within a prominent corner plot. The layout...

Four bedroom detached house

4 Bedroom Detached House | Offers in excess of £700,000

Occupying a pleasant position within Picotts Place in the sought-after village of Ardleigh, this immaculately presented...

Semi-detached cottage with 3 acres (STS)

4 Bedroom Semi-Detached House | Offers in excess of £750,000

Outstanding property with equestrian facilities, on a plot of approximately 3.1 acres (STS). The semi-detached cottage o...

Detached two bedroomed bungalow

2 Bedroom Detached Bungalow | Guide Price £775,000

Situated in the sought-after village of Dedham, this spacious detached bungalow is quietly positioned within Princel Mew...

Five bedroom detached house

5 Bedroom Detached House | Guide Price £775,000

Occupying a generous plot along the ever-popular Ardleigh Road in Dedham, this well-presented chalet bungalow offers fle...

Kingsleigh Estate Agents (Dedham)

Dedham, Essex, CO7 6DE

01206 940123

How much is your home worth?

Use our short form to request a valuation of your property.

Request a Valuation

Mortgage Calculator

Amount Borrowed: £
Total Amount Repayable: £
Total Monthly Payment: £
©2026 The Guild of Property Professionals. All rights reserved. Terms and Conditions | Privacy Policy | Cookie Policy | Complaints Policy | Members Login
The Guild of Property Professionals Trading Address: 121 Park Lane, London W1K 7AG. GPEA Limited. Registered in England & Wales.  Company No: 02819824.  Registered Office Address: 2 St. Stephen's Court, St. Stephen's Road, Bournemouth, Dorset, England, BH2 6LA.  VAT Registration No: 576 8795 61
Book a Property Valuation Update Cookies Preferences