Park Crescent Road, Margate

£99,000
SSTC
This property listing is now SSTC

Not Specified for sale in Margate

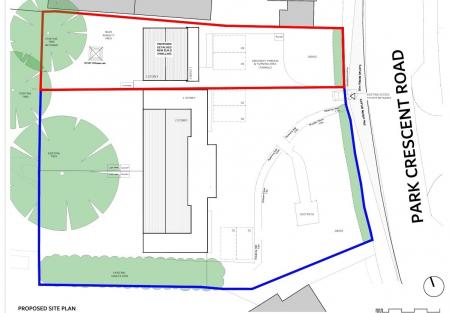
  • Development opportunity
  • Plot of land
  • Planning for three bedroom detached
  • Planning number f/th/23/1121
  • To include parking
  • To include enclosed rear garden
  • Residential location
  • Freehold

Cooke & Co are pleased to offer this fantastic opportunity to buy a parcel of land with planning permission granted for a three bedroom detached property with front and rear gardens. Once built, the property would benefit from an entrance hall, lounge, open plan kitchen/diner, utility room, study and downstairs cloakroom. While upstairs there are three bedrooms, the primary benefitting from an en suite, and a family bathroom. The plans also include parking for two cars to the front, access via a private driveway already existing for the neighbouring properties.
More information can be found on Thanet's Planning Portal, planning number: F/TH/23/1121

Important Information

  • This is a Freehold property.

Property Ref: 202202_COOKEANDCO_5934

Share:

Similar Properties

Wellington Crescent, Ramsgate

1 Bedroom Not Specified | £85,000

NO ONWARD CHAIN - GROUND FLOOR ONE BEDROOM RETIREMENT APARTMENT WITH PRIVATE GARDEN IN RAMSGATE !! Cooke & Co are deligh...

Harold Road, Margate

2 Bedroom Not Specified | £80,000

Cooke & Co are pleased to offer this very spacious two bedroom top floor retirement apartment to the market, which is be...

Harold Road, Margate

1 Bedroom Not Specified | Offers in region of £38,000

Cooke & Co are pleased to offer this one-bedroom retirement apartment to the market, located on the first floor of the b...

Victoria Parade, Ramsgate

1 Bedroom Not Specified | £99,950

Cooke & Co are delighted to present this charming CHAIN FREE one-bedroom retirement flat, offering a peaceful seaside re...

Wardour Close, Broadstairs

1 Bedroom Flat | £100,000

Cooke & Co are pleased to present this CHAIN FREE, one-bedroom bolt hole tucked just off the centre of Broadstairssteps...

Northdown Avenue, Margate

1 Bedroom Flat | £115,000

Cooke and Co are delighted to bring to the market this one bedroom first floor apartment located within a charming Victo...

Cooke & Co Estate and Letting Agents (Cliftonville)

Cliftonville, Kent, CT9 2QY

01843 231833

How much is your home worth?

Use our short form to request a valuation of your property.

Request a Valuation

Mortgage Calculator

Amount Borrowed: £
Total Amount Repayable: £
Total Monthly Payment: £
©2025 The Guild of Property Professionals. All rights reserved. Terms and Conditions | Privacy Policy | Cookie Policy | Complaints Policy | Members Login
The Guild of Property Professionals Trading Address: 121 Park Lane, London W1K 7AG. GPEA Limited. Registered in England & Wales.  Company No: 02819824.  Registered Office Address: 2 St. Stephen's Court, St. Stephen's Road, Bournemouth, Dorset, England, BH2 6LA.  VAT Registration No: 576 8795 61
Book a Property Valuation Update Cookies Preferences