Nightingale Place, Margate

£370,000
SSTC
This property listing is now SSTC

3 Bedroom Semi-Detached House for sale in Margate

1 3 1
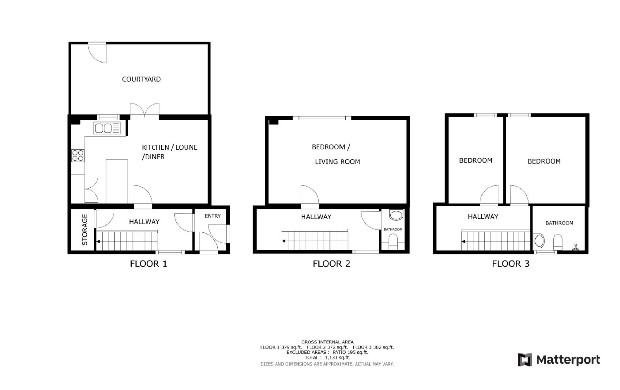
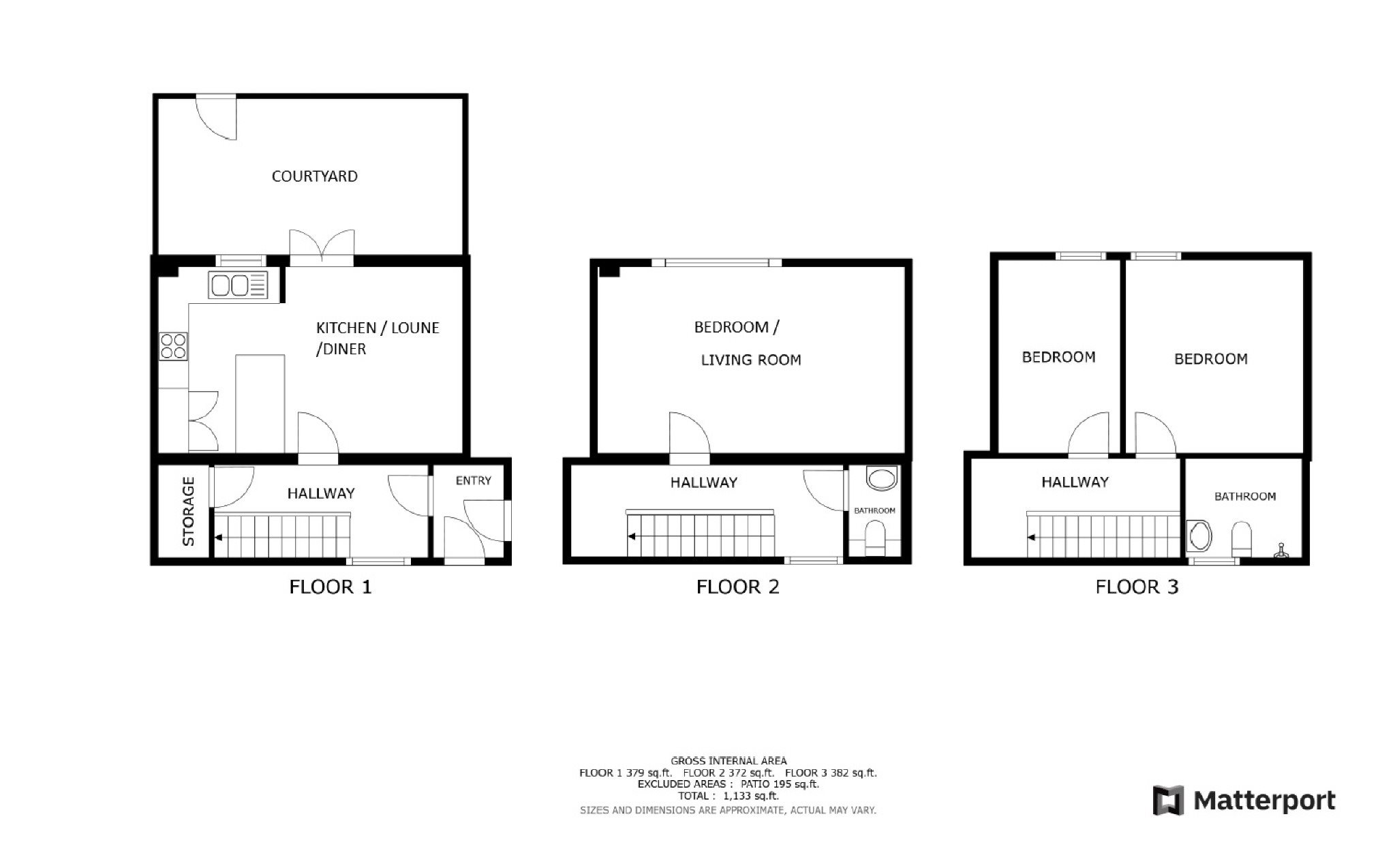
  • Three bedrooms
  • Open plan living
  • Council tax band: c
  • Courtyard
  • Off street parking for two
  • Cloakroom
  • Set over three floors
  • Secluded location
  • Epc rating: d
  • Freehold

A Hidden Gem in Margate Full of Character, Charm, and Community Vibes.

Cooke & Co are delighted to bring to market this truly individual three-bedroom terrace home, quietly tucked away in a peaceful and characterful enclave of Margate. Set within a small, friendly development, this beautifully presented property offers a unique opportunity for buyers seeking something with real personality, history, and a warm community feel.

Originally built circa 1898 as part of the historic Princess Mary's Children's Convalescence Hospital, the home blends period charm with modern comfort across three thoughtfully arranged floors. The spacious accommodation includes a welcoming entrance hall, an open-plan kitchen/lounge/diner perfect for both everyday living and entertaining, and three generous bedrooms spread across the upper levels as well as a cloakroom. The bathroom features a stylish suite including a rainfall shower and bath, while period-style windows and high ceilings throughout add a touch of timeless character.

Outside, the private rear courtyard provides a low-maintenance space to relax. The home also benefits from two allocated off-street parking spaces a rare and valuable bonus in such a sought-after coastal location.

Perfectly positioned just moments from Walpole Bay and Margate's stunning tidal pool, this home invites you to embrace the best of seaside living. Start your day with a bracing sea swim followed by a warm-up at the nearby Haeckels sauna, or enjoy brunch at local favourites like Cliffs, Casa, or Picnic. The creative heart of Margate is also on your doorstep, with the Old Town, Turner Contemporary, and The Tom Thumb Theatre all within easy reach.

If you're looking for a home that offers more than the ordinary one with history, heart, and a vibrant lifestyle close by this is one not to miss.
Call Cooke & Co today to book your accompanied viewing or visit www.cookeandco.com for more information. Homes like this are a rare find don't m..

Important Information

  • This is a Freehold property.

Property Ref: 202202_COOKEANDCO_6390

Share:

Similar Properties

Vicarage Street, Broadstairs

2 Bedroom Detached Bungalow | £350,000

Charming Detached Bungalow in the Heart of St. Peter's Village, Broadstairs . Situated on the ever-popular Vicarage Stre...

St. Lukes Avenue, Ramsgate

4 Bedroom Semi-Detached House | £350,000

Cooke & Co are pleased to offer this beautifully presented four-bedroom semi-detached home, set in the sought-after St....

Wilkes Road, Broadstairs

2 Bedroom Detached Bungalow | Offers in excess of £350,000

OFFERS IN EXCESS OF £350,000 Cooke & Co are delighted to bring to the market this two-bedroom detached bungalow, set on...

Sea Road, Westgate-on-sea

3 Bedroom Flat | £375,000

Occupying a prime position along the sought-after Westgate coastline, this spacious three-bedroom apartment boasts direc...

Cedar Crescent, North Baddesley

2 Bedroom Detached Bungalow | Guide Price £375,000

CHAIN FREE - DETEACHED - BUNGALOW This charming 2 bedroom detached bungalow offers comfortable and practical living in a...

East Northdown Close, Margate

2 Bedroom Detached Bungalow | £380,000

Nestled at the end of a peaceful cul-de-sac, this well-maintained two-bedroom detached bungalow offers spacious and vers...

Cooke & Co Estate and Letting Agents (Cliftonville)

Cliftonville, Kent, CT9 2QY

01843 231833

How much is your home worth?

Use our short form to request a valuation of your property.

Request a Valuation

Mortgage Calculator

Amount Borrowed: £
Total Amount Repayable: £
Total Monthly Payment: £
©2025 The Guild of Property Professionals. All rights reserved. Terms and Conditions | Privacy Policy | Cookie Policy | Complaints Policy | Members Login
The Guild of Property Professionals Trading Address: 121 Park Lane, London W1K 7AG. GPEA Limited. Registered in England & Wales.  Company No: 02819824.  Registered Office Address: 2 St. Stephen's Court, St. Stephen's Road, Bournemouth, Dorset, England, BH2 6LA.  VAT Registration No: 576 8795 61
Book a Property Valuation Update Cookies Preferences