Northdown Road, Margate, Cliftonville

£165,000
SSTC
This property listing is now SSTC

Shop for sale in Margate

1
  • Commercial investment
  • Good yield
  • A1 usage
  • High street location
  • Gfch
  • Kitchenettes
  • Cloakroom
  • Courtyard
  • Epc rating: c
  • Freehold

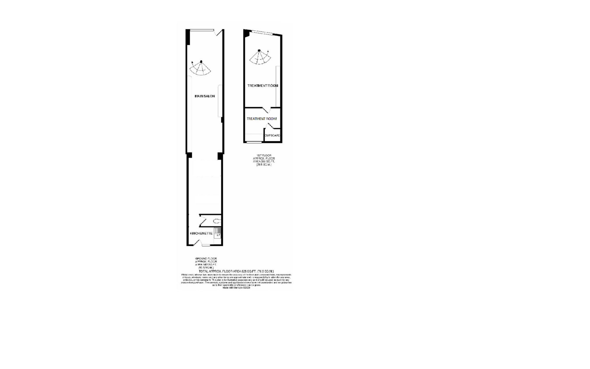
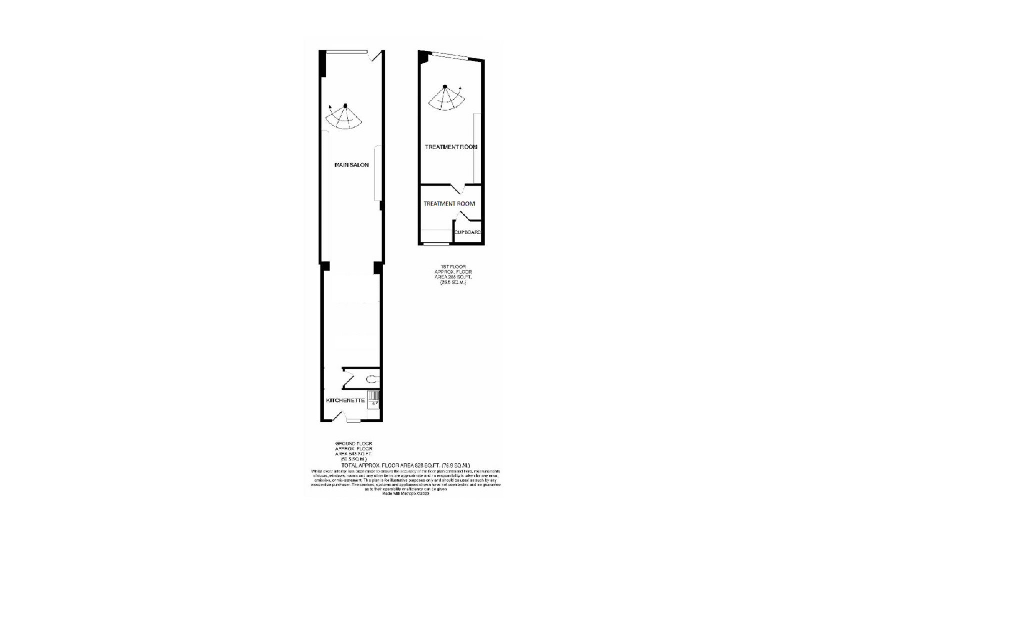
Cooke & Co are delighted to offer this commercial investment opportunity which is currently rented out as beauty salon with additional treatment room upstairs. The space is very well presented and the vendor informs us that they currently achieve £9.6k per annum (5.8% gross yield). The main salon stretches 49ft in length and boasts a reception area to the front and a separate customer WC and kitchenette to the rear. There is also access to a courtyard garden from the kitchen. A spiral wooden staircase takes you upstairs to another room which offers further beauty treatments. Being situated on the busy Northdown Road with plenty of footfall and public transport you would benefit from being amongst plenty of established trades. Call us today to arrange your viewing 01843 231833 or see more online at cookeandco.com

Important Information

  • This is a Freehold property.

Property Ref: 202202_COOKEANDCO_6138

Share:

Similar Properties

Cannonbury Road, Ramsgate

2 Bedroom Flat | £165,000

Cooke & Co are delighted to bring to the market this CHAIN FREE, spacious two-bedroom flat, ideally situated right in th...

St. Mildreds Road, Ramsgate

2 Bedroom Flat | £160,000

Cooke & Co are proud to bring to the market this beautifully designed two-bedroom, two-bathroom flat, located on the sec...

Norfolk Road, Margate, Cliftonville

2 Bedroom Flat | £160,000

Cooke & Co are delighted to bring to the market this two-bedroom ground floor apartment, set within a charming double-fr...

Clarendon Road, Margate

2 Bedroom Flat | £169,999

Cooke & Co are delighted to present this charming top-floor apartment, perfectly positioned to enjoy wonderful rooftop a...

King Charles Avenue, Ramsgate

2 Bedroom Flat | Offers in excess of £170,000

Cooke & Co are pleased to bring to market this delightful two-bedroom flat, perfectly positioned in a sought-after locat...

Carroways Place, Margate

2 Bedroom Terraced House | £175,000

Two Bedroom Terrace Home - Ideal First-Time Buy ! Offered with No Onward Chain and located within walking distance of Ma...

Cooke & Co Estate and Letting Agents (Cliftonville)

Cliftonville, Kent, CT9 2QY

01843 231833

How much is your home worth?

Use our short form to request a valuation of your property.

Request a Valuation

Mortgage Calculator

Amount Borrowed: £
Total Amount Repayable: £
Total Monthly Payment: £
©2025 The Guild of Property Professionals. All rights reserved. Terms and Conditions | Privacy Policy | Cookie Policy | Complaints Policy | Members Login
The Guild of Property Professionals Trading Address: 121 Park Lane, London W1K 7AG. GPEA Limited. Registered in England & Wales.  Company No: 02819824.  Registered Office Address: 2 St. Stephen's Court, St. Stephen's Road, Bournemouth, Dorset, England, BH2 6LA.  VAT Registration No: 576 8795 61
Book a Property Valuation Update Cookies Preferences