Church Walks, Norton-In-Hales, TF9

Offers in excess of
£600,000

4 Bedroom Detached House for sale in Market Drayton

3 4 3
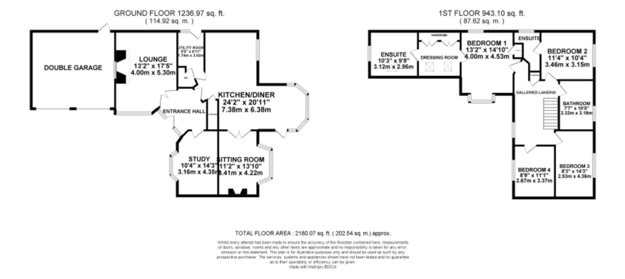
  • Spacious Family Home - Exceptional four-bedroom detached property offering versatile and spacious living in a beautiful village setting.
  • Three versatile reception rooms including a cosy lounge with a log-burning stove, a separate study, and an additional reception room ideal for relaxing, working, or entertaining.
  • Garden Views and Ample Parking - Rear garden overlooking surrounding fields, along with a driveway for up to three vehicles and a double garage for secure parking or storage.
  • Open Kitchen & Dining Area - A light-filled kitchen leading into an open dining area
  • Ideal Village Location - Located in Norton-in-Hales an idyllic, beautiful rural village within easy commutable distance of Market Drayton, Nantwich & Shrewsbury

Roses are red, violets are blue, your dream home is waiting just for you. Step inside Rose Cottage, where dreams really do come true.

This exceptional four-bedroom detached property presents an outstanding opportunity for those seeking versatile and spacious living in a beautiful village setting. Upon entering, you are welcomed by a spacious hallway that leads you to the cosy lounge, complete with a log-burning stove, perfect for relaxing evenings with family and friends. Situated opposite the lounge at the front of the house is the study, offering a versatile space ideal for use as a home office or a playroom for younger members of the family. The true heart of the home is the kitchen, which flows seamlessly into the open dining area – a light-filled space that connects effortlessly to the third reception room, making it ideal for both everyday family living and more formal entertaining, with easy access to the rear garden for summer evenings and family barbecues. The ground floor also benefits from a convenient cloakroom/WC, adding practicality to the well-designed layout.

Upstairs, the property continues to impress with four double bedrooms, two of which benefit from en-suite facilities. The principal bedroom is a true retreat, featuring a private walk-through dressing room that leads to a luxurious en-suite bathroom, beautifully appointed with a roll-top bath and separate shower – a standout feature that adds a touch of indulgence to everyday living. The remaining bedrooms are served by a large family bathroom equipped with both bath and shower, designed with both style and practicality in mind.

Externally, the property offers a driveway providing parking for up to three vehicles along with a double garage, offering secure parking or valuable additional storage. To the rear, the garden provides a peaceful setting with views across the surrounding fields, enhancing the tranquillity of village life. A further highlight is the gated access at the rear of the garden, leading directly to the village clubhouse and recreational grounds, including cricket pitches, two grass tennis courts and a bowling green – perfect for those who enjoy an active and sociable lifestyle.

With its versatile reception rooms, luxurious principal suite and elegant yet practical layout, this property is certain to appeal to those seeking a forever home that adapts to every stage of family life without compromising on comfort or style. Early viewing is highly recommended to fully appreciate the thoughtful design and enviable setting on offer in this outstanding residence. Please contact the Eccleshall office today on 01785 851886 to arrange your viewing.

Important Information

  • This is a Freehold property.
  • This Council Tax band for this property is: G
  • EPC Rating is D

Property Ref: 9b6f65f8-c0d9-49f8-b5e4-4ae3a1aae4af

Share:

Similar Properties

A41, Stableford, ST5

Not Specified | Offers in region of £600,000

Now we all know that we have to grasp an opportunity and "take the bull by the horns" in order to make the most of thing...

Bearstone Road, Norton-In-Hales, TF9

4 Bedroom Detached House | £600,000

PART EXCHANGE/HOUSE SWAP CONSIDERED!!Q Charming 4-bed home in Norton-In-Hales. Spacious living accommodation, 3 bathroom...

Heath Top, Ashley Heath, TF9

4 Bedroom Detached House | Offers in excess of £600,000

This impressive four-bedroom detached bungalow is a rare find, offering a harmonious blend of spacious living, stylish f...

Pinewood Road, Ashley, TF9

3 Bedroom Detached Bungalow | Price from £615,000

Exceptional A-rated new-build spacious bungalows with landscaped gardens, designer kitchens, advanced eco tech, and a 10...

Forge Lane, Norton-In-Hales, TF9

4 Bedroom Detached House | £625,000

A fabulous four bedroom detached home, perfect for families, nestled in the heart of the coveted village of Norton In Ha...

Moreton Say, Market Drayton, TF9

4 Bedroom Detached Bungalow | Offers in excess of £625,000

Stunning renovated 4/5 bed detached bungalow on 0.5 acre. Open plan living, luxury kitchen, two bathrooms, versatile spa...

James Du Pavey Estate Agents (Eccleshall)

Eccleshall, Staffordshire, ST21 6BH

01785 851886

How much is your home worth?

Use our short form to request a valuation of your property.

Request a Valuation

Mortgage Calculator

Amount Borrowed: £
Total Amount Repayable: £
Total Monthly Payment: £
©2026 The Guild of Property Professionals. All rights reserved. Terms and Conditions | Privacy Policy | Cookie Policy | Complaints Policy | Members Login
The Guild of Property Professionals Trading Address: 121 Park Lane, London W1K 7AG. GPEA Limited. Registered in England & Wales.  Company No: 02819824.  Registered Office Address: 2 St. Stephen's Court, St. Stephen's Road, Bournemouth, Dorset, England, BH2 6LA.  VAT Registration No: 576 8795 61
Book a Property Valuation Update Cookies Preferences