Thorpe Lane, Tealby, Market Rasen

£635,000

5 Bedroom Detached House for sale in Market Rasen

5 3
  • Approximately 2,500 sq ft of accommodation
  • Grounds of around 0.42 acres (STS)
  • Five bedrooms with dressing room to principal
  • Edwardian detached home in sought-after Tealby
  • Three reception rooms and study
  • Detached double garage and gated driveway
  • Solar panels with feed-in tariff income
  • Edge of the Lincolnshire Wolds AONB location
  • EPC Energy Rating - C
  • Council Tax Band - F (West Lindsay District Council)

Situated on the western edge of the highly sought after village of Tealby, Shepherd's Hill is a striking Detached Edwardian residence set within grounds of approximately 0.42 acres (STS). The property enjoys open views over the surrounding countryside and offers generous accommodation extending to approximately 2,500 sq ft. The house has been improved in recent years including a refitted Kitchen, new detached garage, underfloor heating to the Bathrooms, the creation of a Study and Wet Room and the addition of a Conservatory. The property retains a number of original features including exposed beams, wood flooring and fireplaces. The Ground Floor accommodation centres around a welcoming Entrance Hall leading to a number of Reception Rooms including a Sitting Room, Dining Room and Family Room which can interconnect to create an excellent entertaining space. There is also a Breakfast Kitchen with informal Seating Area, Study, Conservatory, Utility Room, Wet Room and separate WC. To the First Floor there are Five Bedrooms including a Principal Bedroom with Juliet Balcony, Dressing Room and WC. There are also Two further Bath and Shower Rooms serving the remaining Bedrooms. Externally the property stands within well maintained grounds of approximately 0.42 acres (STS) with a gated driveway providing parking for several vehicles and access to a detached double garage and outside store. The mature gardens are mainly laid to lawn and include a variety of fruit trees along with a large elevated terrace with built-in barbecue, ornamental pond, vegetable garden and timber summer house. 

LOCATION Tealby is a village and civil parish in the West Lindsey district of Lincolnshire situated on the edge of the Lincolnshire Wolds and 3 miles north-east from Market Rasen. The village has a public house, tennis and bowls club, a school, village shop, a tea room and offers many pleasant walks in the surrounding countryside.  

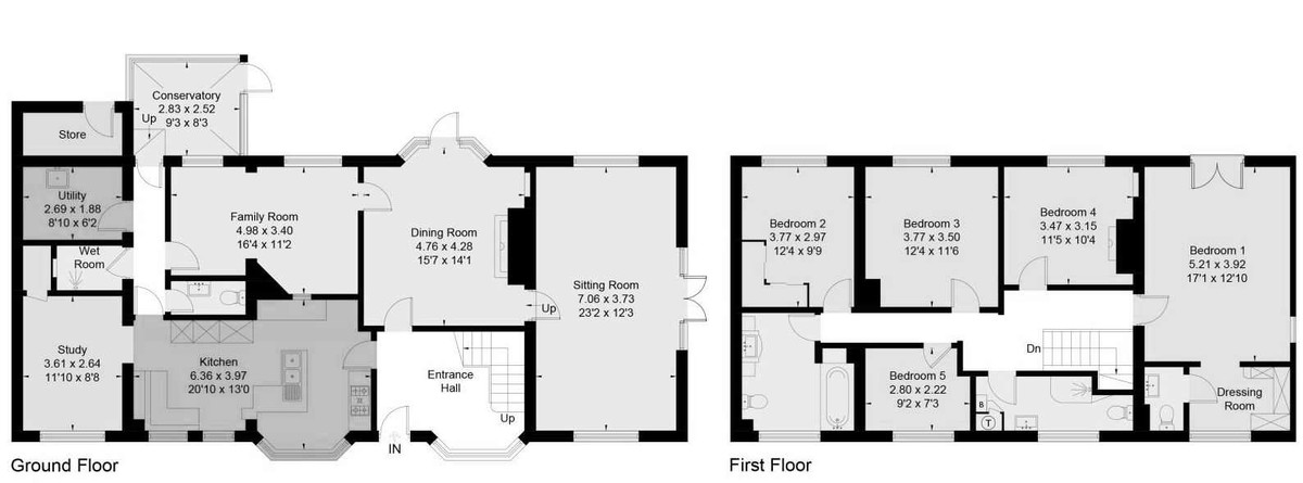
ENTRANCE HALL With timber external door, UPVC double glazed window, solid wood flooring, stairs to the first floor, understairs storage cupboard and radiator. 

SITTING ROOM 23' 2" x 12' 3" (7.06m x 3.73m) With two UPVC double glazed windows, double doors to side garden and two radiators. 

DINING ROOM 15' 7" x 14' 1" (4.75m x 4.29m) With UPVC double glazed bay window with external door, original floorboards, exposed beam ceiling and fireplace. 

FAMILY ROOM 16' 4" x 11' 2" (4.98m x 3.4m) With two UPVC double glazed windows, exposed beam ceiling and two radiators. 

KITCHEN 20' 10" x 13' 0" (6.35m x 3.96m) With three UPVC double glazed windows, tiled flooring, fitted units with quartz work surfaces, spaces for range cooker and American style fridge freezer, centre island with composite sink and integrated
dishwasher.
 

STUDY 11' 10" x 8' 8" (3.61m x 2.64m) With UPVC double glazed window and radiator. 

INNER HALLWAY  

WET ROOM With tiled flooring and walls, mains shower, heated towel rail, spotlighting and extractor fan. 

WC With low level WC, wash hand basin, radiator and extractor fan. 

UTILITY ROOM 8' 10" x 6' 2" (2.69m x 1.88m) With Belfast sink, radiator and extractor fan. 

CONSERVATORY 9' 3" x 8' 3" (2.82m x 2.51m) With UPVC double glazed windows and external door. 

FIRST FLOOR LANDING With two accesses to roof void and radiator. 

BEDROOM 1 17' 1" x 12' 10" (5.21m x 3.91m) With UPVC double glazed window and double doors opening to Juliet balcony with open views and dressing room. 

EN-SUITE WC With low level WC, wash hand basin, heated towel rail and extractor fan. 

BEDROOM 2 12' 4" x 9' 9" (3.76m x 2.97m) With UPVC double glazed window, fitted wardrobes and radiator. 

BEDROOM 3 12' 4" x 11' 6" (3.76m x 3.51m) With UPVC double glazed window and radiator. 

BEDROOM 4 11' 5" x 10' 4" (3.48m x 3.15m) With UPVC double glazed window and radiator. 

BEDROOM 5 9' 2" x 7' 3" (2.79m x 2.21m) With UPVC double glazed window and radiator. 

SHOWER ROOM With UPVC double glazed window, exposed floorboards, WC, wash hand basin, shower cubicle and gas boiler. 

BATHROOM With UPVC double glazed window, tiled flooring, WC, wash hand basin, bath with tiled surround and heated towel rail. 

OUTSIDE Externally the property stands within well maintained grounds of approximately 0.42 acres (STS) with a gated driveway providing parking for several vehicles and access to a detached double garage and outside store. The mature gardens are mainly laid to lawn and include a variety of fruit trees along with a large elevated terrace with built-in barbecue, ornamental pond, vegetable garden and timber summer house.  

Property Ref: 102125036225

Share:

Similar Properties

Kirmond-le-mire, Market Rasen

3 Bedroom Detached House | Offers Over £575,000

Welcome to Oakwood House, a superb detached family home located on an elevated position between the villages of Tealby a...

Front Street, Normanby-by-spital

4 Bedroom Detached Bungalow | £575,000

Tucked away in a peaceful position in the heart of the picturesque village of Normanby-by-Spital, Kippen is a beautifull...

Bleasby Moor, Market Rasen

4 Bedroom Detached House | £570,000

A fantastic opportunity to acquire a substantial four bedroom detached family home, situated in the quiet and peaceful v...

North Owersby, Market Rasen

5 Bedroom Detached House | £650,000

A rare opportunity to acquire this substantial period home, set within extensive and well-established grounds in a peace...

North End Lane, South Kelsey

5 Bedroom Detached House | £650,000

An exceptional Brand New Five Bedroom Detached Home of approx. 262m² (2,820 sq.ft) plus double garage, set in a non-esta...

Bishop Norton Road, Market Rasen

3 Bedroom Detached House | £675,000

This is a beautiful self-built, three bedroomed detached Grand Design style property located in the semi-rural village o...

Mundys Market Rasen (Market Rasen)

22 Queen Street, Market Rasen, Lincolnshire, LN8 3EH

01673 847487

How much is your home worth?

Use our short form to request a valuation of your property.

Request a Valuation

Mortgage Calculator

Amount Borrowed: £
Total Amount Repayable: £
Total Monthly Payment: £
©2026 The Guild of Property Professionals. All rights reserved. Terms and Conditions | Privacy Policy | Cookie Policy | Complaints Policy | Members Login
The Guild of Property Professionals Trading Address: 121 Park Lane, London W1K 7AG. GPEA Limited. Registered in England & Wales.  Company No: 02819824.  Registered Office Address: 2 St. Stephen's Court, St. Stephen's Road, Bournemouth, Dorset, England, BH2 6LA.  VAT Registration No: 576 8795 61
Book a Property Valuation Update Cookies Preferences