Off Moor Road, Walesby, Market Rasen

£425,000

4 Bedroom Detached House for sale in Market Rasen

4 2
  • Detached Family Home in a quiet lane in the sought after village of Walesby
  • Flexible accommodation ideal for family living
  • Lounge with feature fireplace and open fire
  • Four Bedrooms, including principal Bedroom with En-suite
  • Kitchen with Utility Room plus Dining Room and Study/Snug
  • Generous front, side and rear gardens
  • Timber garage and gravel driveway with ample off-road parking
  • Biomass wood pellet central heating and separate EV charging point
  • EPC Energy Rating - E
  • Council Tax Band - D (West Lindsay District Council)

A Stunning Detached Family Home situated in a quiet lane within the popular Lincolnshire Wolds village of Walesby. The property offers flexible accommodation ideal for family living, including a Lounge with feature fireplace and open fire, a Study/Snug, WC, Dining Room, Kitchen with Utility, Four Bedrooms including a principal with En-suite and a Family Bathroom. The property sits on generous gardens to the front, side and rear and benefits from a timber garage, gravelled driveway providing ample off-road parking, a biomass wood pellet central heating system and a separate EV charging point. Walesby is a picturesque village in the Lincolnshire Wolds Area of Outstanding Natural Beauty, popular with walkers, cyclists and horse riders. It falls within catchment areas for primary, comprehensive and grammar schools and is midway between Lincoln and Grimsby. Market Rasen is just 3 miles away, offering shops, supermarkets, racecourse, golf course and a train station. The property has easy access to the A46.
 

LOCATION Walesby is a lovely village in the Lincolnshire Wolds Area of Outstanding Natural Beauty. Situated on the Viking Way, Walesby is popular with walkers, horse riders, cyclists and visitors to the renowned Ramblers' Church. Community spirit is strong in Walesby with its thriving village hall, Church and Neighbourhood Watch scheme. The village falls within the catchment areas of excellent primary, comprehensive and grammar schools. Midway between Lincoln and Grimsby, the village has easy access to the A46 and is within 3 miles of Market Rasen with its station, health centre, independent shops, supermarkets, race and golf courses. A half hour walk along the Viking Way leads to a tea shop and two pubs in the neighbouring village of Tealby. 

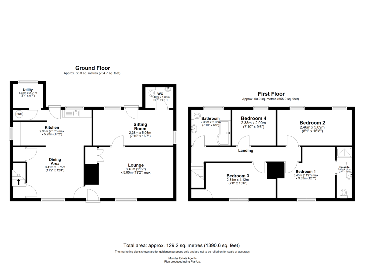
LOUNGE 19' 2" x 11' 2" (5.84m x 3.4m) With timber entrance door, double glazed window to the front aspect, fitted storage, tiled flooring, feature fireplace with open fire and radiator. 

SITTING ROOM/STUDY 16' 7" x 7' 10" (5.05m x 2.39m) With double glazed window to the rear aspect, picture window to the side aspect, radiator, laminate flooring and double glazed rear entrance door. 

WC 6' 1" x 4' 7" (1.85m x 1.4m) With low level WC, hand wash basin, tiled splashbacks, tiled flooring and double glazed window to the rear aspect.
 

DINING AREA 12' 4" x 11' 2" (3.76m x 3.4m) With double glazed window to the front aspect, radiator, wood flooring, feature fireplace and stairs to first floor accommodation with storage cupboard under. 

KITCHEN 17' 2" x 7' 10" (5.23m x 2.39m) With a range of freestanding units, stainless steel sink unit, space and plumbing for dishwasher, spaces for electric oven and fridge freezer, radiator, tiled splashbacks, tiled flooring, double glazed windows to the rear and side aspects and UPVC rear entrance door. 

UTILITY ROOM 6' 7" x 5' 4" (2.01m x 1.63m) With space and plumbing for washing machine, radiator, tiled flooring and double glazed window to the rear aspect. 

FIRST FLOOR LANDING With double glazed window to the side aspect, two roof void accesses, laminate flooring and radiator. 

BEDROOM 1 12' 7" x 11' 2" (3.84m x 3.4m) With double glazed window to the front aspect, radiator, feature fireplace and laminate flooring. 

EN-SUITE 11' 3" x 3' 4" (3.43m x 1.02m) Three piece suite comprising of a low level WC, vanity hand wash basin, shower cubicle, tiled splashbacks, laminate flooring and heated towel rail.
 

BEDROOM 2 16' 8" x 8' 1" (5.08m x 2.46m) With two double glazed windows to the rear aspect, radiator and laminate flooring. 

BEDROOM 3 13' 6" x 7' 8" (4.11m x 2.34m) With double glazed window to the front aspect, radiator, laminate flooring and airing cupboard housing hot water cylinder. 

BEDROOM 4 9' 6" x 7' 10" (2.9m x 2.39m) With double glazed window to the rear aspect, radiator and laminate flooring. 

BATHROOM 7' 10" x 6' 9" (2.39m x 2.06m) Three piece suite comprising of a low level WC, pedestal hand wash basin, panelled bath with shower, tiled splashbacks, tiled flooring, radiator and double glazed window to the rear aspect. 

OUTSIDE Generous gardens to the front, side and rear, mostly laid to lawn with gravelled seating area, raised decking and timber sheds. Timber garage and gravelled driveway providing off-road parking for multiple vehicles. 

Property Ref: 102125028419

Share:

Similar Properties

Plot 3, The Hamilton, Lime Grove, Bardney

4 Bedroom Detached House | Offers Over £425,000

Visit Lime Grove in Bardney and explore the final homes on Phase 1 from £300,000, plus get a first look at what Phase 2...

Main Street, Grasby, Barnetby

4 Bedroom Semi-Detached House | £425,000

A stunning four bedroom family home located in the sought after village of Grasby, positioned to the north of the Georgi...

Shooters Close, Caistor, Market Rasen

3 Bedroom Detached Bungalow | £415,000

An exceptional and brand new detached bungalow situated within this small exclusive development of seven other bungalows...

Plot 5, The Southwold, Lime Grove, Bardney

4 Bedroom Detached House | £440,000

Visit Lime Grove in Bardney and explore the final homes on Phase 1 from £300,000, plus get a first look at what Phase 2...

Plot 53, The Hamilton, Lime Grove

4 Bedroom Detached House | £450,000

Visit Lime Grove in Bardney and explore the final homes on Phase 1 from £300,000, plus get a first look at what Phase 2...

Rasen Road, Tealby, Market Rasen

3 Bedroom Detached House | £450,000

A detached period home located within the sought after Lincolnshire Wolds village of Tealby and within a short walk to t...

Mundys Market Rasen (Market Rasen)

22 Queen Street, Market Rasen, Lincolnshire, LN8 3EH

01673 847487

How much is your home worth?

Use our short form to request a valuation of your property.

Request a Valuation

Mortgage Calculator

Amount Borrowed: £
Total Amount Repayable: £
Total Monthly Payment: £
©2026 The Guild of Property Professionals. All rights reserved. Terms and Conditions | Privacy Policy | Cookie Policy | Complaints Policy | Members Login
The Guild of Property Professionals Trading Address: 121 Park Lane, London W1K 7AG. GPEA Limited. Registered in England & Wales.  Company No: 02819824.  Registered Office Address: 2 St. Stephen's Court, St. Stephen's Road, Bournemouth, Dorset, England, BH2 6LA.  VAT Registration No: 576 8795 61
Book a Property Valuation Update Cookies Preferences