Robin Hood Close, Mawdesley, L40 2RG

£565,000

3 Bedroom Detached House for sale in Mawdesley

2 3 4
  • Stunning new build
  • Three double bedrooms
  • Gorgeous views to the rear
  • Versatile accommodation
  • Exclusive bespoke development
  • No chain

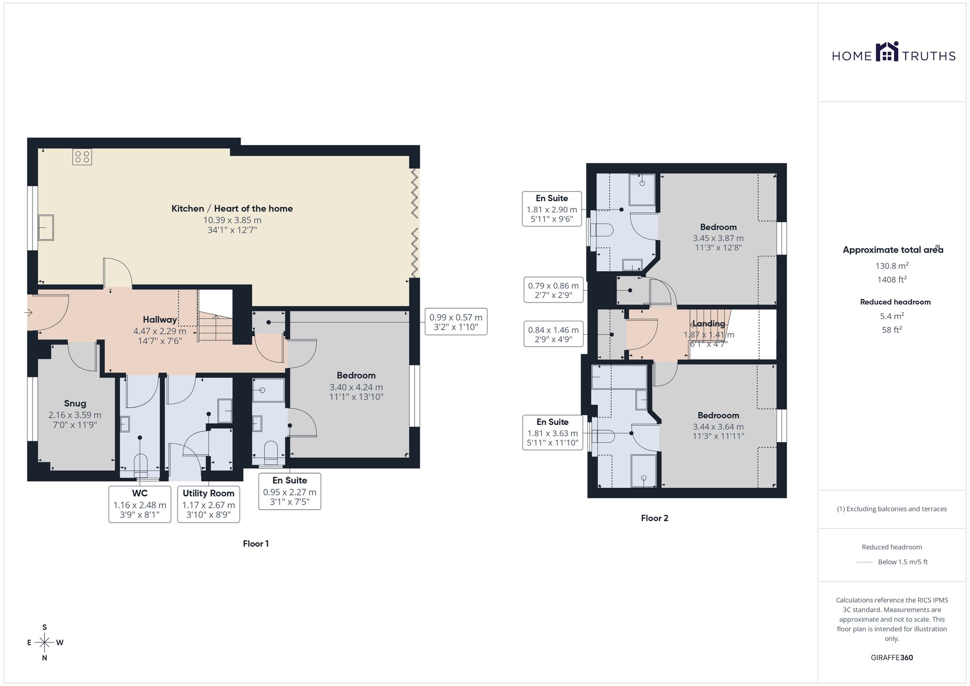
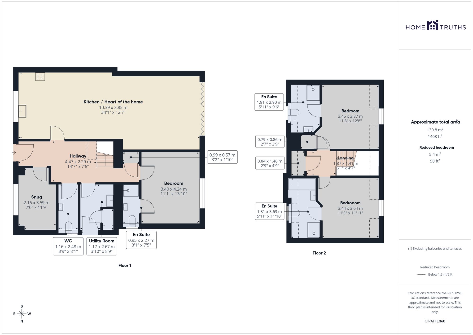
Stunning, spacious, individual detached property, one of only five on this exclusive development, with views out over fields and trees.  With c 1400 square feet of versatile accommodation this is a perfect place to call home.

Step into the wide and welcoming entrance hallway with luxury vinyl tile flooring which flows through most of the ground floor which benefits from underfloor heating.  To the left is the stunning heart of the home with lantern and bifolding doors for plenty of natural light and views over open countryside,  ample space for both dining and comfortable furniture and kitchen comprising a range of wall and base units with central island and topped by granite work surfaces and splashbacks with etched drainer.  Integrated appliances are by Neff and include induction hob, multi oven, oven and grill, refrigerator, freezer and dishwasher.

To the right of the home is the snug/home office. The ground floor also comprises of the utility/boot room with separate external access granite work surfaces with etched drainer, and cloakroom comprising wc, wash hand basin on floating vanity, and airing cupboard with hot water tank. Completing the ground floor is the principal bedroom with en suite comprising wash hand basin on floating vanity, tiled elevations and flooring, wc and rainfall mixer shower in cubicle.

Externally the garden is west facing, offering ample space to relax and entertain with family and friends alike, and looks out over open countryside.

Back inside, to the first floor are two double bedrooms both with en suite and both enjoying views over open countryside.

In terms of economic use of energy there is underfloor heating throughout the ground floor and radiators to the first floor all provided by air source heating.

Do give us a call to arrange a viewing and make this yours.  Council tax & EPC to follow, Freehold.

Important Information

  • This is a Freehold property.

Property Ref: cc68ab82-0162-4e6e-89f8-aa85f35f0325

Share:

Similar Properties

Robin Hood Close, Mawdesley, L40 2RG

3 Bedroom Detached House | Offers in excess of £565,000

Spacious, individual new property, one of only five on this exclusive development, with views out over fields and trees....

Evergreen Avenue, Leyland, PR25 3AW

5 Bedroom Detached House | Offers in excess of £550,000

Cuileann House is a spacious, individual property on a corner plot in a quiet cul de sac within easy reach of town centr...

Laurel Gardens, Farington Moss, PR26 6BH

4 Bedroom House | £525,000

Fabulous four bedroom detached property, one of only five on this exclusive development offering in excess of 1700 squar...

Southport Road, Ulnes Walton, PR26 8LN

4 Bedroom Detached House | £575,000

Wonderful, individual property with gorgeous views to the rear, ample parking and beautifully presented throughout. With...

Euxton Hall Gardens, Euxton, PR7 6PB

4 Bedroom Detached House | Offers in excess of £575,000

Individual detached property on a cul de sac in a highly sought after area with over 2,000 sq ft of versatile accommodat...

Lichen Close, Charnock Richard, PR7 5TT

4 Bedroom Detached House | Offers in excess of £585,000

Tucked away at the end of a quiet cul de sac in a highly sought after area in the village, Meadowlands is an individual...

Home Truths Sales and Lettings Agency (Eccleston)

Eccleston, Lancashire, PR7 5TF

01257 451673

How much is your home worth?

Use our short form to request a valuation of your property.

Request a Valuation

Mortgage Calculator

Amount Borrowed: £
Total Amount Repayable: £
Total Monthly Payment: £
©2025 The Guild of Property Professionals. All rights reserved. Terms and Conditions | Privacy Policy | Cookie Policy | Complaints Policy | Members Login
The Guild of Property Professionals Trading Address: 121 Park Lane, London W1K 7AG. GPEA Limited. Registered in England & Wales.  Company No: 02819824.  Registered Office Address: 2 St. Stephen's Court, St. Stephen's Road, Bournemouth, Dorset, England, BH2 6LA.  VAT Registration No: 576 8795 61
Book a Property Valuation Update Cookies Preferences