St. Marys Road, Meare

£525,000
SSTC
This property listing is now SSTC

6 Bedroom Detached House for sale in Meare

5 6 2
  • Individual detached period house in the heart of Meare, offered with five bedrooms and four reception rooms. Plus adjoining, independent one bedroom annex.
  • Spacious sitting room with inglenook fireplace, woodburning stove, and access to the rear staircase and annex.
  • Second sitting room with exposed stone wall and window seat, plus separate dining room overlooking the garden.
  • Kitchen with modern units, integrated oven and hob, tiled flooring, and space for appliances.
  • Five double bedrooms, with the principal room featuring high ceilings and others benefitting from built-in storage.
  • Family bathroom with corner bath, separate shower enclosure, twin wash basins, and WC
  • Self-contained one-bedroom annex with kitchen/dining room, sitting room, bathroom, private garden, and own entrance.
  • Ample driveway parking to the front for multiple vehicles leading up to the garage with rear workshop. Large rear garden enjoying a sunny aspect.

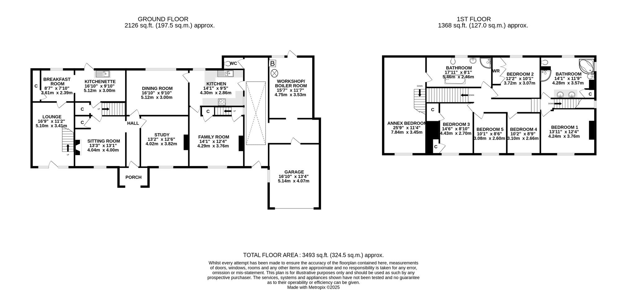
Rose Farm is a charming and individual detached period house set in the heart of Meare. Offering five bedrooms, four reception rooms, and a modern kitchen, the property also includes a one-bedroom self-contained annex. With generous gardens, a garage, workshop, and extensive driveway parking, this home is ideal for blended families, multi-generational living, or those seeking an income opportunity.

Accommodation
The property is entered via an open stone entrance porch and wooden door into a welcoming reception hall, with access to the principal reception rooms. The main sitting room features an inglenook stone fireplace with inset woodburning stove. A door leads to the inner hall and rear staircase to the first floor, while the second sitting room includes exposed stonework and a front window with seat. A dining room with attractive tiled floor leads into the kitchen, fitted with a modern range of units, integrated oven and hob, and space for appliances. Beyond the kitchen, a family room with brick fireplace and under stair cupboard provides an additional reception space, while a side passage connects to the utility, cloakroom, rear store/workshop, and garage.

Upstairs, the first floor landing serves five double bedrooms and the family bathroom. Bedrooms one, three, four, and five all enjoy front-facing aspects, with bedroom one also benefitting from a high ceiling and bedroom three from a built-in wardrobe and storage. Bedroom two overlooks the garden and has fitted wardrobes. The family bathroom includes a corner bath, separate shower enclosure, WC and twin wash basins within a vanity unit.

The annex can be accessed from the main house or via a glazed door from the driveway, providing independent living accommodation. On the ground floor there is a sitting room and kitchen/dining room with garden access. The first floor offers a large open plan bedroom/living space and a large bathroom with bath, shower, WC, and wash basin.

Outside
Outside, Rose Farm is approached over a large driveway with ample parking for multiple vehicles leading to the garage . The rear garden is well proportioned and laid to lawn interspersed with fruit trees, mature shrubs, and a greenhouse. The annex also benefits from its own private garden area, with both spaces enjoying excellent sunlight through the spring and summer months.

Location
Meare is a rural village set on the picturesque Somerset Levels, 4 miles to the west of Glastonbury. The village provides a primary school, parish church, farm shop and two public houses within walking distance. The historic town of Glastonbury offers a range of shopping facilities, St Dunstan's Community School and Millfield Preparatory School in Edgarley. Street is within 6 miles and provides a further choice of shopping facilities, Strode College and Strode Theatre. The M5 (junction 22) is within 12 miles, Bristol International Airport 22 miles and the nearest main line rail link to London Paddington is at Castle Cary, 19 miles.

Directions
On entering Glastonbury from Street/Bridgwater, at the main roundabout (B & Q on the left), take the second exit onto the by-pass. Proceed straight ahead at the first roundabout and at the second roundabout take the first exit signposted to Meare. Continue into the village, whereby the property can be found along on the left hand side, immediately before the turning for Ashcott Road.

Material Information
All available property information can be provided upon request from Holland & Odam. For confirmation of mobile phone and broadband coverage, please visit checker.ofcom.org.uk

Identity Verification
To ensure full compliance with current legal requirements, all buyers are required to verify their identity and risk status in line with anti-money laundering (AML) regulations before we can formally proceed with the sale. This process includes a series of checks covering identity verification, politically exposed person (PEP) screening, and AML risk assessment for each individual named as a purchaser. In addition, for best practice, we are required to obtain proof of funds and where necessary, to carry out checks on the source of funds being used for the purchase. These checks are mandatory and must be completed regardless of whether the purchase is mortgage-funded, cash, or part of a related transaction. A disbursement of £49 per individual (or £75 per director for limited company purchases) is payable to cover all aspects of this compliance process. This fee represents the full cost of conducting the required checks and verifications. You will receive a secure payment link and full instructions directly from our compliance partner, Guild365, who carry out these checks on our behalf.

Important Information

  • This is a Freehold property.

Property Ref: 665667_FMV854856

Share:

Similar Properties

West Lydford, Somerton

3 Bedroom Detached Bungalow | £515,000

Situated on the outskirts of Keinton Mandeville, this spacious detached bungalow is offered with no onward chain. Set on...

Compton Street, Compton Dundon

4 Bedroom Detached House | Offers in excess of £500,000

Nestled in the desirable village of Compton Dundon, this mature detached property offers a wonderful blend of character...

Benedict Street, Glastonbury, Somerset

5 Bedroom Terraced House | £495,000

A superbly presented and extended family home situated on Benedict street, a stones throw from Glastonbury High Street....

Archbishop Close, Baltonsborough, Glastonbury, Somerset

4 Bedroom Detached Bungalow | £585,000

Enjoying a secluded location, tucked away in the far right hand corner of this popular cul-de-sac, This generously propo...

Archbishop Close, Baltonsborough

5 Bedroom Detached House | £585,000

A spacious and versatile five-bedroom home with two en-suites, a bright triple-aspect sitting room, and a stylish kitche...

Pinewood, Somerton

3 Bedroom Detached House | £585,000

A charming and well-established detached home positioned in the heart of Pinewood, just a short walk from Somerton’s ame...

Holland & Odam (Glastonbury)

Glastonbury, Somerset, BA6 9DX

01458 833123

How much is your home worth?

Use our short form to request a valuation of your property.

Request a Valuation

Mortgage Calculator

Amount Borrowed: £
Total Amount Repayable: £
Total Monthly Payment: £
©2026 The Guild of Property Professionals. All rights reserved. Terms and Conditions | Privacy Policy | Cookie Policy | Complaints Policy | Members Login
The Guild of Property Professionals Trading Address: 121 Park Lane, London W1K 7AG. GPEA Limited. Registered in England & Wales.  Company No: 02819824.  Registered Office Address: 2 St. Stephen's Court, St. Stephen's Road, Bournemouth, Dorset, England, BH2 6LA.  VAT Registration No: 576 8795 61
Book a Property Valuation Update Cookies Preferences