The Lanterns

Asking Price
£299,500

Commercial Property for sale in Melbourn Street

4 1

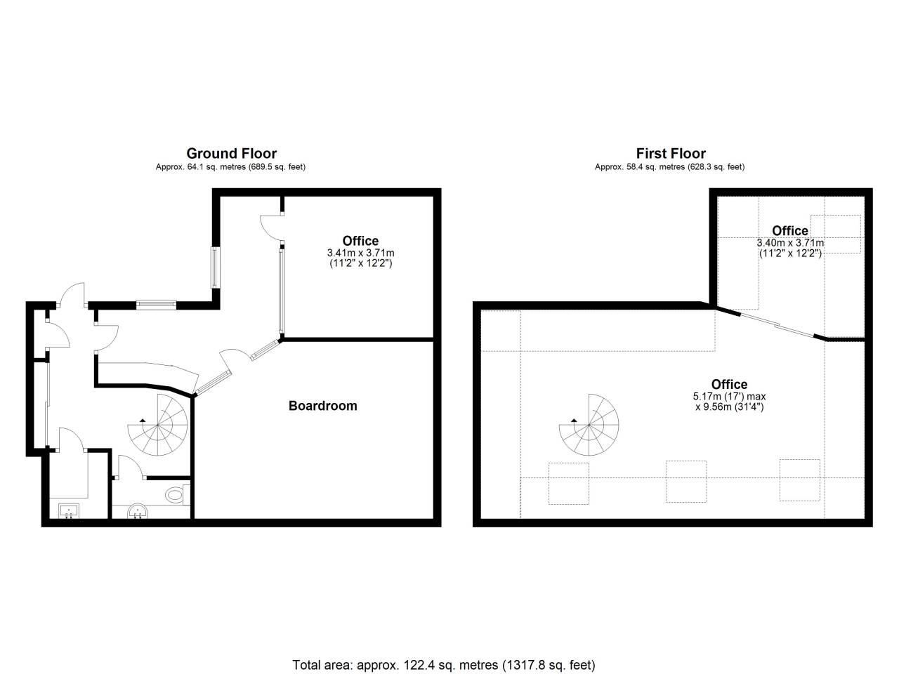
Abode are delighted to offer to market this very well presented Freehold commercial property in the heart of the historic market town of Royston, Hertfordshire. The property has been fitted out to high standards with glass partitioning, air-condtioning and high level finishes throughout. Downstairs we have a private double office, and larger board room, WC, and seperate kitchenette. There are spiral stairs heading to the upstairs office which lead to an open plan office within the vaulted ceiling, The room is light with Velux windows to the rear, a glass partition separates another private office. The property further benefits from two parking spaces, the location is close to the town centre, and there are several nearby car parks with additional parking. The property is also a 8 minute walk to the mainline train station. Viewing available by prior appointment only, please contact Abode to arrange today.

Important Information

  • This is a Freehold property.

Property Ref: 0004-e361-2e96-90f5_1010-69a5-d685-23fd

Share:

Similar Properties

Priory Lane

2 Bedroom Terraced House | Guide Price £290,000

Abode are delighted to offer to market this mid terraced home in the centre of the historic market town of Royston, Hert...

Melbourn Street

2 Bedroom Flat | Asking Price £275,000

Abode are delighted to offer this executive 2 double bedroom apartment for sale in the centre of the historic market tow...

Green Lane

2 Bedroom Apartment | Guide Price £275,000

Abode are delighted to offer to market this penthouse apartment in the desirable village of Ashwell, Hertfordshire. The...

South Road

2 Bedroom House | Guide Price £299,995

Abode are delighted to offer to market this 2 bedroom mid-terraced town house for sale in the historic market town of Ba...

Princess Charlotte Court

2 Bedroom Bungalow | Guide Price £315,000

*Now with Secure Parking Nearby* Abode are delighted to offer to market this new build bungalow in the heart of the hist...

Leete Place

3 Bedroom House | Offers in excess of £317,500

Abode are delighted to offer to market this end of terraced three bedroom house in the historic market town of Royston,...

Abode Town & Country Properties (Royston)

Royston, Herts, SG8 9LG

01763259888

How much is your home worth?

Use our short form to request a valuation of your property.

Request a Valuation

Mortgage Calculator

Amount Borrowed: £
Total Amount Repayable: £
Total Monthly Payment: £
©2025 The Guild of Property Professionals. All rights reserved. Terms and Conditions | Privacy Policy | Cookie Policy | Complaints Policy | Members Login
The Guild of Property Professionals Trading Address: 121 Park Lane, London W1K 7AG. GPEA Limited. Registered in England & Wales.  Company No: 02819824.  Registered Office Address: 2 St. Stephen's Court, St. Stephen's Road, Bournemouth, Dorset, England, BH2 6LA.  VAT Registration No: 576 8795 61
Book a Property Valuation Update Cookies Preferences