Abenhall Road, Mitcheldean

Guide Price
£1,450,000
SSTC
This property listing is now SSTC

6 Bedroom Country House for sale in Mitcheldean

3 6 4
  • Impressive Six Bedroom Country Residence Of Circa 3,900sq.Ft
  • Surrounded By Fields & Set Within Gardens And Grounds Approaching 4 Acres
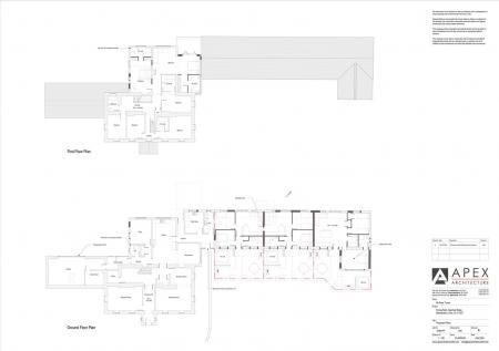
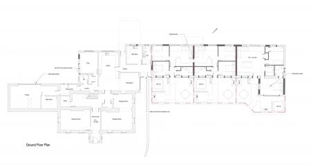
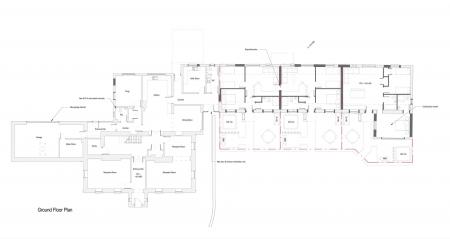
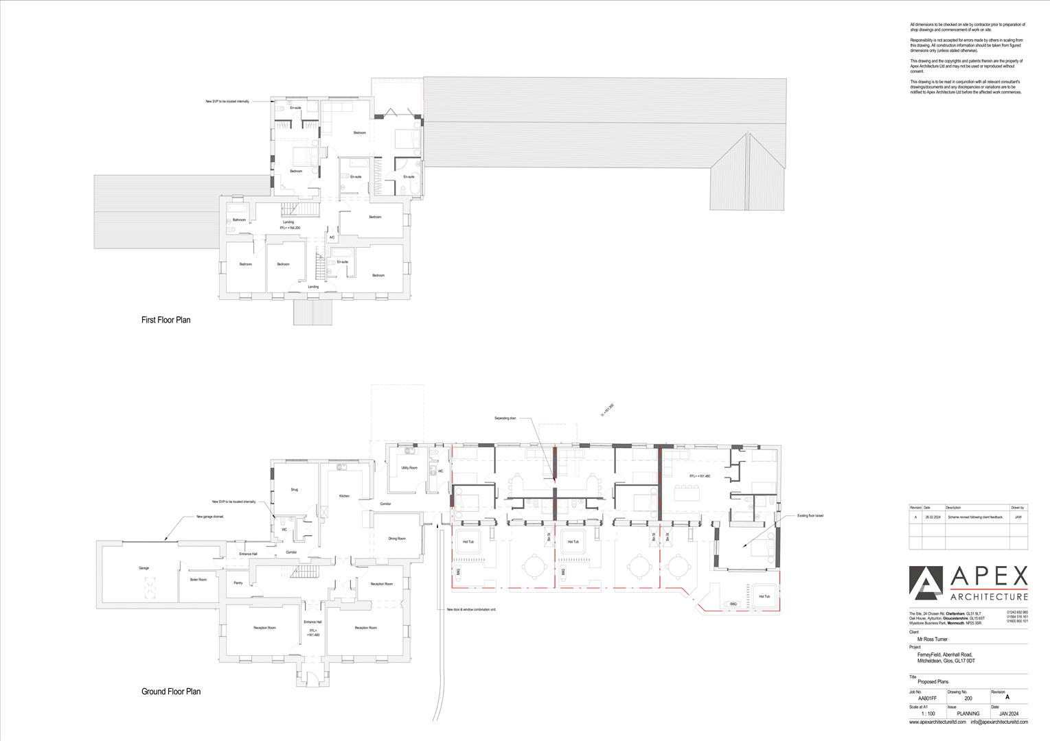
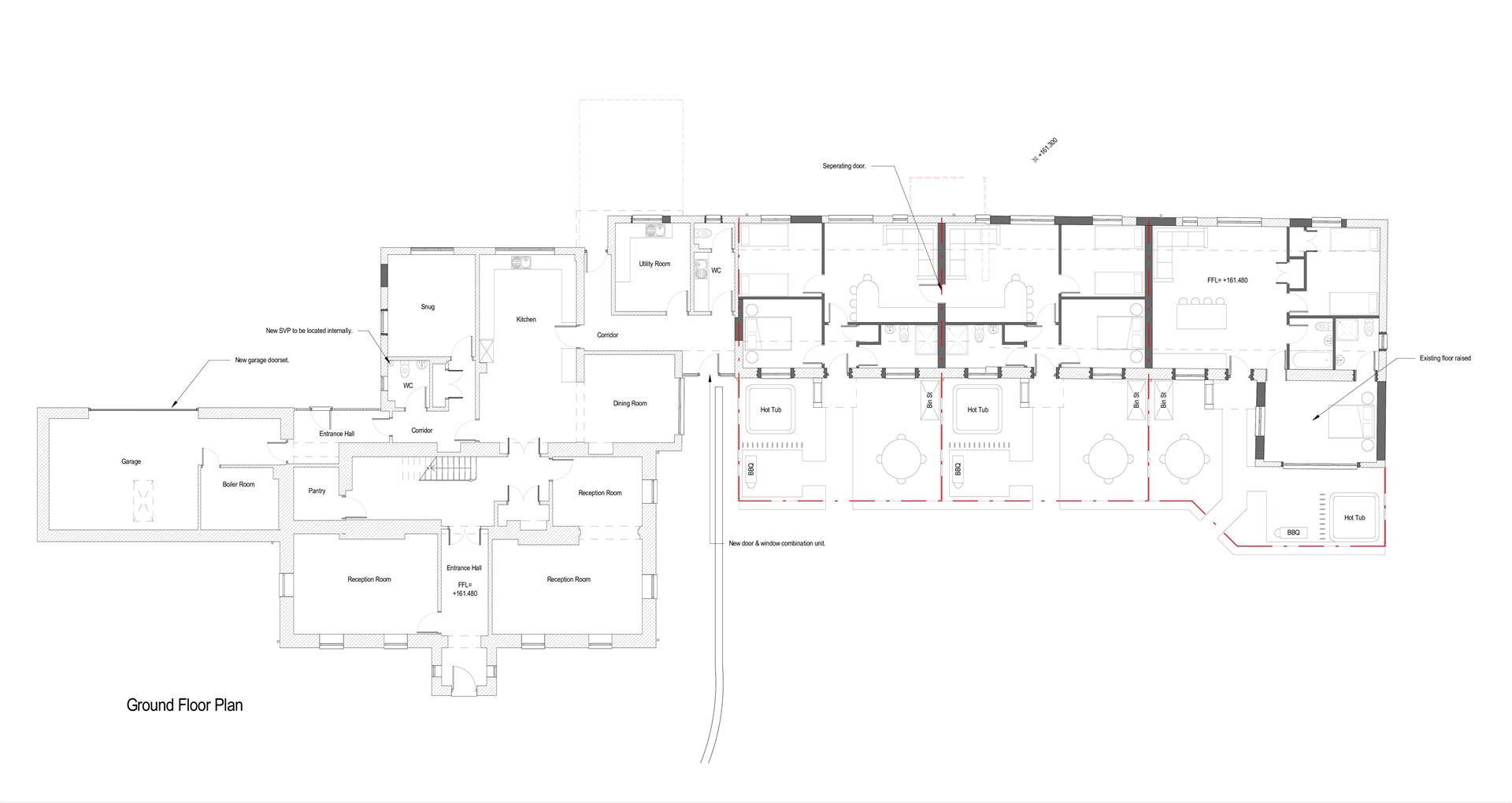
  • Full Planning Permission Passed To Convert The Attached Annexe Into 3 Self-Catering Tourism Units
  • Integral Purpose Built Disabled Suite Ideal For Annexe/Multi Generational Living Accommodation
  • Excellent Position And Level Plot Close To Scenic Country Walks And Local Amenities
  • EPC Rating- E, Council Tax- G, Freehold

An exceptional opportunity to acquire this IMPRESSIVE SIX/SEVEN-BEDROOM RESIDENCE, occupying a PRIME POSITION ON THE EDGE OF MITCHELDEAN and SURROUNDED BY OPEN FIELDS. Offering APPROXIMATELY 3,900 SQ. FT. OF HIGHLY VERSATILE ACCOMMODATION, the property is PROMINENTLY SET WITHIN GARDENS AND GROUNDS APPROACHING 4 ACRES.
It includes a RANGE OF USEFUL OUTBUILDINGS SUCH AS STABLES and benefits from FULL PLANNING PERMISSION (P0637/24/FUL) TO CONVERT THE ATTACHED ANNEXE-formerly a commercial carpentry workshop-into THREE SELF-CATERING TOURISM UNITS, along with the creation of a BIO-DIVERSITY NATURE AREA within part of the garden. With its EXCELLENT LOCATION and LEVEL PLOT, this property is ALSO IDEALLY SUITED TO BUYERS WITH EQUESTRIAN INTERESTS.

A front aspect oak door with double glazed leaded panels leads into an impressive porch with side aspect windows, grand archway opening leads into;

Main Entrance Hall - A bright and welcoming space with a radiator, oak flooring, door leads to the office/living room, double doors lead through to the central hallway.

Office/Living Room - 5.84m x 4.09m (19'02 x 13'05) - A fantastic secondary reception to the main living room that also suits well as an office, radiators, front and side aspect windows.

Central Hallway - Oak flooring, useful cloak cupboard, lift to the first floor and oak staircase also leading to the first floor. Doors lead into the kitchen/diner, living room and pantry.

Pantry - 2.16m x 1.88m (7'01 x 6'02) - With lighting and fitted shelving.

Living Room - 7.16m x 6.10m (23'06 x 20'00) - A bright and spacious L-shaped room to relax and entertain, radiator, front and side aspect windows, period fireplace with potential to reinstate the open fire.

Kitchen/Dining Room - 7.90m x 7.62m (25'11 x 25'00) - The central hub of the home with bespoke handmade wall and base level units with oak worktops, fitted range cooker with two ovens and a warming draw, grill and seven ring hob with extractor over. Inset 1.5 bowl sink unit with waste disposal, space for an American style fridge/freezer, space and plumbing for a dishwasher, gas fired Rayburn (not working) with travertine tile splash-backs, ceramic tile floor. Rear aspect window, archway through to the dining area with continuation of the ceramic tile floor, radiator, side aspect sliding patio door leads to the garden. From the kitchen a door leads to the rear hall and internal hall with w.c.

Rear Hall - Provides rear access via a upvc double glazed door to the garden, doors lead off to the utility room and cloakroom. Further door to the attached workshop and to the front garden.

Utility Room - Comprising a range of wall and base level units, inset stainless steel sink unit, space and plumbing for a washing machine, space for a fridge/freezer, ceramic tiled floor, rear aspect window.

Cloakroom - Low level w.c, washbasin, rear aspect window.

Inner Rear Hall - Windows to side and rear aspects, storage cupboard, door into w.c with low level w.c, washbasin and side aspect window. A door leads into a rear lobby with access to the attached garage and rear garden.

First Floor Landing - Oak floorboards, lift access to the ground floor, linen cupboard, front aspect window, doors lead off to the bedrooms, bathroom and separate w.c. Stairs leads up to the attic space. Bedroom Four, Bedroom One/Living Room and the Wet Room could form an internal annexe.

Bedroom Two - 6.40m x 3.81m (21'00 x 12'06) - Windows to front and side aspects, radiator, door leads into;

En-Suite Bathroom - Comprising a panelled bath with shower over, low level w.c, pedestal washbasin, tiled walls, oak flooring.

Bedroom Three - 5.05m x 3.53m (16'07 x 11'07) - Side aspect window, radiator, door into;

En-Suite Bathroom - Comprising a bath with shower over, low level w.c, pedestal washbasin, tiled walls.

Potential Annexe/Bedroom Four - 4.55m x 3.96m (14'11 x 13'00) - Radiator, rear aspect window with view over grounds and fields beyond, door leads into the former disabled suite and large wet room that would be ideal as internal annexe accommodation.

Bedroom/Living Room - 9.07m x 3.71m (29'09 x 12'02) - A large adaptable space benefitting from triple aspect windows with superb views over surrounding countryside. French doors lead out to a balcony with glass balustrade and timbered staircase that leads to the rear of the property.

Wet Room - Could serve the annexe, low level w.c, pedestal washbasin, shower cubicle, rear aspect window.

Bedroom Five - 4.06m x 3.15m (13'04 x 10'04) - Radiator, front and side aspect windows.

Bedroom Six - 4.14m x 3.02m (13'07 x 9'11) - Radiator, front aspect window.

Bedroom Seven - 3.58m x 2.54m (11'09 x 8'04) - Radiator, side aspect window, door into;

En-Suite Shower Room - Low level w.c, washbasin, shower cubicle.

Bathroom - Panelled Jacuzzi bath with tiled surround, pedestal washbasin, low level w.c, tiled walls.

Attic Space - A useful large storage area with power and lighting.

Outside - The property is approached through a pair of newly installed electric gates, opening onto a spacious gravelled driveway. Mature, lawned gardens wrap around the front and right-hand side of the home, offering a peaceful setting and giving access to a charming Garden Room via French doors. This room measures 15'00" x 11'05" and features oak flooring, power, and lighting-ideal for relaxing or entertaining.

To the rear, there is additional parking for multiple vehicles and access to the attached garage, which measures 30'11" x 14'10" and is equipped with power and lighting. The garage also houses two LPG gas-fired boilers.

The extensive grounds are primarily situated to the rear of the property and are largely level, making them perfectly suited for keeping horses or other animals. Facilities include a stable block with an integrated tack/storage room and a substantial shed/garage suitable for housing large machinery.

Directions - What3Words- caressed.coil.salary- From our Mitcheldean office, proceed to the mini-roundabout on the A4136 and take the first exit signposted Gloucester. Take the next immediate right into Abenhall Road and follow the lane past Dene Magna Secondary School where the property can be found on the left after a few hundred yards.

Services - Mains water, electricity. Septic tank. LPG

Mobile Phone Coverage / Broadband Availability - It is down to each individual purchaser to make their own enquiries. However, we have provided a useful link via Rightmove and Zoopla to assist you with the latest information. In Rightmove, this information can be found under the brochures section, see "Property and Area Information" link. In Zoopla, this information can be found via the Additional Links section, see "Property and Area Information" link.

Agents Note - Full planning permission passed to convert the attached annexe (formerly a commercial carpentry workshop) into 3 self-catering tourism units and a section of the gardens into a bio-diversity nature area. (P0637/24/FUL)

Water Rates - Severn Trent Water Authority.

Local Authority - Council Tax Band: G
Forest of Dean District Council, Council Offices, High Street, Coleford, Glos. GL16 8HG.

Money Laundering Regulations - To comply with Money Laundering Regulations, prospective purchasers will be asked to produce identification documentation at the time of making an offer. We ask for your cooperation in order that there is no delay in agreeing the sale, should your offer be acceptable to the seller(s)

Tenure - Freehold

Viewing - Strictly through the Owners Selling Agent, Steve Gooch, who will be delighted to escort interested applicants to view if required. Office Opening Hours 8.30am - 6.00pm Monday to Friday, 9.00am - 5.30pm Saturday.

Property Ref: 33938065

Share:

Similar Properties

Lydbrook Heights, Wye Valley View, Upper Lydbrook

5 Bedroom Detached House | £675,000

PART EXCHANGE YOUR HOUSE - be in for Summer. STAMP DUTY PAID (sole residence). This exclusive SHOW HOME at over 2200 squ...

Apple Tree Cottage With Annexe, The Pludds, Ruardean

5 Bedroom Semi-Detached House | Guide Price £625,000

An EXCEPTIONAL OPPORTUNITY to acquire a SPACIOUS and BEAUTIFULLY PRESENTED FOUR-BEDROOM, TWO-BATHROOM SEMI-DETACHED CHAR...

Morse Road, Drybrook

4 Bedroom Detached House | £600,000

Steve Gooch Estate Agents are delighted to offer for sale this FOUR/FIVE BEDROOM DETACHED FARM HOUSE DATING BACK TO CIRC...

Steve Gooch Estate Agents (Mitcheldean)

Mitcheldean, Gloucestershire, GL17 0BP

01594 542535

How much is your home worth?

Use our short form to request a valuation of your property.

Request a Valuation

Mortgage Calculator

Amount Borrowed: £
Total Amount Repayable: £
Total Monthly Payment: £
©2026 The Guild of Property Professionals. All rights reserved. Terms and Conditions | Privacy Policy | Cookie Policy | Complaints Policy | Members Login
The Guild of Property Professionals Trading Address: 121 Park Lane, London W1K 7AG. GPEA Limited. Registered in England & Wales.  Company No: 02819824.  Registered Office Address: 2 St. Stephen's Court, St. Stephen's Road, Bournemouth, Dorset, England, BH2 6LA.  VAT Registration No: 576 8795 61
Book a Property Valuation Update Cookies Preferences