Eastern Road, Willaston, CW5

£325,000
SSTC
This property listing is now SSTC

3 Bedroom Semi-Detached House for sale in Nantwich

2 3 2
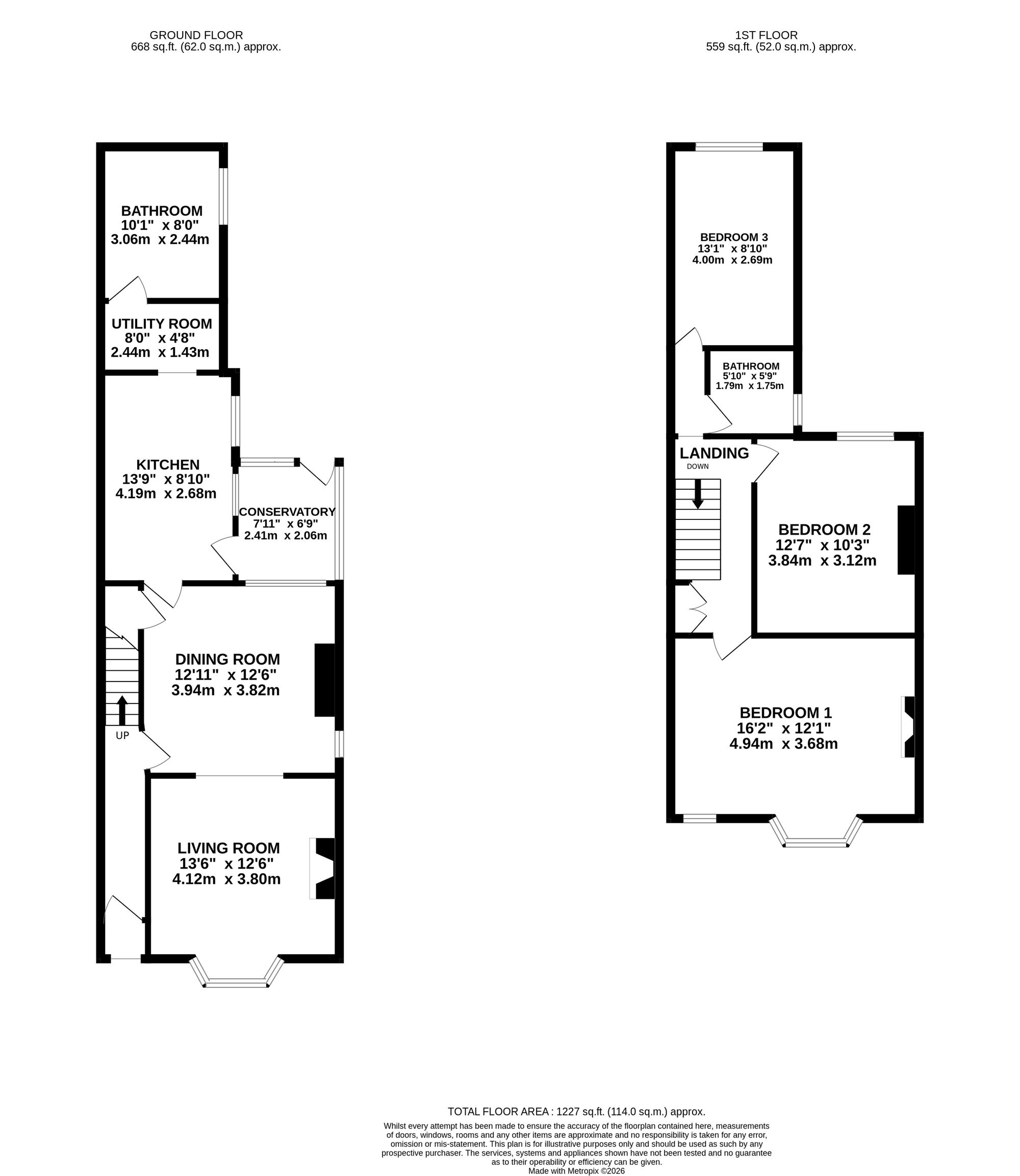
  • Bright living room with large bay window and open archway leading to the dining area.
  • Modern kitchen with adjoining utility room and ground floor bathroom with walk-in shower.
  • Three double bedrooms, including a spacious principal bedroom with dual-aspect windows.
  • Private rear garden with patio seating area, lawn, and garden shed.
  • Driveway providing off-road parking for two cars.
  • Classic victorian features such as tiling and high ceilings.

This attractive three-bedroom semi-detached home in Willaston offers bright, spacious accommodation and a practical layout ideal for modern living.

The welcoming living room is a light-filled space, enhanced by a large bay window that floods the room with natural light. An archway leads through to the dining area, creating a seamless flow between the two rooms and giving the ground floor an open, sociable feel. The dining room comfortably accommodates a large dining table, making it perfect for family meals or entertaining guests.

The kitchen features a sleek, modern design and provides space for a fridge/freezer, oven and dishwasher. Adjacent to the kitchen is a useful utility room with room for both a washing machine and tumble dryer, helping to keep household tasks neatly separate from the main living areas. A convenient downstairs bathroom completes the ground floor and includes a walk-in shower. There is also a small conservatory which serves as the entrance to the garden, providing a pleasant transition between indoor and outdoor spaces.

Upstairs, bedroom one is a generous double room with dual-aspect windows that fill the space with natural light while still leaving plenty of room for additional furniture. Bedroom two is another well-proportioned double overlooking the rear garden. Bedroom three is also a double and slightly elongated in shape, currently used as a home office, making it a versatile space that could suit a variety of needs. The main bathroom on this floor includes a bath with an overhead shower.

Outside, the rear garden offers a pleasant outdoor setting with a patio area ideal for relaxing in the sun or outdoor dining, as well as a lawn and a garden shed for additional storage. At the front of the property, a driveway provides off-road parking for two cars, offering both convenience and peace of mind.

Location

The quaint Cheshire village of Willaston offers a range of handy and convenient amenities while the larger market town of Nantwich is just a short drive away and boasts a plethora of independent businesses including cafes, restaurants, pubs, bars and boutiques, as well as larger supermarkets and highly accredited primary and secondary schools. Those needing to commute will have little concern thanks to the conveniently accessible A500 and M6 road links while Crewe railway station offers direct links to larger cities all across the country.

Important Information

  • This is a Freehold property.
  • This Council Tax band for this property is: D
  • EPC Rating is D

Property Ref: af612273-e2f7-47e8-87d5-ad5a425b4390

Share:

Similar Properties

Swanley Lane, Burland, CW5

2 Bedroom Semi-Detached House | Offers in excess of £325,000

Exceptional two-bedroom semi-detached cottage with modern open-plan living, large garden, eco-friendly features, off-roa...

Windmill Drive, Audlem, CW3

4 Bedroom Detached House | £325,000

Generous accommodation, solar panels, double glazing, oil-fired heating. Lounge, dining room, conservatory, spacious kit...

Imperial Court, Nantwich, CW5

4 Bedroom End of Terrace House | £325,000

Situated in the charming market town of Nantwich, this beautifully presented four-bedroom end-of-terrace property offers...

Well Field Way, Hankelow, CW3

3 Bedroom Semi-Detached House | Guide Price £329,950

Superbly finished 3-bed semi in Hankelow with open-plan living, en-suite, garden, summer house, parking, EV charging, an...

Williams Drive, Shavington, CW2

4 Bedroom Detached House | Offers in excess of £330,000

Well presented four bedroom detached home constructed by Wain Homes in Shavington, Cheshire. Contemporary fixtures, spac...

Judson Close, Nantwich, CW5

3 Bedroom Semi-Detached House | Offers in excess of £330,000

This beautifully presented three-bedroom home offers sleek, modern interiors and thoughtfully designed living spaces, cr...

James Du Pavey Estate Agents (Nantwich)

52 Pillory St, Nantwich, Cheshire, CW5 5BG

01270 445678

How much is your home worth?

Use our short form to request a valuation of your property.

Request a Valuation

Mortgage Calculator

Amount Borrowed: £
Total Amount Repayable: £
Total Monthly Payment: £
©2026 The Guild of Property Professionals. All rights reserved. Terms and Conditions | Privacy Policy | Cookie Policy | Complaints Policy | Members Login
The Guild of Property Professionals Trading Address: 121 Park Lane, London W1K 7AG. GPEA Limited. Registered in England & Wales.  Company No: 02819824.  Registered Office Address: 2 St. Stephen's Court, St. Stephen's Road, Bournemouth, Dorset, England, BH2 6LA.  VAT Registration No: 576 8795 61
Book a Property Valuation Update Cookies Preferences