Imperial Court, Nantwich, CW5

£325,000

4 Bedroom End of Terrace House for sale in Nantwich

1 4 2
  • Four-bedroom end-of-terrace home arranged over three spacious floors.
  • Modern kitchen with integrated appliances and French doors to dining conservatory.
  • Two bathrooms plus ground floor WC for added convenience.
  • Generous living room and built-in wardrobes to multiple bedrooms.
  • Private, low-maintenance garden and driveway parking for two vehicles.

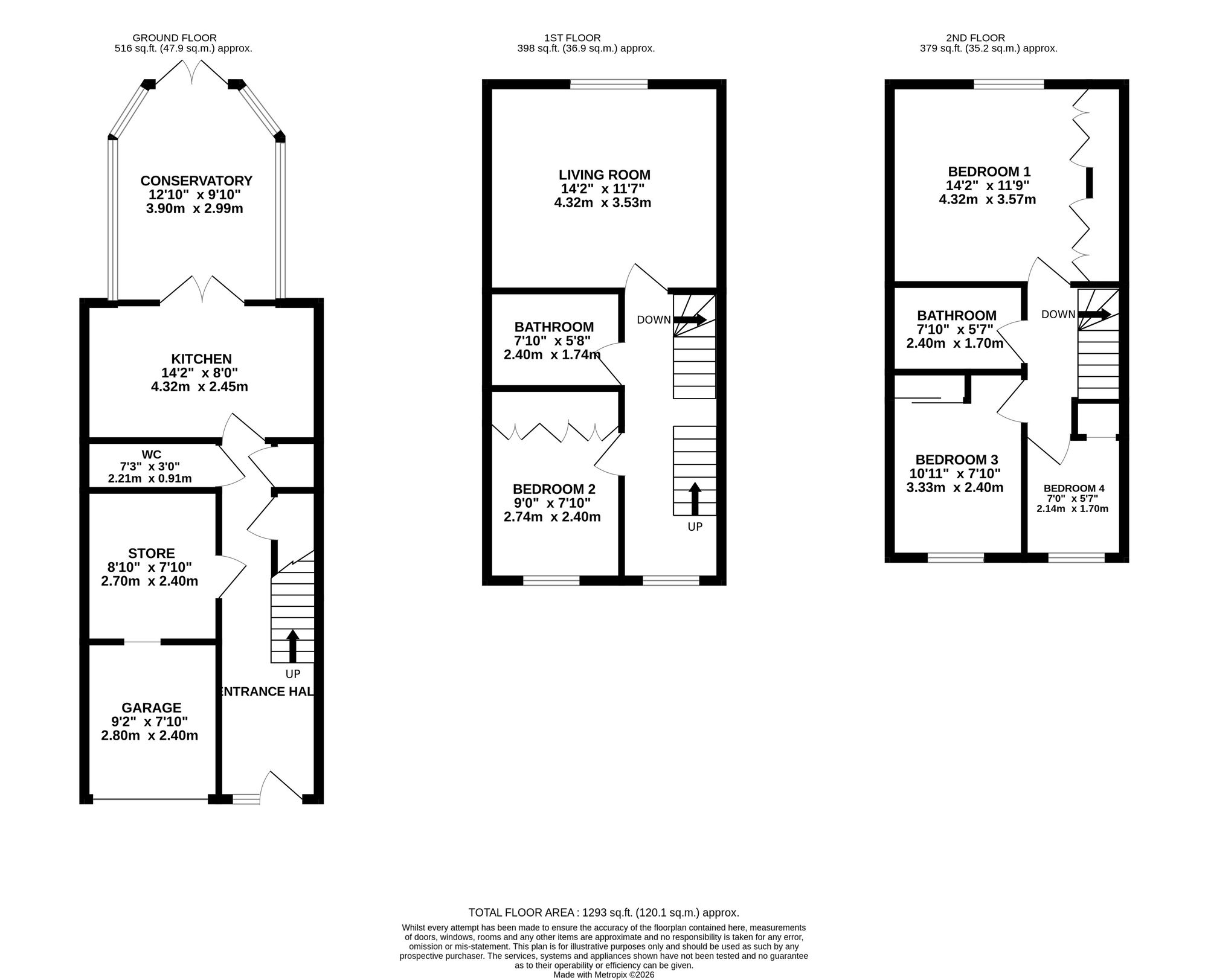
Situated in the charming market town of Nantwich, this beautifully presented four-bedroom townhouse offers spacious and versatile accommodation arranged over three floors, ideal for modern family living.

The ground floor welcomes you with a well-appointed kitchen featuring a range of integrated appliances including a fridge, freezer, dishwasher, oven, and four-ring gas hob. French doors lead seamlessly into the conservatory, currently utilised as a bright and airy dining room, creating a wonderful space for entertaining. A second set of French doors opens out onto the garden, allowing natural light to flood the space and providing an easy indoor-outdoor flow.

Practicality has been carefully considered, with a convenient downstairs WC, a handy under-stairs storage cupboard, and an additional storage cupboard complete with plumbing for both a washing machine and dryer, neatly tucked away to maintain a clean, uncluttered finish. The garage has been thoughtfully divided into two sections and is currently used for storage, offering excellent additional space.

On the first floor, the generously sized living room provides plenty of space to relax, socialise, and enjoy cosy evenings in. Bedroom two is also located on this floor and comfortably accommodates a double bed, complemented by built-in wardrobe space. A family bathroom serves this level and features a bath with overhead shower.

The second floor hosts three further bedrooms. Bedroom one is a large double, boasting built-in wardrobes spanning an entire wall while still offering ample room for additional furnishings. Bedroom three mirrors the proportions of bedroom two, again benefiting from built-in wardrobes and space for a double bed. Bedroom four is a smaller room currently arranged as a home office, but equally suitable as a guest room or hobby space. A second bathroom, identical in layout to the first-floor bathroom and complete with a bath and overhead shower, completes the upper level.

Externally, the property enjoys a private, low-maintenance garden — perfect for relaxing in peaceful surroundings without the burden of extensive upkeep and a garden shed for any gardening wares or to be used for extra storage. There is also a storage shed on the right hand side of the property perfect for storing away tools, bikes, etc. To the front, a driveway provides off-road parking for two vehicles, ensuring convenient and secure parking as well as additional on street parking for guests.

Location

Nantwich is a historic market town located in the county of Cheshire, England. It lies on the banks of the River Weaver and is approximately 5 miles south-west of the larger town of Crewe. Nantwich has a rich history that dates back to Roman times, and it is known for its well-preserved medieval architecture and charming streets.

One of the most prominent features of Nantwich is its black and white timber-framed buildings, which give the town a distinctive character. The town centre is filled with historic structures, including the Nantwich Town Walls, St. Mary's Church, and the Queen's Aid House. The Nantwich Museum, located in a restored Georgian townhouse, offers visitors an opportunity to explore the town's history and heritage.

Nantwich is also famous for its annual food and drink festival, which takes place in September and attracts thousands of visitors. The festival showcases a variety of local and regional produce, including Cheshire cheese, pies, and real ale. Additionally, the town holds a traditional market three times a week, where locals and tourists can browse a range of goods, from fresh produce to antiques.

The River Weaver, which runs through Nantwich, provides opportunities for leisurely walks along the waterfront and offers a picturesque setting for boat trips. The town is surrounded by beautiful Cheshire countryside, with plenty of scenic trails and paths for outdoor enthusiasts to explore.

Nantwich has a thriving community and offers a range of amenities, including shops, restaurants, cafes, and pubs. It also has several primary and secondary schools, making it an attractive place to live for families.

Nantwich is conveniently placed for commuter travel, with excellent road links including access to the M6 motorway network via the A500. Rail travel is offered via Nantwich train station which has direct services to Manchester and Shrewsbury, and Crewe Railway Station which is within 8 miles and provides direct services to a host of major cities including London, Manchester, Liverpool, Birmingham, and Glasgow.

In summary, Nantwich is a charming market town in Cheshire, England, known for its rich history, medieval architecture, annual food festival, and picturesque surroundings. It's a place where visitors can immerse themselves in the past while enjoying the amenities of a vibrant community.

Important Information

  • This is a Freehold property.
  • This Council Tax band for this property is: D

Property Ref: 0e31639b-d777-4b95-acce-3da2c4c741f0

Share:

Similar Properties

Swanley Lane, Burland, CW5

2 Bedroom Semi-Detached House | Offers in excess of £325,000

Exceptional two-bedroom semi-detached cottage with modern open-plan living, large garden, eco-friendly features, off-roa...

Windmill Drive, Audlem, CW3

4 Bedroom Detached House | £325,000

Generous accommodation, solar panels, double glazing, oil-fired heating. Lounge, dining room, conservatory, spacious kit...

Eastern Road, Willaston, CW5

3 Bedroom Semi-Detached House | £325,000

This attractive three-bedroom semi-detached home in Willaston offers bright, spacious accommodation and a practical layo...

Well Field Way, Hankelow, CW3

3 Bedroom Semi-Detached House | Guide Price £329,950

Superbly finished 3-bed semi in Hankelow with open-plan living, en-suite, garden, summer house, parking, EV charging, an...

Williams Drive, Shavington, CW2

4 Bedroom Detached House | Offers in excess of £330,000

Well presented four bedroom detached home constructed by Wain Homes in Shavington, Cheshire. Contemporary fixtures, spac...

Judson Close, Nantwich, CW5

3 Bedroom Semi-Detached House | Offers in excess of £330,000

This beautifully presented three-bedroom home offers sleek, modern interiors and thoughtfully designed living spaces, cr...

James Du Pavey Estate Agents (Nantwich)

52 Pillory St, Nantwich, Cheshire, CW5 5BG

01270 445678

How much is your home worth?

Use our short form to request a valuation of your property.

Request a Valuation

Mortgage Calculator

Amount Borrowed: £
Total Amount Repayable: £
Total Monthly Payment: £
©2026 The Guild of Property Professionals. All rights reserved. Terms and Conditions | Privacy Policy | Cookie Policy | Complaints Policy | Members Login
The Guild of Property Professionals Trading Address: 121 Park Lane, London W1K 7AG. GPEA Limited. Registered in England & Wales.  Company No: 02819824.  Registered Office Address: 2 St. Stephen's Court, St. Stephen's Road, Bournemouth, Dorset, England, BH2 6LA.  VAT Registration No: 576 8795 61
Book a Property Valuation Update Cookies Preferences