Birchin Lane, Nantwich, CW5

Offers in excess of
£375,000

4 Bedroom Semi-Detached House for sale in Nantwich

2 4 2
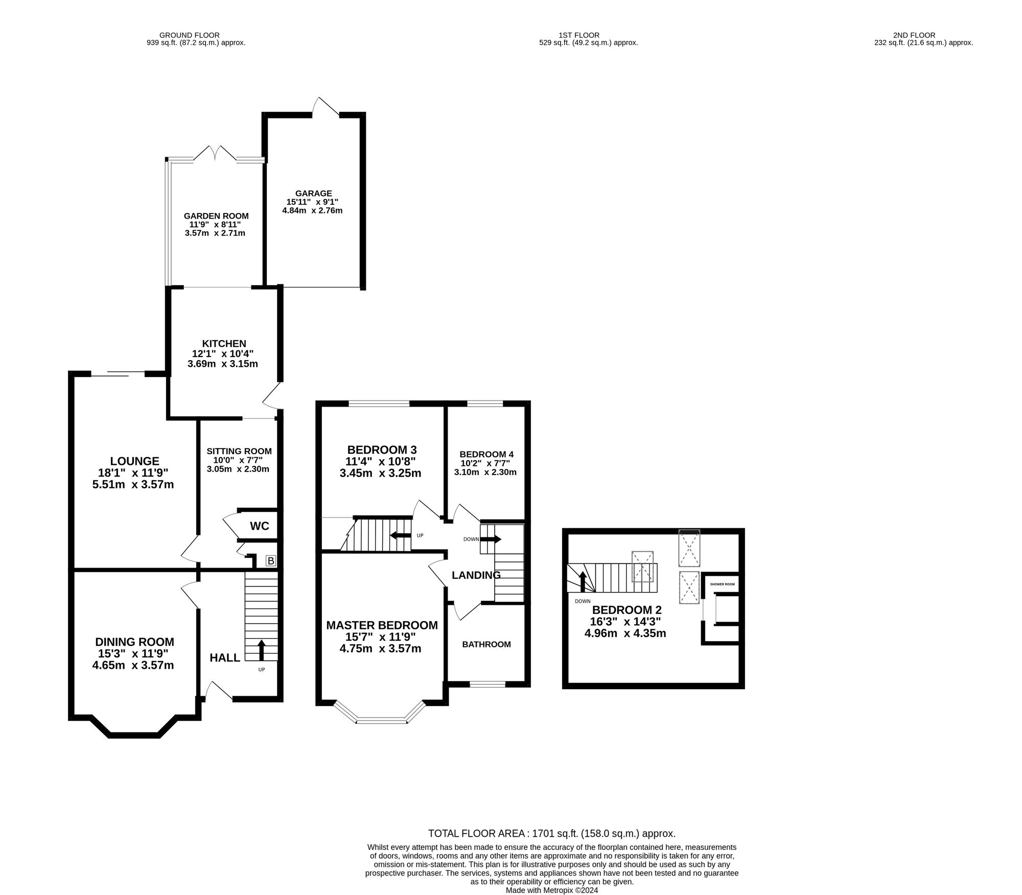
  • Spacious 1930's semi detached family home within walking distance of Nantwich town centre
  • Two large reception rooms, sitting room and kitchen / garden room complete with partial granite work surfaces. Plus handy downstairs WC
  • Three generous bedrooms, family bathroom as well as loft conversion complete with en-suite
  • A number of outstanding original features including stained glass windows, picture rails and doors
  • South west facing garden, perfect for enjoying family gatherings or al fresco dining
  • Driveway and garage with ample parking space for multiple vehicles

Welcome to this charming 1930's semi-detached family home nestled within strolling distance of the vibrant Nantwich town centre. Offering a blend of original features and modern conveniences, this spacious abode is a true gem waiting for its new owners.

As you step inside, you are greeted by the warmth of the home's inviting ambience. A welcoming hallway with additional understairs storage leads the way into the rest of the family home. The ground floor boasts two generously sized reception rooms, offering lots of versatility, perfect for entertaining or enjoying peaceful moments with loved ones. The sitting room exudes a cosy feel, ideal for relaxing evenings or chilling with your favourite book. Meanwhile, the kitchen/garden room is a hub of activity with a 5 ring range style cooker, belfast sink and partial granite work surfaces. A convenient downstairs WC adds to the practicality of the space, ensuring comfort for residents and guests alike.

Moving upstairs, you'll find three well-appointed bedrooms that offer ample space for rest and relaxation, all served alongside a family bathroom. Additionally, the loft conversion with an en-suite is a versatile space that can serve as a private retreat or a guest room for visitors.

This property is a treasure trove of original features that add character and charm to the home. From the stained glass windows that bathe the hallway and landing in colourful light to the picture rails and doors that harken back to a bygone era, each element tells a story of the home's rich history.

Step outside into the south-west facing garden, a delightful sanctuary where you can host family gatherings or enjoy al fresco dining on sunny days. The garden is a private oasis, perfect for creating unforgettable memories with loved ones.

Parking will never be a concern with the driveway and garage that offer ample space for multiple vehicles. Whether you have guests over or simply need extra storage space, this feature adds to the convenience of daily living.

In conclusion, this house is more than just a property; it's a place where memories are made and cherished for years to come. Embrace the unique charm of this home and make it your own retreat in the heart of Nantwich. Don't miss the opportunity to call this house your home sweet home.

Location

Nantwich is a historic market town located in the county of Cheshire, England. It lies on the banks of the River Weaver and is approximately 5 miles south-west of the larger town of Crewe. Nantwich has a rich history that dates back to Roman times, and it is known for its well-preserved medieval architecture and charming streets.

One of the most prominent features of Nantwich is its black and white timber-framed buildings, which give the town a distinctive character. The town centre is filled with historic structures, including the Nantwich Town Walls, St. Mary's Church, and the Queen's Aid House. The Nantwich Museum, located in a restored Georgian townhouse, offers visitors an opportunity to explore the town's history and heritage.

Nantwich is also famous for its annual food and drink festival, which takes place in September and attracts thousands of visitors. The festival showcases a variety of local and regional produce, including Cheshire cheese, pies, and real ale. Additionally, the town holds a traditional market on Tuesdays and Saturdays, where locals and tourists can browse a range of goods, from fresh produce to antiques.

The River Weaver, which runs through Nantwich, provides opportunities for leisurely walks along the waterfront and offers a picturesque setting for boat trips. The town is surrounded by beautiful Cheshire countryside, with plenty of scenic trails and paths for outdoor enthusiasts to explore.

Nantwich has a thriving community and offers a range of amenities, including shops, restaurants, cafes, and pubs. It also has several primary and secondary schools, making it an attractive place to live for families.

Nantwich is conveniently placed for commuter travel, with excellent road links including access to the M6 motorway network via the A500. Rail travel is offered via Nantwich train station which has direct services to Manchester and Shrewsbury, and Crewe Railway Station which is within 8 miles and provides direct services to a host of major cities including London, Manchester, Liverpool, Birmingham, and Glasgow.

In summary, Nantwich is a charming market town in Cheshire, England, known for its rich history, medieval architecture, annual food festival, and picturesque surroundings. It's a place where visitors can immerse themselves in the past while enjoying the amenities of a vibrant community.

Energy Efficiency Current: 47.0
Energy Efficiency Potential: 74.0

Important Information

  • This is a Freehold property.
  • This Council Tax band for this property is: D

Property Ref: c07dbbb8-c813-44d1-9d7d-aea7a44c9b9c

Share:

Similar Properties

Sheppenhall Grove, Aston, CW5

3 Bedroom Detached Bungalow | Guide Price £375,000

GUIDE PRICE £375,000 - £400,000. This spacious and well-presented three-bedroom detached bungalow offers the perfect ble...

William Stockton Close, Shavington, CW2

4 Bedroom Detached House | Offers Over £375,000

Exceptional detached home in prime location. Versatile layout, modern kitchen, 4 spacious bedrooms. Beautifully maintain...

Stock Lane, Shavington, CW2

3 Bedroom Detached Bungalow | Offers in region of £375,000

Charming 3-bed bungalow on Stock Lane. Bright lounge, separate dining room, fitted kitchen, utility room, modern family...

Main Road, Betley, CW3

3 Bedroom Cottage | Guide Price £385,000

GUIDE PRICE £385,000 - £425,000. A charming Grade II listed period detached house situated on approximately 1/3 of an ac...

Huntersfield, Shavington, CW2

4 Bedroom Detached House | £385,000

This beautifully presented 4/5 bedroom detached home in Shavington offers generous living space and exceptional versatil...

Wellington Road, Nantwich, CW5

3 Bedroom Terraced House | Guide Price £385,000

Spacious period home near Nantwich centre with original features, modern comforts, 3 bedrooms, garden room, parking, and...

James Du Pavey Estate Agents (Nantwich)

52 Pillory St, Nantwich, Cheshire, CW5 5BG

01270 445678

How much is your home worth?

Use our short form to request a valuation of your property.

Request a Valuation

Mortgage Calculator

Amount Borrowed: £
Total Amount Repayable: £
Total Monthly Payment: £
©2026 The Guild of Property Professionals. All rights reserved. Terms and Conditions | Privacy Policy | Cookie Policy | Complaints Policy | Members Login
The Guild of Property Professionals Trading Address: 121 Park Lane, London W1K 7AG. GPEA Limited. Registered in England & Wales.  Company No: 02819824.  Registered Office Address: 2 St. Stephen's Court, St. Stephen's Road, Bournemouth, Dorset, England, BH2 6LA.  VAT Registration No: 576 8795 61
Book a Property Valuation Update Cookies Preferences