New Lane, Girton, Newark

Guide Price
£365,000
SSTC
This property listing is now SSTC

3 Bedroom Barn Conversion for sale in Newark

2 3 3
  • Detached Three Bedroom Conversion
  • Enclosed Garden & Grass Paddock
  • Building Works Complete - Immediate Possession
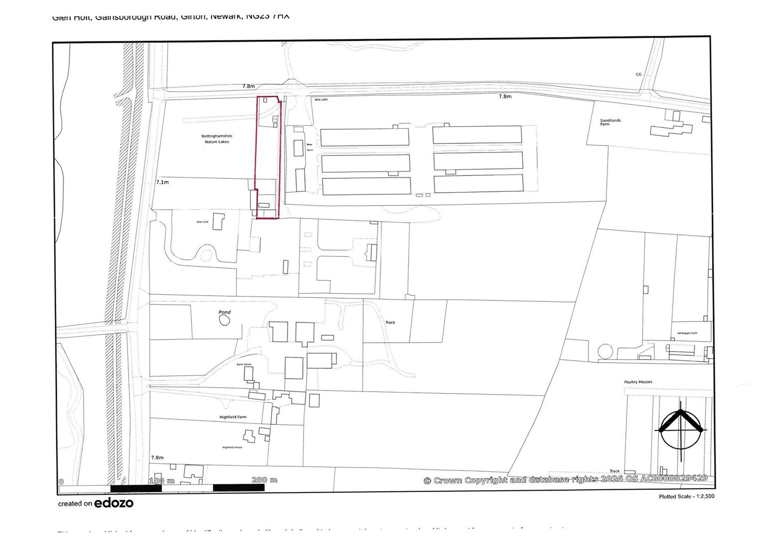
  • In All 0.9 Acre or thereabouts
  • Electric Gated Entrance
  • Long Private Driveway
  • Beautifully Appointed Throughout
  • Double Car Port
  • Newark 9 Miles, Lincoln 9 Miles

The Barn comprises a detached three bedroomed conversion recently completed and offered with immediate possession available. The property has an enclosed garden, a paddock, electric gated entrance and a long private driveway. Whilst technically a conversion of a former farm building the property is rebuilt with modern standards of insulation and new build standards.

The accommodation provides an impressive 25' reception hall with sitting area, separate sitting room, 19' kitchen with appliances, three double sized bedrooms, two en-suite and a family bathroom. Externally electric gates are set back in an area shared by the adjoining property. The approach then separates to provide a long private driveway to the property. In front of the house is an extensive gravelled parking and turning area and turfed circular feature. The rear garden, enclosed by 2m high fencing and laurel hedging, is turfed and south facing. There are stone paths and a patio.

The property is conveniently situated approximately 3 miles north of Collingham village and here there are a range of facilities including a primary school, a Co-operative store, doctors surgery and a railway station with services to Nottingham and Lincoln. Newark on Trent, a market town, lies on the main East Coast railway line with services to London King's Cross and journey times of just over 75 minutes. Secondary schooling is usually available at Tuxford or Newark. Travelling from Newark on the A1133 New Lane is a right turn a mile or so beyond the sign posted turnings to Girton.

The property is constructed with block walls and rendered elevations under a tiled roof. Windows are double glazed. The property has oil fired central heating with panelled radiators. The following accommodation is provided:

Entrance Hall - 7.72m x 1.73m (25'4 x 5'8) - (plus sitting area 13'8 x 8'10)

Fitted electric fire, provision for a flat screen television, built in broom cupboard and centre opening doors to the lounge, radiator.

Lounge - 6.02m x 3.40m (19'9 x 11'2) - Electric fire, provision for a flat screen television, two windows in the front elevation, radiator.

Kitchen - 5.79m x 4.17m (19' x 13'8) - Grey finished units with cup handles, marble working surface and integrated one and a half sink unit with mixer tap. Integrated hob, oven and top oven, microwave, fridge freezer and dishwasher. There are south facing bifold doors to the garden, Velux roof lights and a gable window, radiator.

The hall extends to provide access to the bedroom accommodation.

Bedroom One - 4.14m x 3.48m (13'7 x 11'5) - Radiator, two windows in the north elevation with views towards woodland.

En-Suite - 2.51m x 1.27m (8'3 x 4'2) - 5' wide shower with rain shower and hand shower, low suite WC, basin, panelled walls, radiator.

Bedroom Two - 3.53m x 2.79m (11'7 x 9'2) - With radiator.

Bedroom Three - 4.14m x 2.62m (13'7 x 8'7) - With radiator.

En-Suite - 2.57m x 1.57m (8'5 x 5'2) - Shower cubicle, basin, low suite WC, radiator, panelled walls and built in cupboard.

Family Bathroom - Low suite WC, basin, bath with shower attachment, panelled walls.

Outside - An electric gate is set back from New Lane providing joint access to this property and the proposed neighbouring barn conversion. From the electric gates a private driveway extends to the property (the second conversion will have it's own separate driveway). There is an extensive gravelled frontage area with turning space and turfed areas.

Double car port of timber construction.

South facing garden with 2m high fencing and laurel hedging, turfed and extensive paved areas.

The paddock extends to the front of the property with a fenced boundary. There are two good sized sheds in the frontage of the property.

Services - Mains water, electricity are connected to the property. Drainage is by a new private treatment plant. Central heating is oil fired.

Tenure - The property is freehold.

Possession - Vacant possession will be given on completion.

Mortgage - Mortgage advice is available through our Mortgage Adviser. Your home is at risk if you do not keep up repayments on a mortgage or other loan secured on it.

Viewing - Strictly by appointment with the selling agents.

Council Tax - To Be Confirmed

Property Ref: 34514621

Share:

Similar Properties

Eastgate, Normanton-On-Trent, Newark

4 Bedroom Detached House | £350,000

A charming period detached cottage, believed to date back to the 1600s, with later additions in the 1980s and 2004, Holl...

Farndon Road, Newark

5 Bedroom Farm House | Guide Price £350,000

***Guide Price ?350,0000 - ?375,000*** Situated on Farnon Road, just one mile from Newark Town Centre, this charming Fou...

The Osiers, Newark

4 Bedroom Detached House | Offers in excess of £350,000

FANTASTIC FAMILY HOME - NOT TO BE MISSED! A well-presented and well-maintained four-bedroom detached home, conveniently...

Gainsborough Road, Winthorpe, Newark

2 Bedroom Detached House | Guide Price £375,000

*** PRICE GUIDE ?375,000 - ?400,000 *** Woodside Cottage comprises a detached Victorian Lodge with Coach House and outbu...

Moorhouse, Newark

4 Bedroom Country House | £375,000

Church Farm House a Grade II Listed property is offered subject to an Agricultural Occupancy Restriction which limits th...

Woodlands, Winthorpe, Newark

3 Bedroom Detached House | £375,000

Located in the delightful village of Winthorpe, this delightful three bedroom detached family home offers a perfect blen...

Richard Watkinson & Partners (Newark)

25 Stodman Street, Newark, Nottinghamshire, NG24 1AT

01636 611811

How much is your home worth?

Use our short form to request a valuation of your property.

Request a Valuation

Mortgage Calculator

Amount Borrowed: £
Total Amount Repayable: £
Total Monthly Payment: £
©2026 The Guild of Property Professionals. All rights reserved. Terms and Conditions | Privacy Policy | Cookie Policy | Complaints Policy | Members Login
The Guild of Property Professionals Trading Address: 121 Park Lane, London W1K 7AG. GPEA Limited. Registered in England & Wales.  Company No: 02819824.  Registered Office Address: 2 St. Stephen's Court, St. Stephen's Road, Bournemouth, Dorset, England, BH2 6LA.  VAT Registration No: 576 8795 61
Book a Property Valuation Update Cookies Preferences