Baldwins Gate, Newcastle, ST5

£875,000

5 Bedroom Detached House for sale in Newcastle

4 5 4
  • An exquisitely presented five bedroom detached house, sitting behind electric gates on a beautiful plot with parking for all the family and stunning gardens that wrap around this incredible home.
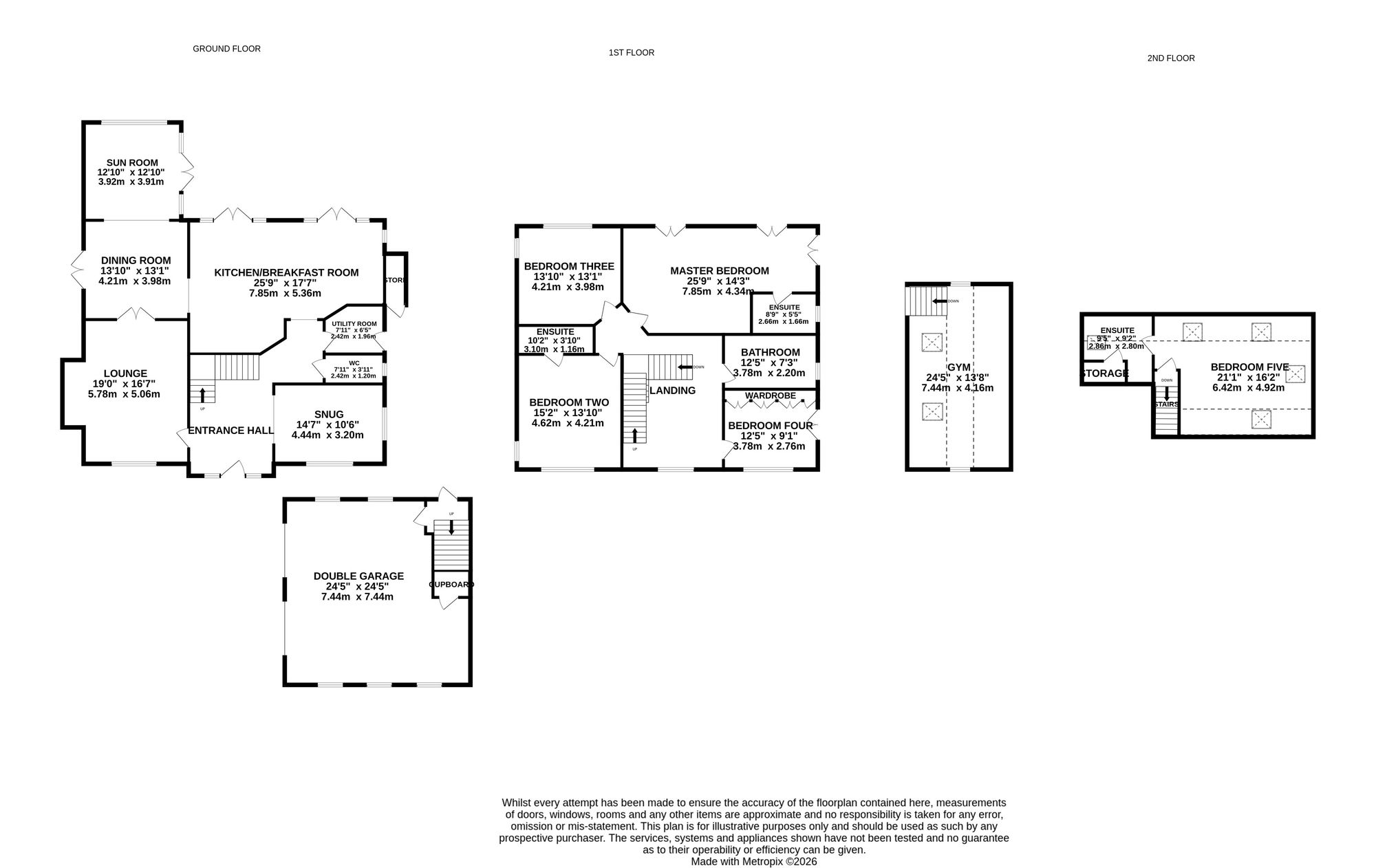
  • Five generous double bedrooms sit across two floors, three of which boast beautiful ensuites with one bedroom used as a study, along with an impressive landing space.
  • The ground floor has an impressive an abundance of space with a large entrance hallway, three spacious reception rooms, utility room, cloakroom and a family sized kitchen/dining/living space.
  • The huge double garage with electric up and over doors has a staircase leading to a first floor which is currently used for a gymnasium but would make the perfect play room or hobbies room.
  • Sitting in a prime location in the very sought after village of Baldwins Gate with a primary school, village shop and post office, beauty salon, delicatessen and gastro style pub.

They say home is where the heart is and this incredible five bedroom detached house certainly will capture your heart and your head, it’s simply a no brainer. Exquisitely decorated throughout offering pure luxury from top to toe, with lush thick carpets, herringbone wood and glossy tiled flooring throughout. Hiding behind the gated entrance this magnificent home offers a real sense of grandeur as you enter the grounds and park your vehicle on the spacious block paved driveway in front of the double garages. The pathway draws you down to the imposing front doorway where you’ll enter the large reception hallway of this exquisite home which leads to the main reception rooms, providing flexible living space and the most incredible rooms for entertaining family or friends, or simply relaxing.

On the right, open plan to the hall is a lovely sitting room, ideal for teenagers to hang out or but may work well for you as a play room for little ones or a study, slightly separated from the hustle and bustle of the the heart of the home which is the expansive kitchen, dining and living area. To the left of the hallway opposite the sitting room, double doors open in to the luxurious lounge with a feature fireplace and large window allowing light to flood in, with another set of double doors that continue into the formal dining room. You’ll soon realise that this magnificent house has been designed for both every day family life and hosting large parties, whether that’s Christmas day with the whole family round or a big celebration. Holmecroft flows effortlessly from one room to the next with spaces for all the family to enjoy or tuck themselves away for some quiet contemplation. The formal dining room opens straight into the another sitting room, a peaceful place to sit and read a book, coffee in hand, overlooking the beautiful rear garden with French doors open right out to the patio area.

At the heart of the home, positioned alongside the dining room, sits the beautifully designed kitchen. This space is both highly practical for those who enjoy cooking and wonderfully sociable — perfect for entertaining friends or catching up with family after a long day. Bi-folding doors open seamlessly onto the rear garden and patio, making it ideal for sunny days and relaxed alfresco dining. The kitchen features extensive cabinetry and storage, along with a range of integrated appliances including double ovens, a fridge, freezer, dishwasher and wine fridge. A separate utility room and cloakroom adding further convenience.

Across two floors, five generous double bedrooms provide comfortable accommodation, three of which benefit from stylish ensuite bathrooms. One bedroom is currently used as a study, making it perfect for home working, while the impressive landing space enhances the sense of openness throughout. The main bedroom gives vibes of a luxury hotel suite with an abundance of fitted wardrobes and three sets of French doors offering a beautiful spot to maybe place a sofa for a chilled summer evenings.

Heading outside the stunning gardens wrap around the property, providing the perfect setting for outdoor living. Beautifully landscaped lawns and well-stocked borders create a picturesque backdrop, while a generous patio area offers the perfect spot for al fresco dining and summer gatherings. Mature trees and hedging provide a sense of seclusion, making the garden a true retreat. The driveway, accessed via electric gates, leads to extensive parking and the double garage, featuring electric up and over doors, and includes a staircase to a versatile first floor space currently used as a gymnasium, which could easily be adapted as a playroom or hobbies room. ensuring convenience for family and guests.

The grounds are immaculately maintained, reflecting the care and attention to detail found both inside and out, throughout the property. Whether you are seeking a peaceful escape, space for entertaining or a safe environment for family life, the outside space at this exceptional home offers endless possibilities. Early viewing is highly recommended to fully appreciate the unique setting and superb gardens that complement this outstanding residence.This exquisitely presented five bedroom detached house offers a rare opportunity to acquire a substantial family home, ideally positioned within walking distance of Baldwins Gate’s amenities, including a primary school, village shop and post office, beauty salon, delicatessen and gastro style pub, ensuring a wonderful village lifestyle.

Important Information

  • This is a Freehold property.
  • This Council Tax band for this property is: G

Property Ref: 1a54e592-d18a-428b-a031-2241a21f2df3

Share:

Similar Properties

Sandy Lane, Baldwins Gate, ST5

4 Bedroom Detached House | £825,000

This stunning detached home radiates warmth, space and style, offering four double bedrooms, two bathrooms and glowing r...

Sandford, Whitchurch, SY13

4 Bedroom Detached House | £775,000

With everything you could possibly need right on your doorstep, you may never want to leave home again, and honestly, wh...

Ashley Heath, Market Drayton, TF9

5 Bedroom Detached House | £770,000

Magnificent 5-bed home nestled in serene setting with easy access to amenities and major roads. Grand entrance, spacious...

Partridge Ride, Loggerheads, TF9

5 Bedroom Detached House | £895,000

Introducing a stunning 5-bed detached home with grand frontage, nestled by antient woodlands. Gated entrance, high ceili...

Hill Chorlton, Newcastle, ST5

6 Bedroom Detached House | Offers in region of £899,999

Fantastic family home built around Grade II listed mill from 1850s on 6 acres with streams and ponds. 3 reception rooms,...

Green Lane, Whitgreave, ST18

5 Bedroom Detached House | £900,000

Luxury equestrian estate with barn conversion, stables, outbuildings, and 2 acres of picturesque land. 5 beds, 4 baths,...

James Du Pavey Estate Agents (Eccleshall)

Eccleshall, Staffordshire, ST21 6BH

01785 851886

How much is your home worth?

Use our short form to request a valuation of your property.

Request a Valuation

Mortgage Calculator

Amount Borrowed: £
Total Amount Repayable: £
Total Monthly Payment: £
©2026 The Guild of Property Professionals. All rights reserved. Terms and Conditions | Privacy Policy | Cookie Policy | Complaints Policy | Members Login
The Guild of Property Professionals Trading Address: 121 Park Lane, London W1K 7AG. GPEA Limited. Registered in England & Wales.  Company No: 02819824.  Registered Office Address: 2 St. Stephen's Court, St. Stephen's Road, Bournemouth, Dorset, England, BH2 6LA.  VAT Registration No: 576 8795 61
Book a Property Valuation Update Cookies Preferences