Fairfield Crescent, Newhall, DE11 0SX

Offers Over
£215,000

3 Bedroom Semi-Detached House for sale in Newhall, Swadlincote

1 3 1
  • Offered with NO UP-WARD CHAIN
  • Fully Up-graded Throughout
  • Semi-Detached Family Home
  • Contemporary Lounge/Diner
  • Modern Fitted Kitchen
  • Two Double Bedrooms
  • One Single Bedroom
  • Contemporary Family Bathroom
  • Landscaped Rear Garden
  • OFF ROAD PARKING

Liz Milsom Properties  are delighted to present this stunning, fully renovated three-bedroom SEMI DETACHED HOME. This property has been refurbished to an exceptional standard throughout, offering a modern and stylish living space that’s ready to move straight into.  Immaculately presented, the accommodation comprises: entrance porch, spacious lounge/diner featuring bespoke shelving and a custom-built seating bench with integrated lighting.  A high-specification kitchen finished to an outstanding standard. Upstairs, the landing leads to three bedrooms and a luxurious, contemporary family bathroom with newly fitted flooring throughout.  Outside, the home offers a full-width driveway providing OFF ROAD PARKING for up to three vehicles, while the landscaped rear garden has been thoughtfully designed—perfect for outdoor entertaining and low-maintenance enjoyment.  This is a truly turn-key property and viewings are highly recommended.


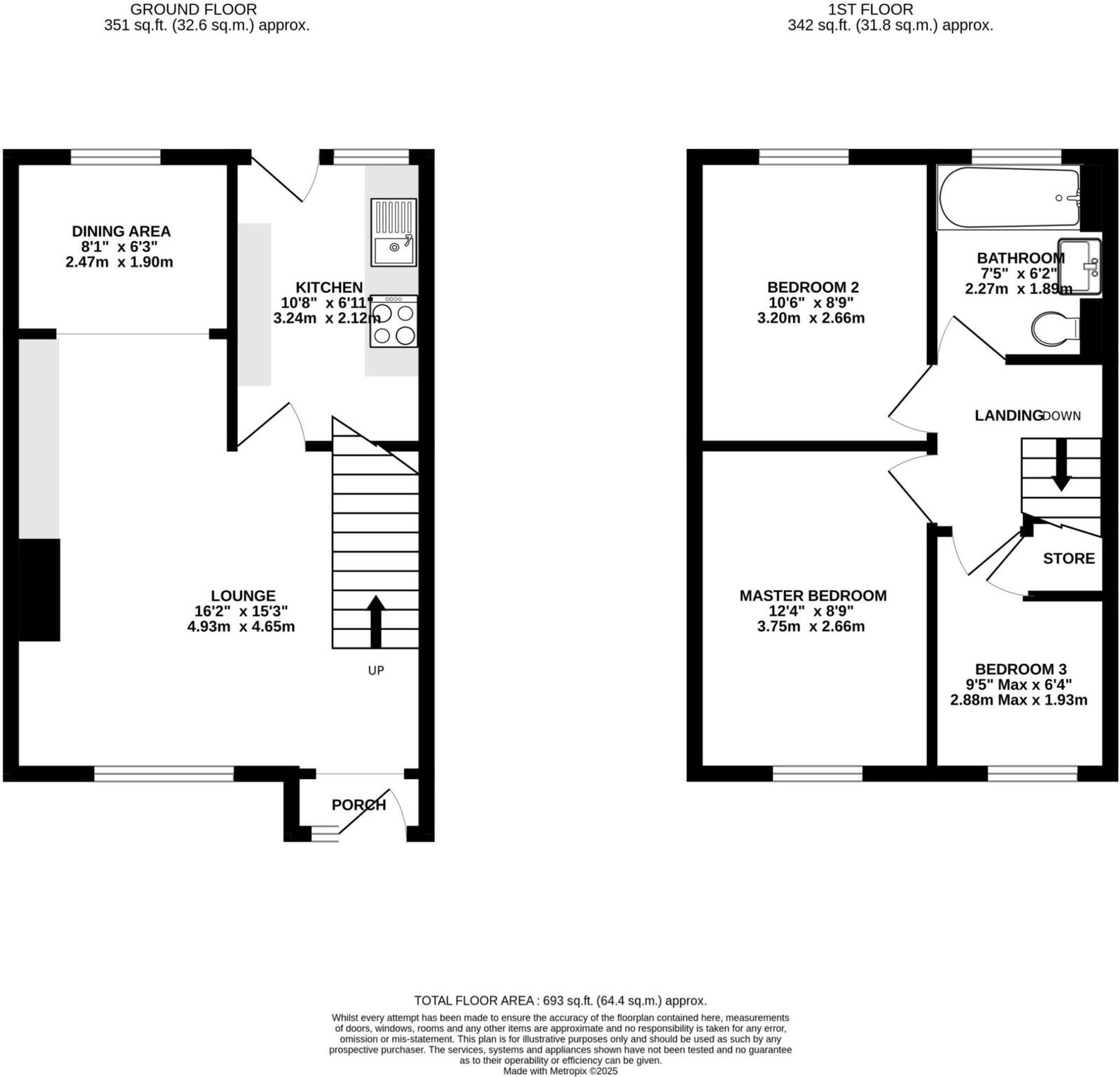
The accommodation measurements


Reception Hall


Lounge - 4.93m x 4.65m (16'2 x 15'3)


Dining Room - 2.47m x 1.9m (8'1" x 6'3")


Kitchen - 3.40m x 2.21m (10'8 x 6'11)


First floor and Landing


Principal Bedroom - 3.78m x 2.77m (12'4 x 8'9)


Bedroom Two - 3.20m x 2.77m (10'6 x 8'9)


Bedroom Three - 2.74m x 1.63m (9'5 x 6'4)


Modern Family Bathroom - 2.27m x 1.89m (7'5 x 6'2)


Location


The village of Newhall is well placed for the commuter with excellent road links leading to the towns of Burton on Trent, Ashby de la Zouch, Derby and excellent motorway networks with easy access to the M42 and beyond. Excellent local amenities are situated within High Street and Main Street, Newhall including shops, Sainsbury's Convenience Store, hairdressers, Doctors, chemist etc. Perfectly placed too for schooling, the property is well placed for the local infant & primary School, which is a short walk away from the school, with the local Secondary school, Mercia Academy also being located in Sunnyside, Newhall, which makes one easy drop off, if the buyer has children of varying ages. More comprehensive shopping is available at Swadlincote which is a short drive away with plenty of eateries and Cinema. The subject property is pleasantly situated in this ever popular established residential area.


Reception Hall


The property is entered via a welcoming entrance porch, which sets the tone for the high standard found throughout the home. This space features newly fitted flooring, a centre light point, and provides convenient access to both the Lounge and Kitchen. The consumer unit for the electrics is also housed here, neatly positioned for easy access.


Lounge


The spacious lounge/diner features a staircase rising to the first floor, along with a built-in understairs storage cupboard for added practicality. Thoughtfully designed, the room includes bespoke shelving with integrated lighting and a stylish feature fitted bench, creating both charm and functionality. Finished with wood-effect laminate flooring, the space also benefits from two central heating radiators and a uPVC double glazed window to the front elevation, allowing for plenty of natural light.


Dining Area


The room is enhanced by feature lighting, stylish wood-effect laminate flooring, and a uPVC double glazed window to the rear elevation, offering a bright and modern feel.


Modern Contemporary Fitted Kitchen


The heart of this beautifully renovated home is the bespoke newly fitted kitchen, designed with both style and functionality in mind. It boasts handcrafted kitchen units complemented by wood-effect laminate work surfaces and a striking feature tiled splashback. A composite sink and drainer is paired with a sleek brass mixer tap, adding a touch of elegance.


Appliances include a built-in electric oven, four-ring electric hob with contemporary extractor over, and designated spaces for both a washing machine and fridge/freezer.


Further highlights include under-counter lighting and plinth lighting, which together create a warm and modern ambience. The flooring is finished in wood-effect ceramic tiles, offering both durability and aesthetic appeal.


Natural light fills the space via a uPVC double glazed window to the rear elevation, and a frosted uPVC double glazed door provides access to the garden.


First floor and Landing


Principal Bedroom


The room is beautifully presented with feature wall panelling, eye-catching feature lighting, a central heating radiator, and a uPVC double glazed window to the front elevation, allowing for ample natural light.


Bedroom Two


A generously sized second bedroom, offering comfortable proportions, complete with a central heating radiator and a uPVC double glazed window to the rear elevation, providing pleasant views and natural light.


Bedroom Three


This room benefits from a built-in over stairs storage cupboard which neatly houses the newly fitted gas-fired combination boiler. Additional features include a central heating radiator and a uPVC double glazed window to the front elevation, allowing for natural light and a comfortable atmosphere.


Modern Newly Fitted Family Bathroom


The stylish family bathroom has been finished to a high standard and features a low-level WC with hidden cistern and brass push plate, a wall-hung vanity wash basin with matching brass fittings, and a bath with brass fittings complemented by a brass thermostatic waterfall shower over and a glass shower screen. The space is enhanced by full tiling, feature shelving with integrated lighting, and wood-effect tiled flooring for a modern yet warm feel. Additional highlights include a brass heated towel radiator and a frosted uPVC double glazed window to the rear elevation, offering privacy and natural light.


Externally - Front Elevation - Overview


To the front of the property is a generous full-width driveway, part block paved and part tarmacadam, offering off-road parking for up to three vehicles and providing access to the side of the home.


Externally - Rear Elevation - Overview


To the rear, you'll find a fully enclosed garden, secured by concrete posts with gravel board fencing, offering both privacy and safety. The garden features a spacious porcelain paved patio area—ideal for outdoor dining and entertaining—along with a tiered design, incorporating a raised sleeper wall and steps leading up to a recently turfed lawn. Finishing touches include raised planter beds, perfect for gardening enthusiasts or adding a splash of colour to this thoughtfully landscaped space.


Tenure


Freehold - with vacant possession on completion. Liz Milsom Properties Limited recommend that purchasers satisfy themselves as to the tenure of this property and we recommend they consult a legal representative such as a solicitor appointed in their purchase.


Services


Water, mains gas and electricity are connected. The services, systems and appliances listed in this specification have not been tested by Liz Milsom Properties Ltd and no guarantee as to their operating ability or their efficiency can be given.


Viewing Strictly Through Liz Milsom Properties


To view this lovely property please contact our dedicated Sales Team at LIZ MILSOM PROPERTIES.


We provide an efficient and easy selling/buying process, with the use of latest computer and internet technology combined with unrivalled local knowledge and expertise. PUT YOUR TRUST IN US, we have a proven track record of success as the TOP SELLING AGENT locally – offering straight forward honest advice with COMPETITVE FIXED FEES.


CALL THE MULTI-AWARD WINNING AGENT TODAY


Measurements


Please note that room sizes are quoted in metres to the nearest tenth of a metre measured from wall to wall. The imperial equivalent is included as an approximate guide for applicants not fully conversant with the metric system. Room measurements are included as a guide to room sizes and are not intended to be used when ordering carpets or flooring.


Disclaimer


The particulars are set out as a general outline only for the guidance of intended purchasers or lessees, and do not constitute, any part of a contract. Nothing in these particulars shall be deemed to be a statement that the property is in good structural condition or otherwise nor that any of the services, appliances, equipment or facilities are in good working order. Purchasers should satisfy themselves of this prior to purchasing.


 


22.09.2025 - LMM/DG

Important Information

  • This is a Freehold property.
  • This Council Tax band for this property is: B

Property Ref: 7875_1199095

Share:

Similar Properties

Woodlands Way, Moira, DE12 6HE

3 Bedroom Semi-Detached House | £215,000

Located within walking distance of the National Forest and associated walks and cycle paths, this well equipped three be...

Patina Way, Swadlincote

3 Bedroom End of Terrace House | £215,000

***** LIZ MILSOM PROPERTIES***** are please to bring to the market this immaculately presented and ready to move into, t...

Burton Road, Woodville, Swadlincote

3 Bedroom Semi-Detached House | Offers Over £210,000

 LIZ MILSOM PROPERTIES are pleased to offer this spacious THREE BEDROOM FAMILY HOME. Featuring ample OFF ROAD PARKING, g...

Breadsall Close, Newhall, Swadlincote, DE11 0QJ

3 Bedroom Semi-Detached House | £219,950

Set in a peaceful cul-de-sac in an established part of Newhall, 1 Breadsall Close is a beautifully presented three-bedro...

Princess Street, Castle Gresley, Swadlincote, DE11 9JZ

2 Bedroom Bungalow | £220,000

A perfect none-estate, retirement HOME, ready to move into, with modern refitted Kitchen and Range, Lounge, Conservatory...

Blueberry Way, Woodville, Swadlincote

3 Bedroom Townhouse | £220,000

This spacious and beautifully presented end town house is perfect for a growing family and is offered with no upward cha...

Liz Milsom - Swadlincote (Hartshorne)

2 Dinmore Grange, Hartshorne, Swadlincote, DE11 7NJ

01283 219336

How much is your home worth?

Use our short form to request a valuation of your property.

Request a Valuation

Mortgage Calculator

Amount Borrowed: £
Total Amount Repayable: £
Total Monthly Payment: £
©2025 The Guild of Property Professionals. All rights reserved. Terms and Conditions | Privacy Policy | Cookie Policy | Complaints Policy | Members Login
The Guild of Property Professionals Trading Address: 121 Park Lane, London W1K 7AG. GPEA Limited. Registered in England & Wales.  Company No: 02819824.  Registered Office Address: 2 St. Stephen's Court, St. Stephen's Road, Bournemouth, Dorset, England, BH2 6LA.  VAT Registration No: 576 8795 61
Book a Property Valuation Update Cookies Preferences