Chaffinch Way, Duffryn, NP10

Guide Price
£150,000
SSTC
This property listing is now SSTC

3 Bedroom Terraced House for sale in Newport

1 3 1

Number One Agent, Katie Darlow is delighted to offer this three bedroom, terraced property for sale in Duffryn.

Located on Chaffinch Way in Newport, this three-bedroom terraced property is offered to the market with no onward chain, presenting a superb opportunity for first-time buyers, growing families, or investors alike. The property is conveniently situated within a popular residential development, with excellent access to local amenities, schools, and transport links. The nearby A48 and M4 motorway offer direct routes to Cardiff, Bristol, and beyond, while regular public transport services provide easy connections into Newport city centre. The area benefits from a selection of nearby schools, supermarkets, and leisure facilities, with pleasant green spaces and walking paths also within close reach.

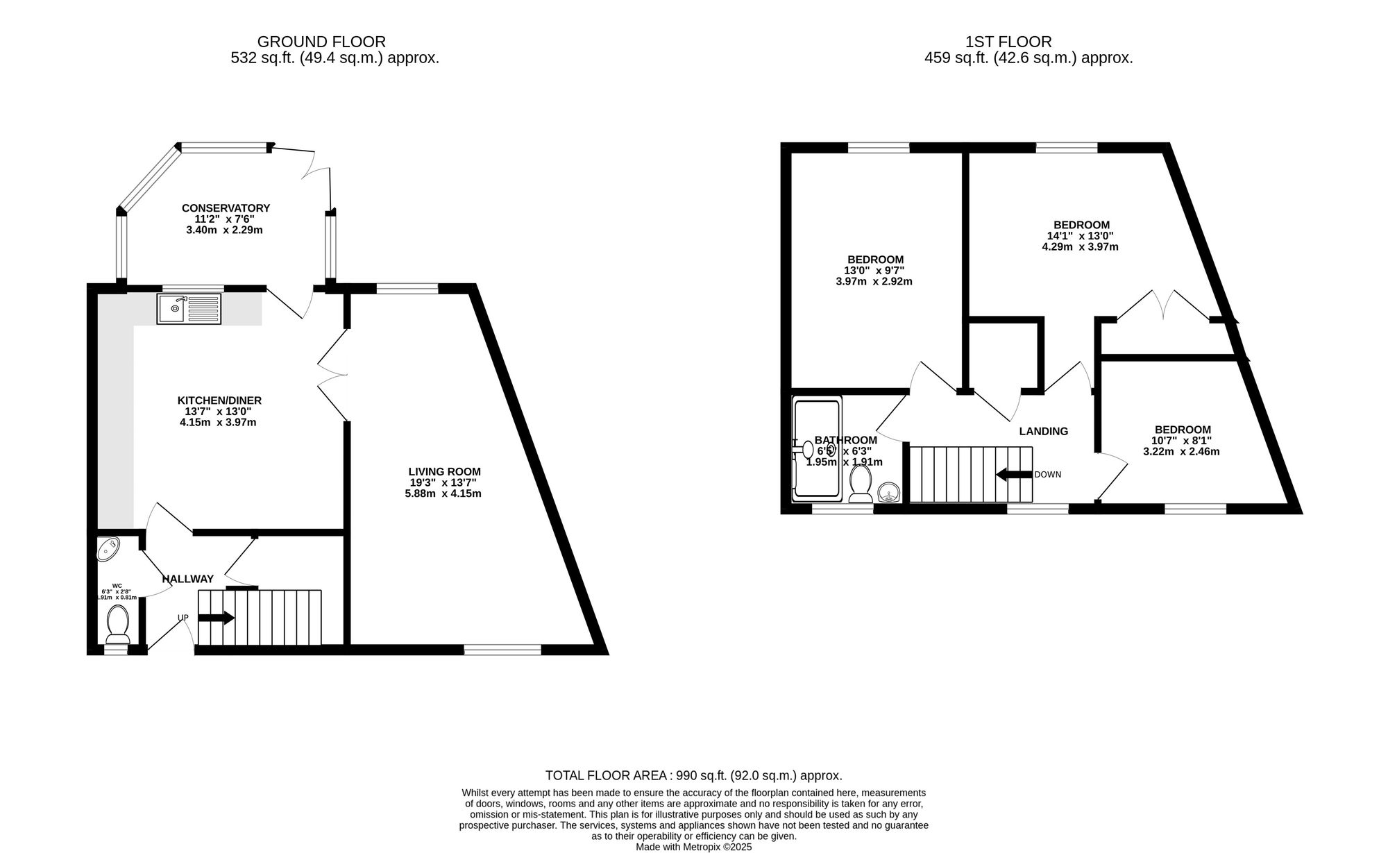
The ground floor offers well-proportioned and versatile living accommodation, starting with a spacious open-plan kitchen/diner to the rear of the property. The kitchen is fitted with a range of storage units and work surfaces, with space for both dining and everyday family use. From here, doors lead into a bright conservatory that overlooks the rear garden, ideal for use as a sunroom or additional seating area. Adjacent to the kitchen/diner is a generous living room, providing ample space for various furniture layouts, whether for relaxing, entertaining, or family activities. A useful cloakroom with WC and hand basin completes the ground floor.

Upstairs, the property comprises three double bedrooms, each offering comfortable proportions and the flexibility to be used as bedrooms, home offices, or guest rooms. A well-appointed family bathroom serves the first floor, featuring a bath with overhead shower, wash basin, and WC.

To the front of the property is a good-sized garden and a driveway providing off-road parking. To the rear, an enclosed garden offers a private outdoor space, complete with patio area — ideal for al fresco dining, entertaining, or simply enjoying the warmer months.

Agents note: Please note the property is Non-standard construction (Timber Framed) and may be subject to limited mortgage lenders.

Council Tax Band: B

All services and mains water are connected to the property.

The broadband internet is provided to the property by cable, the sellers are subscribed to Virgin Media. Please visit the Ofcom website to check broadband availability and speeds.

The owner has advised that the level of the mobile signal/coverage at the property is good, they are subscribed to EE. Please visit the Ofcom website to check mobile coverage.

Please contact Number One Real Estate for more information or to arrange a viewing.

Energy Efficiency Current: 77.0
Energy Efficiency Potential: 91.0

Important Information

  • This is a Freehold property.
  • This Council Tax band for this property is: B

Property Ref: e337fd24-06c9-4823-bdda-909aaa8ef2b1

Share:

Similar Properties

Bathstone Mews, The Oliver, NP19

2 Bedroom Flat | Guide Price £150,000

* GUIDE PRICE: £150,000 - £160,000 * 2 DOUBLE BEDROOMS * TOP FLOOR FLAT * GREAT LOCATION * RIVERSIDE VIEWS FROM BALCONY...

Broad Street, Griffithstown, NP4

2 Bedroom Terraced House | £150,000

**WELL PRESENTED**MID TERRACE PROPERTY**TWO BEDROOMS**OPEN PLAN LOUNGE/DINER**MODERN KITCHEN**BATHROOM**ENCLOSED REAR GA...

Anderson Grove, Newport, NP19

2 Bedroom Flat | Guide Price £150,000

**GUIDE PRICE £150,000 - £160,000**UPPER FLOOR APARTMENT**TWO DOUBLE BEDROOMS**OPEN PLAN LIVING**MODERN KITCHEN AND BATH...

Hill Street, Newport, NP20

2 Bedroom Flat | Guide Price £155,000

* GUIDE PRICE £155,000-£165,000 * GROUND FLOOR APARTMENT * LARGE OPEN PLAN LIVING ROOM * 2 DOUBLE BEDROOMS * IDEAL LOCAT...

Albany Street, Newport, NP20

2 Bedroom Terraced House | Guide Price £155,000

**GUIDE PRICE: £155,000 - £165,000**MID TERRACE PROPERTY**TWO DOUBLE BEDROOMS**OPEN PLAN LOUNGE/DINER**KITCHEN**UTILITY*...

Clevedon Road, Clevedon House, NP19

2 Bedroom Flat | Guide Price £160,000

* GUIDE PRICE £160,000 - £170,000 * FIRST FLOOR FLAT * WELL PRESENTED * TWO DOUBLE BEDROOMS * COMMUNAL GARDENS * ALLOCAT...

Number One Real Estate (Newport)

Newport, Monmouthshire, NP20 4AQ

01633 492777

How much is your home worth?

Use our short form to request a valuation of your property.

Request a Valuation

Mortgage Calculator

Amount Borrowed: £
Total Amount Repayable: £
Total Monthly Payment: £
©2025 The Guild of Property Professionals. All rights reserved. Terms and Conditions | Privacy Policy | Cookie Policy | Complaints Policy | Members Login
The Guild of Property Professionals Trading Address: 121 Park Lane, London W1K 7AG. GPEA Limited. Registered in England & Wales.  Company No: 02819824.  Registered Office Address: 2 St. Stephen's Court, St. Stephen's Road, Bournemouth, Dorset, England, BH2 6LA.  VAT Registration No: 576 8795 61
Book a Property Valuation Update Cookies Preferences