Capra Close, Newton Abbot

£425,000

4 Bedroom Detached House for sale in Newton Abbot

4 2
  • DETACHED MODERN FAMILY HOME
  • DOUBLE ASPECT LOUNGE
  • LARGE KITCHE/DINER/FAMILY ROOM
  • DINING ROOM
  • DOWNSTAIRS WC
  • THREE DOUBLE BEDROOMS
  • ENSUITE TO PRINCIPAL BEDROOM
  • GOOD SIZED SINGLE BEDROOM
  • DETACHED GARAGE AND AMPLE DRIVEWAY PARKING
  • NO ONWARD CHAIN

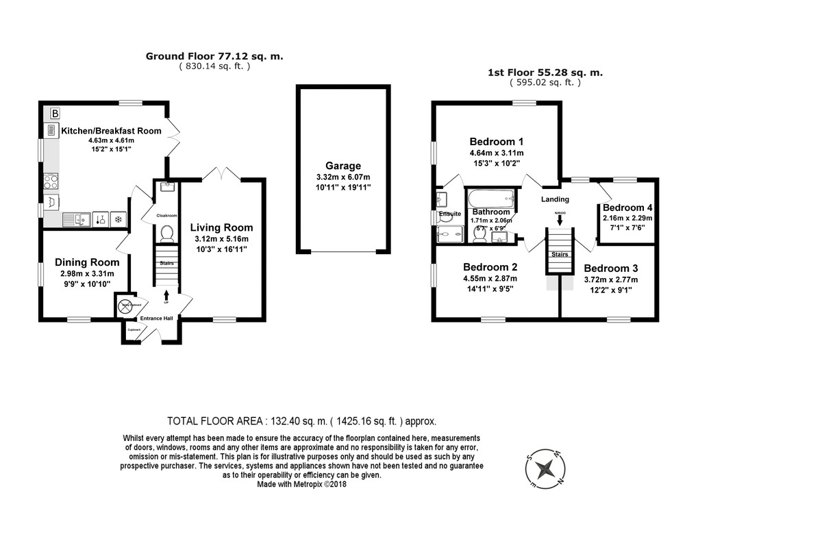
The property is entered via a welcoming and generously sized entrance hallway, setting the tone for the well proportioned accommodation throughout. The hallway provides access to a convenient downstairs WC and stairs leading to the first floor. The ground floor offers a bright and spacious lounge, ideal for relaxation, along with a separate dining room, both enjoying a pleasant front aspect. From the lounge, doors open directly onto the rear garden, creating a seamless flow between indoor and outdoor living.

To the rear of the property is a modern, well appointed fitted kitchen family room, thoughtfully designed to suit contemporary family life. The kitchen is equipped with a range of integrated appliances and offers ample workspace, while additional doors provide further access to the garden, making this an excellent space for entertaining and everyday use.

The enclosed rear garden is designed with low maintenance in mind, offering a private and secure outdoor space ideal for families, entertaining, or relaxing, without the upkeep demands of a traditional garden.

To the first floor are three well proportioned double bedrooms along with an additional single bedroom, suitable for a child's room, home office, or guest accommodation. The principal bedroom benefits from an en suite shower room, while a stylish and contemporary family bathroom serves the remaining bedrooms.

Further benefits include a detached garage, ample off street parking, and a desirable position fronting onto open meadow land. The property is also ideally located within easy reach of the A380, bus routes and Newton Abbot train station. Being just a short walk of a children's play park and open meadow land makes this property an ideal family home. 

Property Ref: 101182024134

Share:

Similar Properties

Tribune Drive, Newton Abbot

4 Bedroom Detached House | Guide Price £425,000

Built three years ago, this high-spec detached home offers spacious open-plan kitchen, living and dining space with prem...

Whitehill Road, Newton Abbot, TQ12 1QD

3 Bedroom Detached House | Guide Price £425,000

CHECK OUT this Fantastic 3 Bedroom Detached Home with Stunning Countryside Views. This property comes Complete with a Sp...

Franeth Close, Kingsteignton, Newton Abbot

3 Bedroom Detached Bungalow | Guide Price £425,000

Beautifully presented 3 bed detached bungalow in a tranquil Kingsteignton location. Built in 2015, it offers a bright lo...

Knowles Hill Road, Newton Abbot, TQ12 2PR

4 Bedroom Detached House | Guide Price £450,000

We are delighted to offer this 1930's Detached HOME with Wrap around Gardens. This property comes Complete with 4 Bedroo...

Powderham Road, Newton Abbot, TQ12 1EU

4 Bedroom Semi-Detached House | Guide Price £475,000

CHECK OUT this Semi-Detached Victorian Villa in central Newton Abbot. Currently arranged as a Duplex Ground & First Floo...

Hill Park Road, Highweek Newton Abbot, TQ12 1NU

4 Bedroom Detached House | Guide Price £500,000

CHECK OUT this MODERN, Refurbished, Extended & very UNIQUE HOME! Located close to Highweek Village Newton Abbot. Detache...

Complete Estate Agents - Newton Abbot (Newton Abbot)

79 Queen Street, Newton Abbot, Devon, TQ12 2AU

01626 362246

How much is your home worth?

Use our short form to request a valuation of your property.

Request a Valuation

Mortgage Calculator

Amount Borrowed: £
Total Amount Repayable: £
Total Monthly Payment: £
©2026 The Guild of Property Professionals. All rights reserved. Terms and Conditions | Privacy Policy | Cookie Policy | Complaints Policy | Members Login
The Guild of Property Professionals Trading Address: 121 Park Lane, London W1K 7AG. GPEA Limited. Registered in England & Wales.  Company No: 02819824.  Registered Office Address: 2 St. Stephen's Court, St. Stephen's Road, Bournemouth, Dorset, England, BH2 6LA.  VAT Registration No: 576 8795 61
Book a Property Valuation Update Cookies Preferences