39 Cloughey Road

Offers in region of
£359,950
SSTC
This property listing is now SSTC

5 Bedroom Detached House for sale in NEWTOWNARDS

3 5 2
  • Superb Detached Family Home on Elevated Site
  • Stunning Views of the Surrounding Countryside to the Mournes
  • Sympathetically Refurbished and Restored Yet Still Retaining Much Character and Charm
  • Built Circa 1860
  • Offering a Wealth of Accommodation Spread Over Three Floors
  • Drawing Room with Feature Fireplace and Outlook to Gardens
  • Spacious Kitchen Open Plan to Dining and Living Area
  • Living Area with Wood Burning Stove and French Doors to Patio and Garden
  • Large Utility Room
  • Ground Floor WC

Ideally located on a quiet lane and approached by a sweeping driveway through mature secluded gardens, this superb detached family home has been sympathetically refurbished and restored by the current owners whilst still retaining much character and charm. Built in 1860 this unique property sits on an elevated site with stunning views over the surrounding countryside and the Mournes.
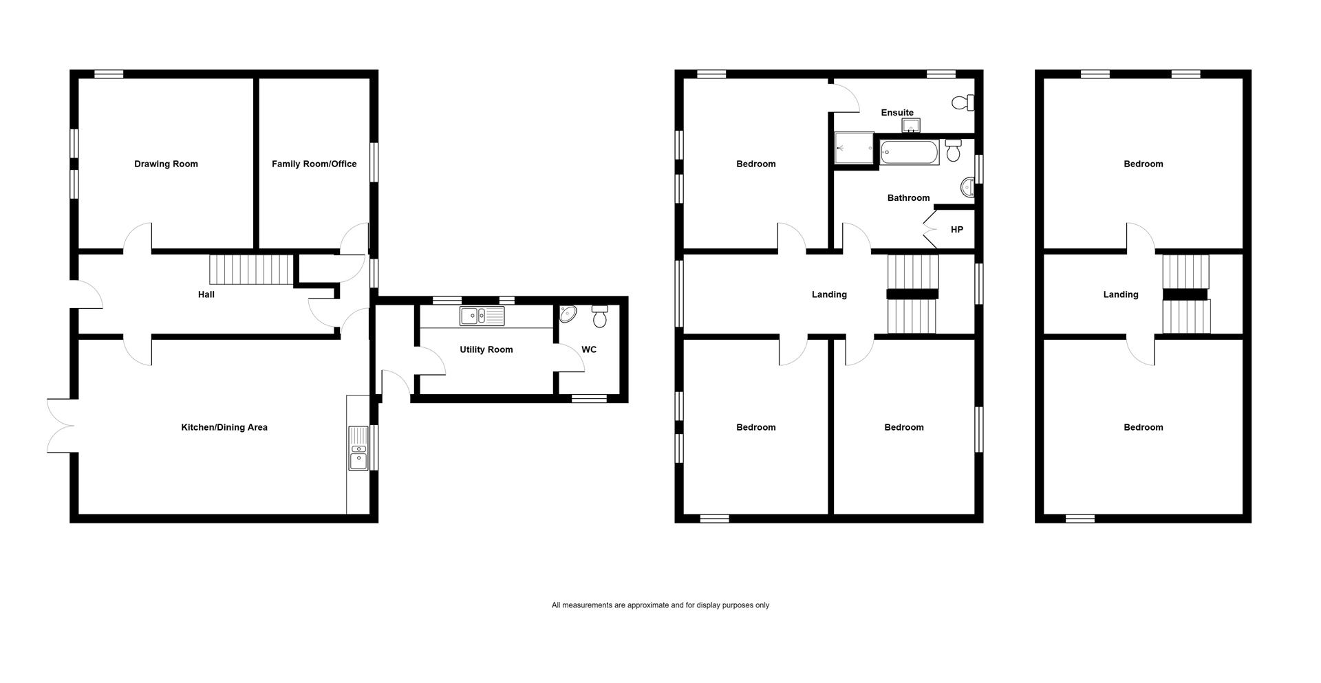
Set over three floors the accommodation, in brief, comprises of a spacious reception hall, drawing room, with feature fireplace, overlooking the gardens, and Shaker style kitchen with ample space for dining and living. The casual living area benefits from a wood burning stove and French doors to patio and garden. A further reception room, large utility room and WC add to the list of key features to the ground floor.
On the first floor there are three well appointed double bedrooms, master, with en suite, and family bathroom with a further two spacious bedrooms to the second floor. Outside does not disappoint either. The front and large side garden is laid in lawns with mature plants, shrubs and trees as well as driveway providing generous parking. To the rear there is a large detached garage with additional parking for several cars, boats, caravans.
39 Cloughey Road is only a short drive to the harbour town of Portaferry with a variety of local amenities, the Marina and the stunning beaches of Cloughey and Quintin Bay all providing a huge range of activities from sailing on the Strangford Lough to cycling, walking and fishing. Not surprising Portaferry was voted in the top three places to live in Northern Ireland with unbeatable scenery on your doorstep.

Ground Floor - () - Hardwood front door to spacious reception hall.

Spacious Reception Hall: - () - With Chinese slate tiled floor, cornice ceiling, architraves and ceiling rose.

Drawing Room: - (4.67m x 4.62m) - Dual aspect windows, with views over the garden and countryside, and feature fireplace with open fire, cornice ceiling and ceiling rose, wood flooring.

Family Room/Office - (4.57m x 2.74m) - Range of built-in shelving and storage, cornice ceiling.

Kitchen/Dining - (4.57m x 3.96m) - Excellent range of fitted Shaker style cream units with granite work surfaces, glass display cabinets, red brick alcove for range style oven with oak beam mantel, recessed lighting, cornice ceiling, parquet flooring with terrazzo surround, open plan to living area ...

Living Area - (4.57m x 3.96m) - Inglenook fireplace with cast iron wood burning stove, French doors to paved patio and garden, cornice ceiling, ceiling rose, parquet flooring.

Rear Hallway: - () - With rear access door to additional parking area and large detached garage .

Utility Room: - (3.66m x 2.44m) - With excellent range of high and low level Shaker style units, stainless steel sink, plumbed for white goods, grey tiled floor.

Wc: - () - White suite comprising low flush WC, corner sink unit, grey tiled flooring.

Landing: - () - Large picture window with superb views over the rolling countryside and to the Mournes, cornice ceiling.

Master Bedroom: - (4.57m x 3.96m) - With cornice ceiling, oak wood flooring.

Ensuite Shower Room: - () - White suite comprising low flush WC, vanity sink unit, fully tiled shower cubicle, chrome heated towel rail, Harlequin tiled floor.

Bedroom (2): - (5.18m x 3.66m) - With cornice ceiling and wood effect flooring, dual aspect windows.

Bedroom (3): - (4.78m x 3.66m) - With cornice ceiling.

Bathroom: - () - White suite comprising low flush WC, pedestal wash hand basin, wood panelled bath with overhead shower, storage, cornice ceiling, Harlequin tiled floor.

Second Floor Landing - () -

Bedroom (4): - (5.26m x 4.65m) - With vaulted ceiling, Velux window, wood flooring.

Bedroom (5): - (5.18m x 4.57m) - With vaulted ceiling, Velux window, cornice ceiling and wood effect flooring.

Outside: - () - Front and extensive side garden laid in lawns with mature trees and shrubs, large gravelled driveway providing generous parking, rear access to additional driveway with parking for several cars, boats, caravans and trailers and access to garage.

Detached Double Garage: - (6.4m x 6.22m) - With electric roller door, light and power.

Property Ref: 44457_34013435

Share:

Similar Properties

Cloughey Road, Portaferry, NEWTOWNARDS, BT22 1NQ

5 Bedroom Detached House | Offers in region of £359,950

Ideally located on a quiet lane and approached by a sweeping driveway through mature secluded gardens, this superb detac...

Groomsport House Road, Groomsport, BANGOR, BT19 6GH

4 Bedroom Townhouse | Offers in region of £359,950

Here is an excellent opportunity to purchase a fantastic larger-than-it-looks end town house, with sea views, which is s...

Warren Avenue, DONAGHADEE, BT21 0PE

5 Bedroom Detached House | Asking Price £355,000

Public Notice Address: 16 Warren Avenue, Donaghadee, BT21 0PE We are acting in the sale of the above property and have r...

Killaire Park, Bangor, BT19 1EJ

4 Bedroom Detached Bungalow | Asking Price £375,000

Situated in the highly sought-area of Carnalea, 48 Killaire Park is a much-loved detached four-bedroom bungalow offering...

Coniston Road, BANGOR, BT20 4QQ

4 Bedroom Detached House | Offers in region of £379,950

Nestled in a peaceful cul-de-sac within one of Bangor’s most prestigious and sought-after residential areas, 4 Coniston...

Donaghadee Road, BANGOR, BT20 4NJ

5 Bedroom Detached House | Offers in region of £379,950

Extending to circa 2,500 square feet and with no onward chain this detached family home is a real Tardis of a property....

John Minnis Estate Agents (Donaghadee)

Donaghadee, County Down, BT21 0AG

028 9188 8881

How much is your home worth?

Use our short form to request a valuation of your property.

Request a Valuation

Mortgage Calculator

Amount Borrowed: £
Total Amount Repayable: £
Total Monthly Payment: £
©2025 The Guild of Property Professionals. All rights reserved. Terms and Conditions | Privacy Policy | Cookie Policy | Complaints Policy | Members Login
The Guild of Property Professionals Trading Address: 121 Park Lane, London W1K 7AG. GPEA Limited. Registered in England & Wales.  Company No: 02819824.  Registered Office Address: 2 St. Stephen's Court, St. Stephen's Road, Bournemouth, Dorset, England, BH2 6LA.  VAT Registration No: 576 8795 61
Book a Property Valuation Update Cookies Preferences