Witton, Norfolk

Guide Price
£950,000
SSTC
This property listing is now SSTC

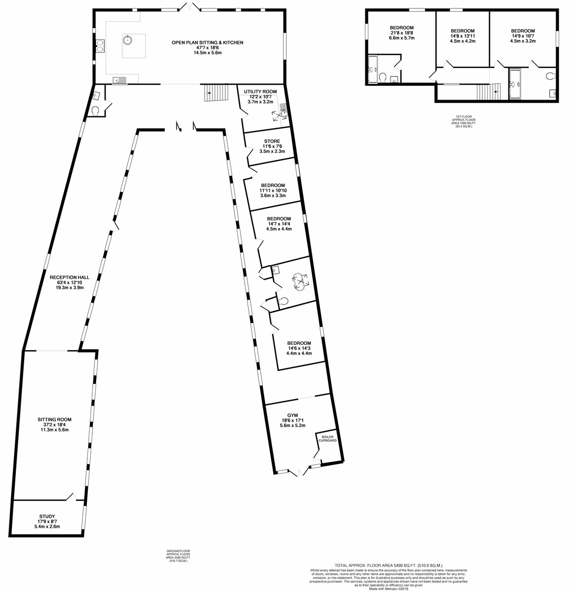
6 Bedroom Barn Conversion for sale in North Walsham

2 6 3
  • Stunning Barn Conversion
  • Partially Renovated Detached Studio Cottage
  • Beautifully Renovated
  • Bespoke Kitchen with Aga
  • Fully Vaulted Sitting Room
  • Impressive Entrance Hall
  • Six Double Bedrooms
  • Gym
  • Views Over Open Countryside
  • Walled Gardens

A stunning barn conversion offering over 5500 sq ft of accommodation set in semi undulating countryside with views over open farmland and surrounding woodland no near neighbours. The property boasts an abundance of natural light, exposed timbers, spacious rooms and benefits from a ground source heat pump. The attention to detail within this conversion is excellent. From the moment you enter this barn you get a great sense of space. Features include engineered oak flooring, French limestone, black limestone and underfloor heating, not to mention the exposed timbers and flint and brick walls. The vaulted accommodation is set over two floors and comprises an impressive reception hall with floor to ceiling windows, overlooking the inner courtyard. A stunning open plan sitting room with a wood burner and a bespoke fitted kitchen with granite worktops and an Aga. The reception hall wing continues in to a fine sitting room with a wood burner and access to a study. The bedroom wing comprises three bedrooms, a fabulous shower and bathroom, gym, utility room and boiler room. The first floor is access via a bespoke made solid oak staircase. This floor serves three en suite bedrooms.

Outside the grounds are a blank canvas for the keen gardener. There is a walled courtyard, a detached triple cart lodge with double garage and a partially renovated detached studio cottage. The cottage is in need of some work and currently comprises on an open plan vaulted room.
 

WITTON White House Barn is situated within the popular hamlet of Witton and lies just 2.5 miles (approx.) from the bustling market town of North Walsham. North Walsham is a popular market town, situated a few miles from the seaside town of Cromer and The Norfolk Broads Capital, Wroxham. The town offers many amenities including a range of supermarkets, leisure facilities, shops, primary and secondary schools, Sixth Form College, doctors' surgeries and a cottage hospital. There are regular bus and train services to the cathedral city of Norwich, where there are a wider range of facilities including an international airport and mainline rail links to London Liverpool Street and beyond. For the keen coast lover, the miles of sandy beached are within close proximately as is the popular seaside town of Mundesley.
 

ENERGY EFFICIENCY RATING D. The reference number or full certificate can be obtained from Sowerbys upon request.
To retrieve the Energy Performance Certificate for this property please visit https://www.epcregister.com/ and enter in the reference number. 

Important Information

  • This is a Freehold property.

Property Ref: 2-58578_100439027234

Share:

Similar Properties

Hassingham, Norwich

6 Bedroom Detached House | Guide Price £895,000

An impressive six bedroom property that offers an abundance of character, beautiful grounds that extend to approximately...

Happisburgh Common

5 Bedroom Detached House | £865,000

A charming FIVE BEDROOM GRADE II LISTED COUNTRY HOUSE with ACCOMPANYING THREE BEDROOM GRADE II LISTED 17th CENTURY BARN....

Lugs Lane, Broome, Bungay

5 Bedroom Detached House | Guide Price £850,000

A beautifully presented former farmhouse situated in a semi-rural location surrounded by open countryside. The property...

Keswick, Norwich

6 Bedroom Cottage | Offers in excess of £1,000,000

A handsome and sympathetically extended six bedroom period property in a prime location close to the City. Entrance hall...

Honing Road, Worstead

5 Bedroom Detached House | Guide Price £1,250,000

Fabulous Georgian property set in four acres of gardens and paddocks with outbuildings. The house offers grand size room...

Weston Longville, Norwich

8 Bedroom Manor House | Offers in excess of £1,350,000

A rare opportunity to acquire this fine Grade II listed eight bedroom country house set in approximately 15 acres (sts)...

Sowerbys Norwich (Norwich)

Queen Street, Norwich, Norfolk, NR2 4SX

01603 761441

How much is your home worth?

Use our short form to request a valuation of your property.

Request a Valuation

Mortgage Calculator

Amount Borrowed: £
Total Amount Repayable: £
Total Monthly Payment: £
©2026 The Guild of Property Professionals. All rights reserved. Terms and Conditions | Privacy Policy | Cookie Policy | Complaints Policy | Members Login
The Guild of Property Professionals Trading Address: 121 Park Lane, London W1K 7AG. GPEA Limited. Registered in England & Wales.  Company No: 02819824.  Registered Office Address: 2 St. Stephen's Court, St. Stephen's Road, Bournemouth, Dorset, England, BH2 6LA.  VAT Registration No: 576 8795 61
Book a Property Valuation Update Cookies Preferences