Weston Longville, Norwich

Offers in excess of
£1,350,000

8 Bedroom Manor House for sale in Norwich

8 8
  • Fine Grade II Listed Country House
  • Eight Bedrooms
  • Versatile Accommodation
  • Grade II Listed Folly
  • 15 Acres (sts) of Parkland Style Grounds
  • Lake & Sweeping Lawns
  • In Need of Updating
  • Planning For A New Wing Granted

A rare opportunity to acquire this beautiful Grade II listed country house in need of updating.

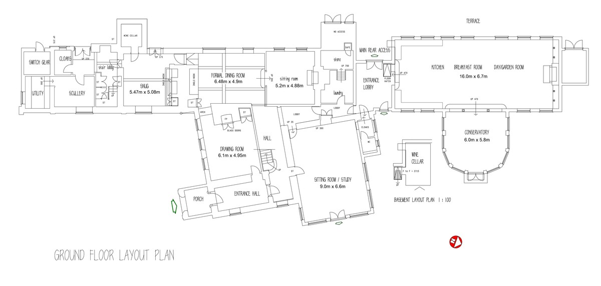
Weston Hall is a substantial and imposing Grade II listed country house situated in beautiful grounds with river frontage that extends to approximately 15 acres (sts). The property itself offers an abundance of character and versatile accommodation. In need of updating. The accommodation is set over three floors and currently offers eight bedrooms and eight bathrooms. Planning consent has been granted for a new wing and for the demolition of the existing single storey kitchen wing. Work has already started. Opportunity for a new owner to carry on with the development approved or work out a new layout proposal. For further information in this regard, and any others works required, please contact Sowerbys.

Situated in a beautiful parkland style settings, the grounds are a fabulous feature of this property. Extending to approximately 15 acres (sts), the grounds comprise an impressive wrought iron entrance that leads on to a sweeping gravelled drive. To the front there is a lake with a covered seating area, sweeping lawns, mature trees, a charming Folly and access to the River Wensum and fine views of the Wensum Valley.

Please note the property does not have a kitchen currently and the floor plan is only indicative.
 

WESTON LONGVILLE Weston Longville is an active village, situated just 8 miles from the outskirts of the Cathedral City of Norwich, with amenities including a gastro pub, golf club and the Lakeside Country Club in nearby Lyng and a local Equestrian Centre. The area is also in catchment for the reputable Reepham High School and there is a nearby primary school. The nearby village of Lenwade has a good local riverside pub, Post Office and general shop, coffee shops and doctor&146;s surgery. The Marriott's Way cycle path, which connects Norwich to Reepham, passes through the village. The cathedral city of Norwich has everything you would desire of a vibrant regional capital. You will find a modern cultural city with beautiful heritage, vibrant nightlife, sophisticated shopping and mouth-watering restaurants. There are also a number of sought after schools and colleges. Norwich offers access to all the major rail links and Norwich International Airport. 

ENERGY EFFICIENCY RATING An Energy Performance Certificate is not required for this property due to it being Grade II Listed. For more information please visit: http://www.surveyandtest.com/what-do-epc-changes-means-for-agents 

Important Information

  • This is a Freehold property.

Property Ref: 2-58578_100439020441

Share:

Similar Properties

Honing Road, Worstead

5 Bedroom Detached House | Guide Price £1,250,000

Fabulous Georgian property set in four acres of gardens and paddocks with outbuildings. The house offers grand size room...

Keswick, Norwich

6 Bedroom Cottage | Offers in excess of £1,000,000

A handsome and sympathetically extended six bedroom period property in a prime location close to the City. Entrance hall...

Witton, Norfolk

6 Bedroom Barn Conversion | Guide Price £950,000

Stunning barn conversion with partially renovated separate studio cottage. Impressive entrance hall, open plan sitting r...

Swainsthorpe, Norwich

5 Bedroom Detached House | POA

An impressive and substantial five bedroom country house that is set in a semi-rural location with grounds that extend t...

Sowerbys Norwich (Norwich)

Queen Street, Norwich, Norfolk, NR2 4SX

01603 761441

How much is your home worth?

Use our short form to request a valuation of your property.

Request a Valuation

Mortgage Calculator

Amount Borrowed: £
Total Amount Repayable: £
Total Monthly Payment: £
©2026 The Guild of Property Professionals. All rights reserved. Terms and Conditions | Privacy Policy | Cookie Policy | Complaints Policy | Members Login
The Guild of Property Professionals Trading Address: 121 Park Lane, London W1K 7AG. GPEA Limited. Registered in England & Wales.  Company No: 02819824.  Registered Office Address: 2 St. Stephen's Court, St. Stephen's Road, Bournemouth, Dorset, England, BH2 6LA.  VAT Registration No: 576 8795 61
Book a Property Valuation Update Cookies Preferences