Buildings with Full PP, Northgate, Pinchbeck, PE11 3TA

Offers Over
£250,000

Residential Development for sale in Northgate

LOCATION
** New Build development - Very pleasant semi-rural setting with field views - Land area approximately 4,349m2 - Additional land available for paddocks– by separate negotiation **

The land and buildings are located at Wisteria Farm, Northgate, approximately 1 mile from Pinchbeck village centre heading towards West Pinchbeck. Pinchbeck offers a good variety of local shops and amenities including Butchers, ‘Spar’ shops, Pharmacy, Doctors surgery, Take-aways and Hairdressers, as well as a Primary School, and also lies only 2 miles from Spalding, which then provides further Shopping and leisure facilities, as well as good access to Peterborough, where onward fast train journeys are available to London Kings Cross (within 50 minutes). Spalding Railway Station also connects to Lincoln and Doncaster and beyond to the North.

DESCRIPTION
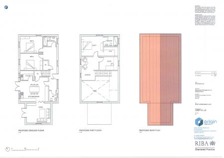
The site extends to approximately 4,349m2 and includes the entrance roadway and is shown edged red on the attached Promap plan included in these Particulars (for identification purposes only). Wisteria House, which lies adjacent to part of the site, is in separate ownership.

NOTES:
• The purchaser will be responsible for the costs of removing all existing buildings.
• The purchaser will be required to fence the West and North boundaries with Lincolnshire Post and 3 Rail fencing within 3 months of purchase. All hedging must be set 1.5m inside the fenced boundaries, and Trees planted no closer than 5m inside the fenced boundaries.
• A Right of access to the Pumping Station is reserved over the access roadway at all times.
• The vendor will cease to use the existing access upon completion of a sale.
• There are additional parcels of land to the east and west which could be available for sale by separate negotiation – outlined green and blue. A development overage will apply to these areas.

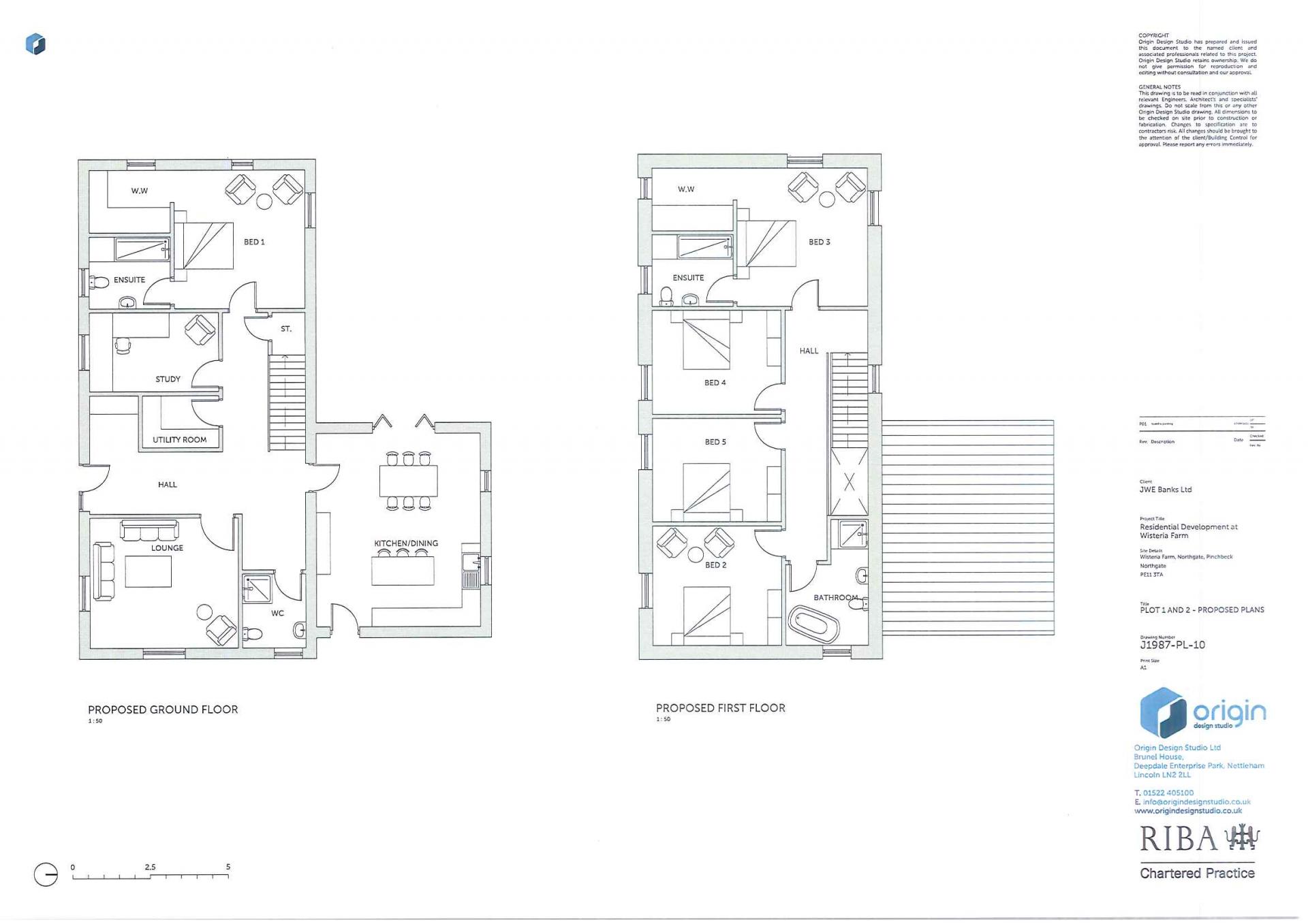
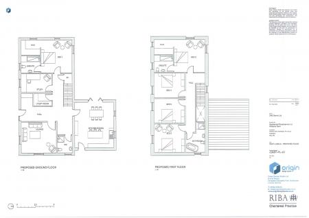
Full Planning Consent was granted by South Holland District Council - Reference No: H14-0810-23 on 6th December 2023, for the buildings to be demolished and the land being developed for 3 detached Executive homes. A copy of the formal Planning Consent is available from the Council’s website - www.sholland.gov.uk – or is available from the Agent’s Spalding Office. Included in these Particulars is a copy of the plans determined by the Planning Application which show the designs of the properties.

NB : There are a number of pre-commencement conditions attached to the planning applications and the purchaser will be responsible for compliance with these and all costs associated with all planning conditions.

SERVICES
Mains electricity and water are available to the site. However, proposed purchasers must check the availability by making their own enquiries with the relevant Utility providers. Mains drainage is available in Northgate.

TERMS
R. Longstaff & Co LLP, their clients and any joint agents accept no responsibility for any statement that may be made in these particulars. They do not form part of any offer or contract and must not be relied upon as statements or representations of fact. They are not authorised to make or give any representations or warranties in relation to the property either here or elsewhere, either on their own behalf or on behalf of their client(s) or otherwise. All areas, measurements or distances are approximate. All text, photographs and plans are for guidance only and are not necessarily comprehensive. It should not be assumed that the property has all necessary planning, building regulation or other consents, and no guarantee is given for any apparatus, services, equipment, or facilities, being connected nor in working order. Purchasers must satisfy themselves of these by inspection or otherwise.

PLANNING
Full Planning Consent was granted by South Holland District Council - Reference No: H14-0810-23 on 6th December 2023, showing the land developed for three detached houses. A copy of the formal Planning Consent is available from the Council’s website - www.sholland.gov.uk – or is available from the Agent’s Spalding Office. Included in these Particulars is a copy of the plans determined by the Planning Application which show the designs of the properties.

NB : There are a number of pre-commencement conditions attached to the planning applications and the purchaser will be responsible for compliance with all planning conditions, and for all costs associated thereto.

Any queries in respect of Planning matters should be addressed direct to South Holland District Council – Planning Department - CALL: 01775 761161 EMAIL: planningadvice@sholland.gov.uk

OTHER
SERVICES Mains electricity and water are presently connected to the site, however, proposed purchasers must check the availability of services they require by making their own enquiries with the relevant Utility providers. Mains drainage is available in Northgate via a Vacuum pumped mains drainage system, the Pumping Station for which is located adjacent to the entrance of the site.

LOCAL AUTHORITIES Any queries in respect of Planning matters should be addressed direct to South Holland District Council – Planning Department - CALL: 01775 761161
County & Highways: Lincolnshire County Council, County Offices, Newland, Lincoln LN1 1YL
CALL: 01522 552222
Electricity: National Grid - New Supplies - Customer Application Team, Tollend Road, Tipton, DY4 0HH CALL: 0121 623 9007
Water & Sewerage: Anglian Water Customer Services, PO Box 10642, Harlow, Essex, CM20 9HA CALL: 08457 919155

VIEWING
Viewings are by appointment with a copy of particulars to hand. We make every effort to produce accurate and reliable details but if there are any points you would like to discuss prior to making your inspection, please contact our office. We suggest you contact us to check the availability of this property prior to travelling to the area in any case.

Property Ref: 101505015024

Share:

Similar Properties

Old Main Road, Fosdyke, PE20 2BU

Land | Guide Price £250,000

** Located close to the centre of Fosdyke village in an established residential area - 4 plots – with Outline, Reserved...

Land with Full PP for 2 dwellings, Adj. 51 The Poplars, PE11 2RJ

Land | Guide Price £250,000

** Situated on Cowbit Road – Land within an established residential area overlooking the River Welland, a short distance...

West Street, Long Sutton

3 Bedroom Detached House | £250,000

Modern extended 3 bedroom detached house convenient for nearby town amenities offering updated kitchen/diner, dining roo...

South Drove, Quadring Fen

2 Bedroom Detached Bungalow | Guide Price £255,000

Located in a rural setting with expansive open views, 'Lyndene' is ideal for those wanting a quiet setting. The property...

Oakley Drive, Spalding

3 Bedroom Detached House | £255,000

Well presented 3 bedroom detached property set on a corner plot within walking distance of the town centre. Accommodatio...

Siltside, Gosberton Risegate

2 Bedroom Detached Bungalow | £259,950

Superbly presented two bedroom detached bungalow situated in semi-rural location with accommodation comprising of entran...

Longstaff (Spalding)

5 New Road, Spalding, Lincolnshire, PE11 1BS

01775 766766

How much is your home worth?

Use our short form to request a valuation of your property.

Request a Valuation

Mortgage Calculator

Amount Borrowed: £
Total Amount Repayable: £
Total Monthly Payment: £
©2026 The Guild of Property Professionals. All rights reserved. Terms and Conditions | Privacy Policy | Cookie Policy | Complaints Policy | Members Login
The Guild of Property Professionals Trading Address: 121 Park Lane, London W1K 7AG. GPEA Limited. Registered in England & Wales.  Company No: 02819824.  Registered Office Address: 2 St. Stephen's Court, St. Stephen's Road, Bournemouth, Dorset, England, BH2 6LA.  VAT Registration No: 576 8795 61
Book a Property Valuation Update Cookies Preferences