Land with Full PP for 2 dwellings, Adj. 51 The Poplars, PE11 2RJ

Guide Price
£250,000

Land for sale in Spalding

  • Situated on Cowbit Road – land with Full PP for 2 dwellings
  • Overlooking the River Welland

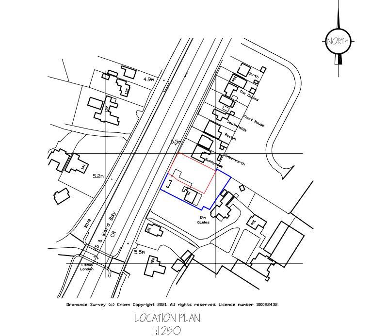
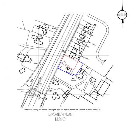
LAND The land extends to approximately 825m². The area offered for sale is part of the areas shown edged with a thick red line on the determined Planning Application plan included in these Particulars (for identification purposes only). The Plots are broadly rectangular in shape and have a frontage of 20m, widening to approx. 23m and have a maximum depth of 38m.

At the present time the property comprises part of the garden to the Vendors' adjacent residential property. New accesses will be required to be formed to Cowbit Road to serve the plots.

NOTES
• Rights for services to the Vendors' retained land are reserved.
• The purchaser will be responsible for the costs of removal of any remaining trees/stumps on the plot.
• No impact driven Piling – Trench Fill, Raft or Mini Augured permitted.
• Plant used onsite to be a maximum of 6 Tonnes.
• Any amendment or new application must be fully approved by the Vendor prior to any Planning application being submitted.

PLANNING CONSIDERATIONS
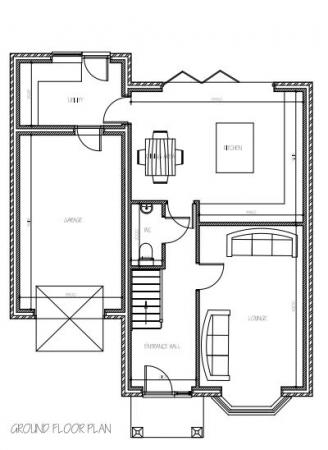
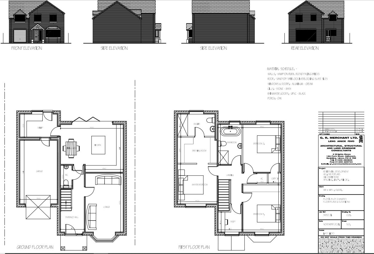
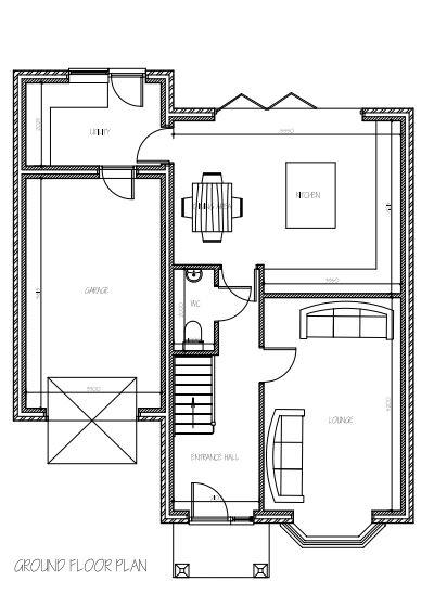
Full Planning Consent was granted by South Holland District Council - Reference No:H16-1026-24 on 31 January 2025, showing the land developed for 2 No. 3 bedroom detached houses. A copy of the formal Planning Consent is available from the Council's website - www.sholland.gov.uk – or is available from the Agent's Spalding Office. Included in these Particulars is a copy of the plans determined by the Planning Application which show the designs of the properties.

NB : The purchaser will be responsible for compliance with all Planning Conditions, and for all costs associated thereto.

Any queries in respect of Planning matters should be addressed direct to South Holland District Council – Planning Department - CALL: 01775 761161 EMAIL: planningadvice@sholland.gov.uk

TENURE Freehold with vacant possession.

SERVICES Mains electricity, gas, drainage and water are available in the locality. However, proposed purchasers must check the availability by making their own enquiries with the relevant Utility providers.
LOCAL AUTHORITIES

District & Planning: South Holland District Council, Priory Road, Spalding, Lincs. PE11 2XE
CALL: 01775 761161

Water & Sewerage: Anglian Water Customer Services, PO Box 10642, Harlow, Essex, CM20 9HA
CALL: 08457 919155

County & Highways: Lincolnshire County Council, County Offices, Newland, Lincoln LN1 1YL
CALL: 01522 552222

Electricity: Western Power Distribution - New Supplies - Customer Application Team,
Tollend Road, Tipton, DY4 0HH
Email: wpdnewsuppliesmids@westernpower.co.uk
CALL: 0121 623 9007

Gas: Cadent Gas www.cadentgas.com Email: wecare@cadentgas.com
CALL: 0345 835 1111 

Property Ref: 101505013815

Share:

Similar Properties

Old Main Road, Fosdyke, PE20 2BU

Land | Guide Price £250,000

** Located close to the centre of Fosdyke village in an established residential area - 4 plots – with Outline, Reserved...

Buildings with Full PP, Northgate, Pinchbeck, PE11 3TA

Residential Development | Offers Over £250,000

** New Build development - Very pleasant semi-rural setting with field views - Land area approximately 4,349m2 - Additio...

West Street, Long Sutton

3 Bedroom Detached House | £250,000

Modern extended 3 bedroom detached house convenient for nearby town amenities offering updated kitchen/diner, dining roo...

South Drove, Quadring Fen

2 Bedroom Detached Bungalow | Guide Price £255,000

Located in a rural setting with expansive open views, 'Lyndene' is ideal for those wanting a quiet setting. The property...

Oakley Drive, Spalding

3 Bedroom Detached House | £255,000

Well presented 3 bedroom detached property set on a corner plot within walking distance of the town centre. Accommodatio...

Siltside, Gosberton Risegate

2 Bedroom Detached Bungalow | £259,950

Superbly presented two bedroom detached bungalow situated in semi-rural location with accommodation comprising of entran...

Longstaff (Spalding)

5 New Road, Spalding, Lincolnshire, PE11 1BS

01775 766766

How much is your home worth?

Use our short form to request a valuation of your property.

Request a Valuation

Mortgage Calculator

Amount Borrowed: £
Total Amount Repayable: £
Total Monthly Payment: £
©2026 The Guild of Property Professionals. All rights reserved. Terms and Conditions | Privacy Policy | Cookie Policy | Complaints Policy | Members Login
The Guild of Property Professionals Trading Address: 121 Park Lane, London W1K 7AG. GPEA Limited. Registered in England & Wales.  Company No: 02819824.  Registered Office Address: 2 St. Stephen's Court, St. Stephen's Road, Bournemouth, Dorset, England, BH2 6LA.  VAT Registration No: 576 8795 61
Book a Property Valuation Update Cookies Preferences