Sunnyside South, ex bed and breakfast with one acre, Forncett End, Norfolk

£775,000

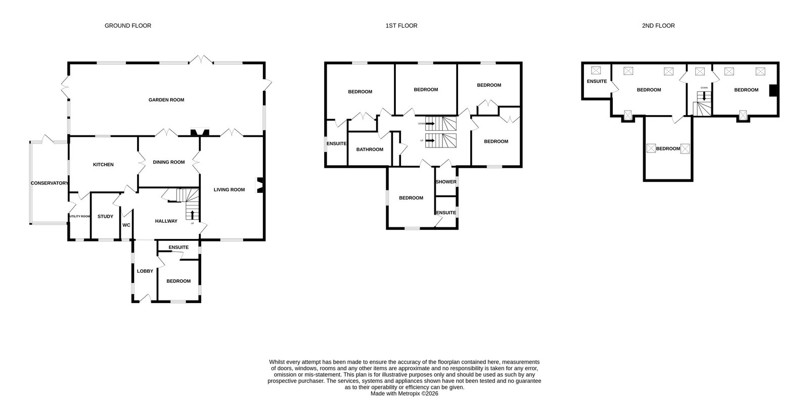
9 Bedroom Detached House for sale in Norwich

3 9 7
  • Sunnyside South is a substantial former bed and breakfast, now offered as a spacious and versatile family home
  • Extending to approximately 4,000 sq ft the property is set within a generous plot of over one acre with double garage
  • The property enjoys uninterrupted field views to both the front and rear, creating a peaceful and private rural setting
  • The accommodation comprises nine well-proportioned bedrooms, each benefiting from either en-suite or private bathroom facilities
  • The property benefits from a bright and airy conservatory, perfectly positioned to overlook the swimming pool and established gardens
  • This inviting space provides an ideal setting for relaxation, entertaining or a games room while enjoying the surrounding countryside
  • Opportunity to enjoy countryside living with excellent connectivity, renowned for its peace and quiet free from heavy traffic or urban noise
  • Sunnyside South presents a unique opportunity to acquire a substantial property in a highly desirable rural location
  • Nearby market towns including Wymondham, Diss, and Attleborough provide further conveniences
  • See our full online listing for further details including flood risk, broadband speed and other material information

 

Sunnyside South is a substantial former bed and breakfast, now offered as a spacious and versatile family home, extending to approximately 4,000 sq ft. Set within a generous plot of over one acre, the property enjoys uninterrupted field views to both the front and rear, creating a peaceful and private rural setting.

The accommodation comprises nine well-proportioned bedrooms, each benefiting from either en-suite or private bathroom facilities. All rooms are equipped with WiFi connectivity, making the property ideally suited for continued hospitality use, multi-generational living, or a large family residence. The property is fitted with a floor safe.

A standout feature of the home is the bright and airy conservatory, perfectly positioned to overlook the swimming pool and established gardens. This inviting space provides an ideal setting for relaxation, entertaining or a games room while enjoying the surrounding countryside. Planning permission exists for a pool enclosure and plans can be found on-line or at our offices. 

Situated in the tranquil village of Forncett End, in the heart of South Norfolk, Sunnyside South offers a rare opportunity to enjoy countryside living with excellent connectivity. The area is renowned for its peace and quiet, free from the disturbance of heavy traffic or urban noise.

The historic city of Norwich is within easy driving distance, offering a wide range of shopping, dining, and cultural amenities. Nearby market towns including Wymondham, Diss, and Attleborough provide further conveniences, along with regular rail services to Norwich and Cambridge.

For leisure and recreation, the property is ideally located within reach of a variety of attractions. Snetterton Circuit is just a 15-minute drive away, while Bressingham Steam Museum, Banham Zoo, and Wymondham Abbey are all close by. The stunning Norfolk coastline, including the popular North Norfolk seaside town of Cromer, can be reached in approximately an hour.

The renowned Norfolk Broads are also within easy reach, offering opportunities for boating, walking, and wildlife exploration.

Sunnyside South presents a unique opportunity to acquire a substantial property in a highly desirable rural location, with flexible accommodation and excellent lifestyle potential. 

Tenure: Freehold    EPC: C   Council Tax: G

Entrance Hall - 4.04m x 1.63m (13'3" x 5'4")

Bedroom with ensuite - 2.79m x 3.3m (9'2" x 10'10")

Ensuite - 2.79m x 1.3m (9'2" x 4'3")

Reception Hall - 4.04m x 3.4m (13'3" x 11'2")

Study - 3.1m x 1.91m (10'2" x 6'3")

Kitchen/Breakfast Room - 4.52m x 3.96m (14'10" x 12'12")

Utility Room - 3.1m x 1.45m (10'2" x 4'9")

Conservatory - 5.66m x 2.46m (18'7" x 8'1")

Dining Room - 4.04m x 3.4m (13'3" x 11'2")

Living Room - 6.91m x 4.19m (22'8" x 13'9")

Garden Room - 12.73m x 4.72m (41'9" x 15'6")

Landing

Bedroom with Ensuite - 4.5m x 3.71m (14'9" x 12'2")

ensuite - 3.12m x 1.45m (10'3" x 4'9")

Bedroom with ensuite - 4.04m x 2.92m (13'3" x 9'7")

Ensuite - 2.84m x 1.42m (9'4" x 4'8")

Bedroom - 4.06m x 3.4m (13'4" x 11'2")

Bedroom - 4.19m x 2.72m (13'9" x 8'11")

Bedroom - 3.25m x 2.82m (10'8" x 9'3")

Bathroom - 2.9m x 2.26m (9'6" x 7'5")

Landing

Bedroom with ensuite - 4.9m x 3.48m (16'1" x 11'5")

Ensuite - 2.34m x 1.88m (7'8" x 6'2")

Bedroom - 4.29m x 3.48m (14'1" x 11'5")

Bedroom - 5.41m x 3.18m (17'9" x 10'5")

 

Outside

Plot approximately one acre

Double Garage

Swimming Pool

Ample Parking

 

AGENT’S NOTES -

Planning :  Details, if any, can be found on the South Norfolk Council Planning website. Planning permission exists for a pool enclosure and plans can be found on-line or at our offices. 

Covenants, Rights and Restrictions:  Please enquire with the selling agents for any information.

Broadband :  Superfast FTTC.  See Ofcom checker and Openreach website for more details.

Mobile phone :  See Ofcom checker for coverage details.

Flood risk :  Very Low risk surface, rivers and seas according to Gov.uk website

Services :  Mains Electricity, Water, Sewerage and Oil Heating 

Local Authority :  Norfolk County Council and South Norfolk Council

Council Tax Band :  G

Tenure : Freehold

EPC : C

Solar panels installed 2004, benefitting from Fit payments. Solar heating system installed but currently disfunctional.

Please note this is a probate property and probate is being applied for

The three houses nearby all share costs for maintaining the shared driveway and part of West Road immediately in front of all three properties. 

Norwich to Tilbury is a proposal to build a new 400 kilovolt (kV) electricity transmission connection buyers are advised to check proposed proximity to the property.    

 

Important Information

  • This is a Freehold property.
  • This Council Tax band for this property is: G

Property Ref: 1339279

Share:

Similar Properties

Oak Lodge, Norwich Road, Ashwellthorpe

4 Bedroom Detached House | Fixed Price £665,000

Moneyproperties welcome you to Oak Lodge in the picturesque village of Ashwellthorpe, a truly magnificent family home se...

Church Hill, Banham, NR16

3 Bedroom Detached House | Offers in region of £625,000

Moneyproperties are delighted to bring to market this idyllic Grade II listed Georgian home located in the heart of Banh...

Tabernacle Lane, Forncett St Peter (flexible home with enormous potential). NR16 1LE

4 Bedroom Detached House | Offers in region of £620,000

Rich in heritage and character, the Old Trowel & Hammer offers a rare opportunity to own a historic former public house...

Abbeyway, Georgian Town House with iconic Wymondham Abbey Views, Vicar Street, Wymondham, Norfolk

5 Bedroom Semi-Detached House | Offers in region of £795,000

Moneyproperties proudly present this fine Grade II listed period home, constructed of traditional brick and flint, is si...

The Willows, Wramplingham. Beautiful Family Home with Landscaped Gardens, Annexe and Potential Building Plot (SSTP)

6 Bedroom Detached House | Guide Price £945,000

GUIDE PRICE £945,000An outstanding opportunity for large or extended families, this unique property offers up to 6 bedro...

The Street, Tibenham, NR16

5 Bedroom Detached House | £1,100,000

Moneyproperties are proud to be marketing this idyllic Grade II listed detached farm house in the heart of the South Nor...

Money Properties (Wymondham)

17/18 Market Place, Wymondham, Norfolk, NR18 0AX

01953 423 006

How much is your home worth?

Use our short form to request a valuation of your property.

Request a Valuation

Mortgage Calculator

Amount Borrowed: £
Total Amount Repayable: £
Total Monthly Payment: £
©2026 The Guild of Property Professionals. All rights reserved. Terms and Conditions | Privacy Policy | Cookie Policy | Complaints Policy | Members Login
The Guild of Property Professionals Trading Address: 121 Park Lane, London W1K 7AG. GPEA Limited. Registered in England & Wales.  Company No: 02819824.  Registered Office Address: 2 St. Stephen's Court, St. Stephen's Road, Bournemouth, Dorset, England, BH2 6LA.  VAT Registration No: 576 8795 61
Book a Property Valuation Update Cookies Preferences