Newton Park Homes, Newton St Faith, Norwich

Asking Price
£80,000
Under Offer
This property listing is now Under Offer

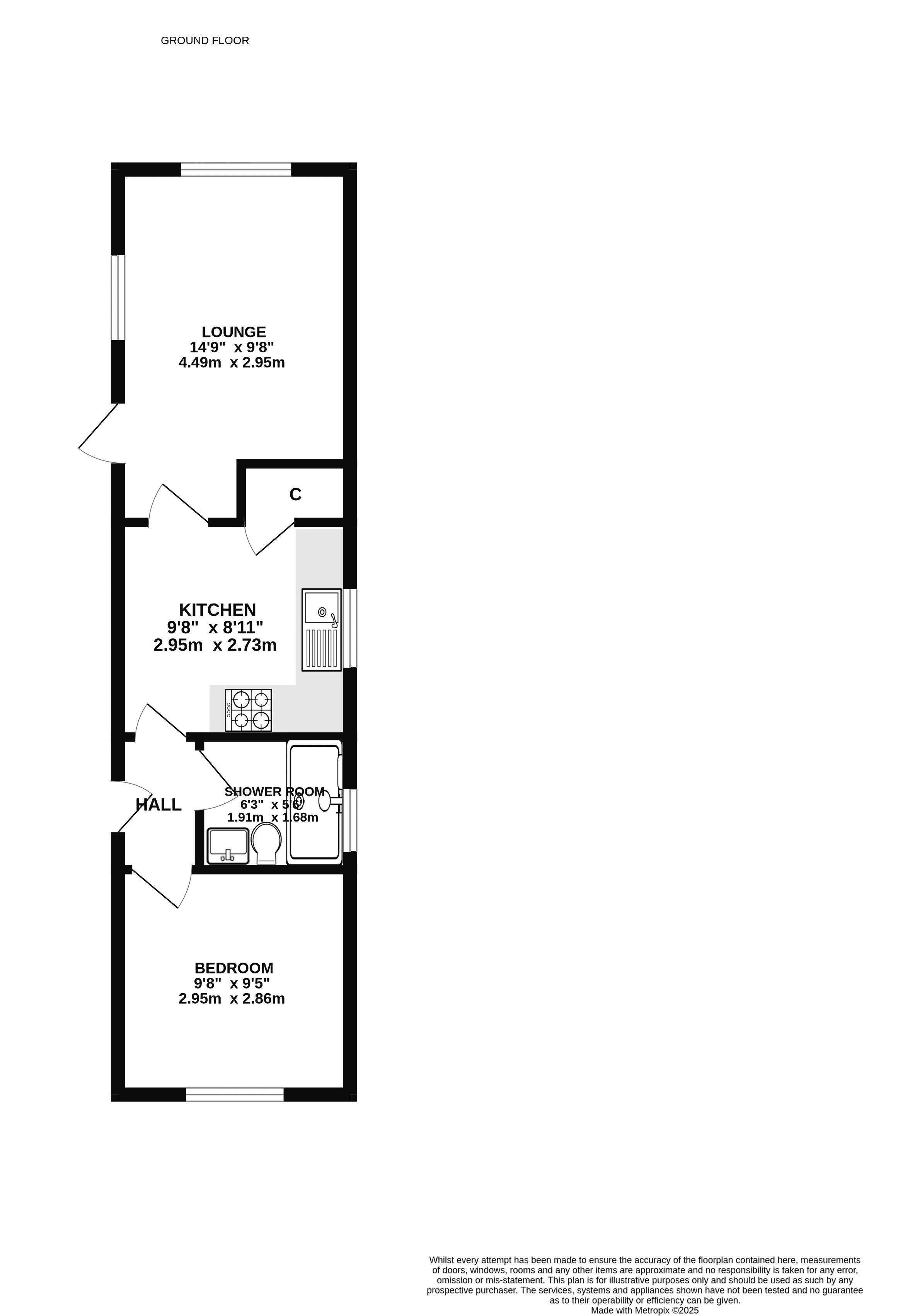
1 Bedroom Park Home for sale in Norwich

1 1 1
  • Modern Park Home
  • Re-fitted Shower Room
  • Modern Fitted Kitchen with Appliances
  • Popular Local Development
  • Ample Off Road Parking
  • Generous Outside Space
  • Over 45's Development
  • Pitch Fee £185.89 PCM
  • One Well Pro-Portioned Bedroom
  • EPC Rating - Not Applicable / Council Tax Band A

Nestled in a quiet corner of the charming village of Newton St Faith, Newton Park offers a tranquil and friendly environment, perfect for those seeking a gentler pace of life. Surrounded by beautiful countryside and a welcoming community, the park provides a peaceful retreat while still being conveniently connected. Residents can enjoy the best of both worlds, relaxed village living with easy access to a vibrant city known for its magnificent cathedral, rich heritage, thriving arts scene, and a wide array of independent shops, high street brands, restaurants. The property itself benefits from a generous sitting room, a modern fitted Kitchen, a re fitted shower room and a well-proportioned bedroom. There are also wrap around gardens and early viewing is essential to appreciate this lovely home. Please note there is a pitch fee of £185.98 PCM and Newton Park is only suitable for over 45’s.

Important Information

  • This is a Share of Freehold property.

Property Ref: EAXML11851_12732957

Share:

Similar Properties

Drayton Hall Park, Drayton, Norwich

2 Bedroom Park Home | Offers in excess of £80,000

***ATTRACTIVE PARK HOME*** Iconic are pleased to bring to the market this attractive two bedroom park home situated in D...

Newton Park Homes, Norwich

2 Bedroom Park Home | Asking Price £79,995

We are delighted to bring to the market this immaculate two bedroom park home situated in Newton St. Faith. Occupying a...

Drayton Hall Park, Drayton, Norwich

1 Bedroom Park Home | Guide Price £70,000

***GUIDE PRICE £70,000 - £80,000***We are pleased to present this well-located one bedroom home, set within the sought a...

Laurel Court, Thorpe St Andrew, Norwich

1 Bedroom Apartment | Asking Price £90,000

Beautiful Over-55s First Floor Retirement Apartment – Highly Sought-After Thorpe St Andrew. Situated in the desirable su...

Dalrymple Way, Norwich

1 Bedroom Ground Floor Flat | Offers in excess of £100,000

Iconic are delighted to market this one bedroom ground floor flat located in NR6. This great property benefits from it’s...

Aspen Road, Caister, Great Yarmouth

2 Bedroom House | Shared Ownership £105,000

***50% SHARED OWNERSHIP*** We are delighted to market this two bedroom shared ownership property in Caister On Sea. This...

Iconic (Norwich)

Taverham, Norwich, Norfolk, NR8 6LE

01603 261104

How much is your home worth?

Use our short form to request a valuation of your property.

Request a Valuation

Mortgage Calculator

Amount Borrowed: £
Total Amount Repayable: £
Total Monthly Payment: £
©2025 The Guild of Property Professionals. All rights reserved. Terms and Conditions | Privacy Policy | Cookie Policy | Complaints Policy | Members Login
The Guild of Property Professionals Trading Address: 121 Park Lane, London W1K 7AG. GPEA Limited. Registered in England & Wales.  Company No: 02819824.  Registered Office Address: 2 St. Stephen's Court, St. Stephen's Road, Bournemouth, Dorset, England, BH2 6LA.  VAT Registration No: 576 8795 61
Book a Property Valuation Update Cookies Preferences