Property with Exceptional Potential Ketts Oak, Hethersett, Norwich. NR9 3DJ

Guide Price
£225,000

2 Bedroom Semi-Detached House for sale in Norwich

1 2 1
  • Guide Price £250,000 - £275,000 Property with Exceptional Potential and No Forward Chain.
  • Idea for a young couple or first-time buyers looking to create their perfect first home.
  • Offering approximately 800 sq ft of living space and a generous 200ft x 30ft plot.
  • In need of updating hence the price includes gas central heating and double glazed windows
  • Outside you have a brick weave drive allowing parking for 3/4 cars, 145ft rear garden.
  • Adding a kitchen to the rear would open the property to the rear garden STPP.
  • Bedroom one could be split to obtain a third bedroom using partition walls.
  • 145 ft rear garden is split into two areas one with lawn another for growing produce.
  • Ideally placed for both Wymondham and Hethersett amenities including bus and rail services
  • See our full online listing for further details including flood risk, broadband speed and other material information

 



Property with Exceptional Potential and No Forward Chain. Guide Price £250,000 - £275,000.


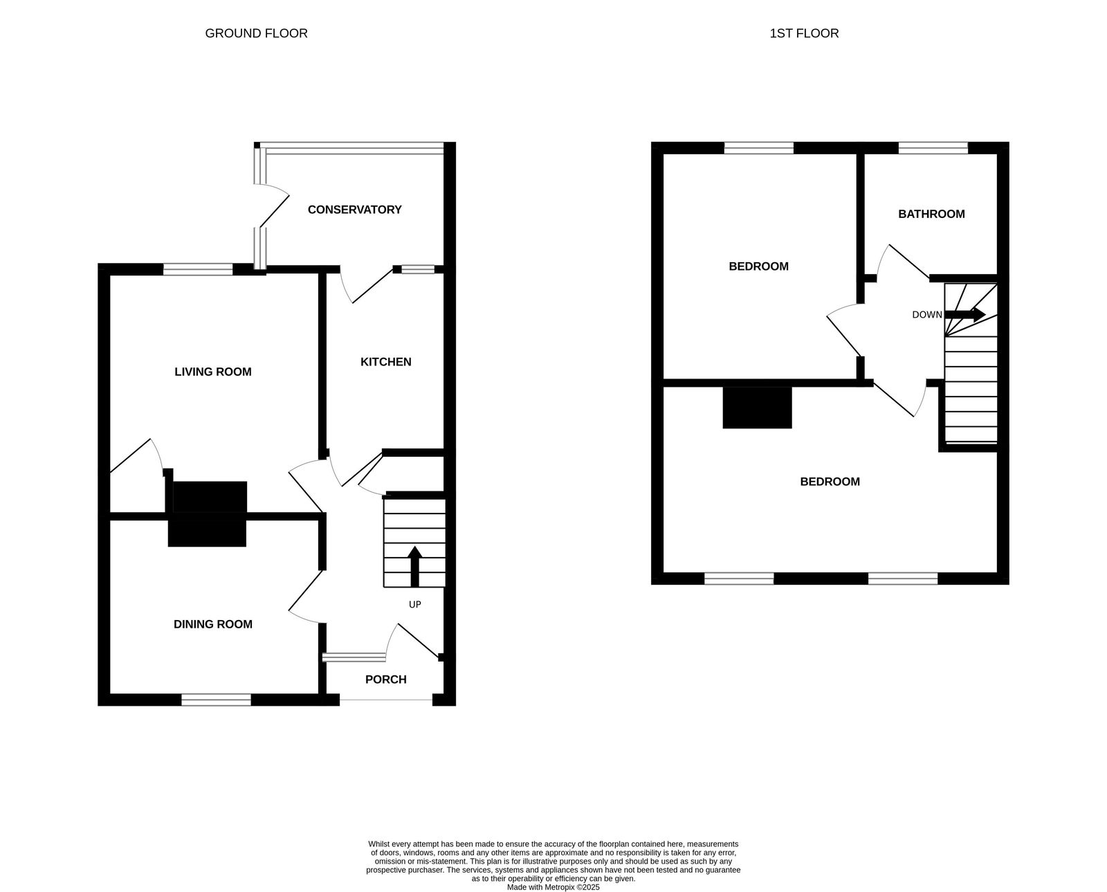
Moneyproperties are delighted to offer this two-bedroom semi-detached home, offering approximately 800 sq ft of living space, brimming with potential and available with no forward chain. Set on a generous plot measuring approximately 200ft x 30ft, the property boasts an impressive 145ft rear garden, an 18ft garage, and an additional 8ft storage shed.


To the front and side, a brick-weave driveway provides off-road parking for up to 3–4 vehicles. Internally, the property is in need of modernisation and currently comprises an entrance hall, separate dining room, living room, kitchen, and conservatory on the ground floor. Upstairs offers a spacious 17ft principal bedroom, a second bedroom, and a family bathroom.


This home would make an ideal project for a young couple or first-time buyers looking to create their perfect first home.


Ideally located between the popular Norfolk market town of Wymondham and the thriving village of Hethersett, the property benefits from excellent local amenities and highly regarded schools. The nearby Hethersett Park Farm Hotel offers a gym, swimming pool, and dining facilities. Wymondham provides regular rail services to Norwich and Cambridge, while Hethersett benefits from frequent bus services. Easy access to the A11 makes this an excellent location for commuters.


Tenure: Freehold   EPC: D    Council Tax: B 



Storm Porch - 1.57m x 0.61m (5'2" x 2'0")


Entrance Hall - 2.87m x 1.57m (9'5" x 5'2")


Dining Room - 3.4m x 2.57m (11'2" x 8'5")


Living Room - 3.58m x 3.15m (11'9" x 10'4")


Kitchen - 2.64m x 1.83m (8'8" x 6'0")


Conservatory - 2.74m x 1.75m (9'0" x 5'9")


Landing - 2.08m x 1.52m (6'10" x 5'0")


Bedroom One - 5.18m x 2.87m (17'0" x 9'5")


Bedroom Two - 3.4m x 2.95m (11'2" x 9'8")


Bathroom - 2.08m x 1.88m (6'10" x 6'2")


Outside


Plort Size - 60.96m x 9.14m (200'0" x 30'0")


Front Garden - 10.67m x 9.14m (35'0" x 30'0")


Brick Weave Drive - 16.76m x 6.1m (55'0" x 20'0")


Parking for 3/4 cars


Garage - 5.49m x 2.49m (18'0" x 8'2")


Rear Garden - 44.2m x 9.14m (145'0" x 30'0")


 


AGENT’S NOTES 


Planning :  Details, if any, can be found on the South Norfolk Council Planning website.


Covenants, Rights and Restrictions:  Please enquire with the selling agents for any information.


Broadband :  Superfast FTTC.  See Ofcom checker and Openreach website for more details.


Mobile phone :  See Ofcom checker for coverage details.


Flood risk :  Very low risk surface, rivers and seas according to Gov.uk website


Services :  Mains Gas and Electricity.


Local Authority :  Norfolk County Council and South Norfolk Council


Council Tax Band :  B


Tenure :  Freehold


EPC : TBC

Important Information

  • This is a Freehold property.
  • This Council Tax band for this property is: B

Property Ref: 680_1216815

Share:

Similar Properties

Granary Close, Wymondham, Norfolk

2 Bedroom Apartment | Guide Price £220,000

GUIDE £220,000- £240,000 Moneyproperties are delighted to present this rare opportunity to acquire a stylish, two-year-o...

Margaret Reeve Close, Wymondham, NR18 0ST

2 Bedroom Semi-Detached House | Offers in region of £220,000

This two bedroom coach house with garage is situated in a quiet cul de sac close to the town centre. The property compri...

Melton Close, Wymondham, NR18

2 Bedroom Terraced House | £210,000

Moneyproperties bring to market this two-bedroom mid terraced house ideal for first-time buyers, small families, or inve...

Penn Grove, Norwich, NR3

3 Bedroom Terraced House | Offers in region of £230,000

Moneyproperties bring to market this spacious three-bedroom terraced house enjoying views over open park land. The prope...

Orwell Close, Wymondham, NR18

2 Bedroom Semi-Detached Bungalow | £235,000

Moneyproperties bring to market this two-bedroom semi-detached bungalow located on a quiet cul de sac close to local ame...

The Old Gun Shop in town centre location with off -road parking for 2/3 cars

Commercial Property | Offers in region of £250,000

Moneyproperties present a unique opportunity to purchase the Gun Shop in the town Centre of Wymondham beside the towns m...

Money Properties (Wymondham)

17/18 Market Place, Wymondham, Norfolk, NR18 0AX

01953 423 006

How much is your home worth?

Use our short form to request a valuation of your property.

Request a Valuation

Mortgage Calculator

Amount Borrowed: £
Total Amount Repayable: £
Total Monthly Payment: £
©2026 The Guild of Property Professionals. All rights reserved. Terms and Conditions | Privacy Policy | Cookie Policy | Complaints Policy | Members Login
The Guild of Property Professionals Trading Address: 121 Park Lane, London W1K 7AG. GPEA Limited. Registered in England & Wales.  Company No: 02819824.  Registered Office Address: 2 St. Stephen's Court, St. Stephen's Road, Bournemouth, Dorset, England, BH2 6LA.  VAT Registration No: 576 8795 61
Book a Property Valuation Update Cookies Preferences