Inwardleigh, Okehampton - Devon

£845,000
Sold
This property listing is now Sold

3 Bedroom Country House for sale in Okehampton

3 2
  • Delightful and very well presented country property
  • Thatched characterful house
  • Grade II Listed
  • 3 Bedrooms
  • 3 Reception rooms
  • Oak conservatory
  • Stables
  • Storage buildings with potential
  • Paddocks
  • Amenity woodland and Stream

Delightful period country property, full of character and charm, in a quiet rural location. Most appealing, extremely well presented 3 bedroom, 3 reception room, thatched country house. Storage buildings, stables, 4.66 acres of paddocks, amenity woodland and formal / vegetable gardens.

Okehampton is 5.5 miles to the southeast offering a wide range of shopping facilities including Waitrose supermarket, leisure centre, cinema, primary and secondary schools, golf course, a train station with a regular service to Exeter and access to the A30 dual carriage way. The property is very well located for the equestrian enthusiast, The Grange Equestrian Centre is 3 miles to the south, Southcott Cross Country Course is 11 miles to the southwest and Rathkenny Stud and Equestrian Centre at Bondleigh is 11 miles to the northeast. Exeter is 33 miles east providing easy access to the M5, international airport and mainline railway with connections to London and extensive shopping and leisure facilities.

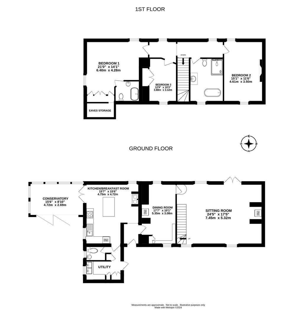
The house is a most appealing and characterful thatched 3 bedroom Grade II listed house which dates back to 1842. The charming and most appealing accommodation has many of its original features including, Oak lintels over the windows and doors, beamed ceilings, slate flagstone floors in the reception rooms and inglenook open fireplaces. In recent years the property has been updated with oak windows and doors, oak window sills, tiled floors in the utility and kitchen. A particular feature of the house is the triple aspect Oak Conservatory with full length bifold doors opening on the patio and garden. The accommodation benefits from double glazed windows and oil fired central heating, underfloor heating on the ground floor, on the first floor wooden floors and radiators. The accommodation briefly comprises; Front entrance hall, Kitchen / Breakfast Room, bespoke solid Oak kitchen units, granite worksurfaces and ceramic sink, inset faux inglenook housing the solid fuel Rayburn with a back boiler. Conservatory; Solid Oak triple aspect, full length bi-fold doors open to the patio and garden. Dining Room; a dual aspect room, inglenook fireplace, wood burner and bread oven, beam ceiling. Sitting Room; a dual aspect room with windows to the front and window and French doors to the rear, inglenook fireplace, multi fuel burning stove. On the First Floor; Large Landing, windows to the rear. Bedroom 2; Dual aspect with windows to front and rear, inset low level fireplace (dis-used), vaulted ceiling with exposed 'A' frames. Family Bathroom; Freestanding double ended bath, vanity unit, round bowl sink, w/c, large shower enclosure with rain head shower, window to the front and stained glass window to the landing giving borrowed light. Bedroom 3; Window to the front, built in airing cupboard. Master Bedroom; Vaulted ceiling with exposed 'A' frame beams, dual aspect with windows to the rear and side, fitted wardrobes and eaves storage area. En suite Bathroom; Freestanding slipper bath, round wash basin and w/c.

Outside - The property is accessed over a shared entrance lane, the house is found at the end of the lane and a gated entrance opens to a gravelled parking area at the front of the house, car port and barn. The gardens are arranged adjoining the parking area at the front, side and rear of the house. At the front is an enclosed lawn garden interspersed with a variety of flowering shrubs, trees and flowerbeds and well with stone surround top. The lawn leads around to the side of the house with steps onto the gravel patio at the side of the conservatory, which is ideal for alfresco dining and entertaining. A gravel path leads to the rear, cottage garden which gives a massive show and sea of colour during the spring and summer with 18 varieties of rose and over 30 clematis. A paved patio where the French Doors open from the sitting room, bordered by a small orchard of fruit trees. The path continues through an arch opening, Beech hedge with secluded seating area and

Summer House: - 2.45m x 1.22m (8'0" x 4'0" ) - A lawned area surrounds raised vegetable beds providing self sufficiency and fruit cages with strawberries, raspberries, blackcurrants, redcurrants, tayberries and blueberries and a Polytunnel: 5.15m x 3.50m (16'10" x 11'5") Below the polytunnel is an apple tree orchard and poultry enclosure with a wooden Shepards hut style chicken house. Steps lead to; the valley garden planted with a variety of specimen shrubs and trees leading to, stream running through the valley and a small area of amenity woodland on the opposite bank.

Car Port: - 5.41m x 4.70m (17'8" x 15'5" ) -

Adjoining Workshop And Store: - 7.01m x 4.85m (22'11" x 15'10" ) - Potential for conversion subject to the necessary consents

Mower Store: - 2.49m x 2.40m (8'2" x 7'10" ) -

Potting Shed: - 2.45m x 1.71m (8'0" x 5'7" ) -

Stable Block Comprising: -

Loose Box: - 3.43m x 3.40m (11'3" x 11'1" ) -

Feed/ Tack Room: - 3.40m x 1.64m (11'1" x 5'4" ) - Power and light connected

Log Store: - 7.40m x 2.10m (24'3" x 6'10" ) -

Storage / Kennel Building Which Comprises: -

Store Room: - 1.89m x 1.56m (6'2" x 5'1" ) -

Kennel Area: - 1.88m x 1.31m (6'2" x 4'3" ) - opening to:

Covered Run Area: - 2.89m x 1.89m (9'5" x 6'2" ) - Power and light connected

The Land - The level paddocks extend to approximately 2.43 acres enclosed within treelined hedging and horse netting. In the far paddock is a Field Shelter: 3.53m x 3.63m (11'6" x 11'10")
On the far, southern boundary the paddocks are complemented by 1 acre of amenity woodland of mature native hardwood trees. Along the western boundary is a 0.5 acre strip of woodland and a stream.

Services & Information - Water - Mains & Private Well
Drainage - Sewage Treatment Plant (2022)
Electricity - Mains
Heating - External Oil Fired Central Heating boiler, Multi Fuel Burning Stoves, Solid Fuel Rayburn
Broadband -Airband Connection checker.ofcom.org.uk
Mobile Availability - checker.ofcom.org.uk
Telephone - Openreach Connection checker.ofcom.org.uk
Council Tax Band - C
EPC - LSTD
Construction - Stone with a Thatched Roof
Access - Via a right of way over the lane from the parish road.
Public Right of Way - A non-intrusive footpath crosses the property

Local Authority - West Devon Borough Council, Kilworthy Park, Tavistock, PL19 0BZ 01822 813600.

Tenure - The property is offered for sale freehold with vacant possession on completion.

Viewing Arrangements - All viewings are to be accompanied and are strictly by appointment only with D. R. Kivell Country Property 01822 810810.

Agent's Notes - None of the services or appliances, plumbing, heating or electrical installations have been tested by the selling agent. Any maps used on the details are to assist identification of the property only and are not an indication of the actual surroundings, which may have changed since the map was printed. None of the statements contained in these particulars as to this property are to be relied on as statements or representations of fact. There are numerous power points throughout the property although not individually listed. All figures, measurements, floor plans and maps are for guidance purposes only. They are prepared and issued in good faith and are intended to give a fair description of the property but do not constitute any part of any offer or contract. The property is sold subject to and with the benefit of all outgoings, rights of way, easements and wayleaves there may be, whether mentioned in these general remarks and stipulations or particulars of sale or not.

Property Ref: 34360952

Share:

Similar Properties

Inwardleigh, Okehampton - Devon

3 Bedroom Country House | £845,000

*SOLD* Delightful period country property, full of character and charm, in a quiet rural location. Most appealing, extre...

Trebullett, Launceston - Cornwall

3 Bedroom Smallholding | £795,000

The Owners said "From David Kivell's first visit to our smallholding to the completion of its sale the service provided...

Lewdown, Okehampton - Devon

4 Bedroom Detached House | £795,000

Outstanding, well presented, individually designed 4 bedroom house, stables, building,13 acres of level paddocks, in an...

Heathfield, Tavistock - Devon

5 Bedroom Detached House | £850,000

Well presented, south facing, 4 bedroom period house and a 1 bedroom detached annexe. 2 acres of gardens and paddocks. L...

Altarnun, Launceston - Cornwall

6 Bedroom Detached House | £895,000

Characterful and well-presented 2 bedroom, 3 reception room house, two, 2 bedroom high specification holiday cottages in...

Lamellion, Liskeard - Cornwall

7 Bedroom Detached House | £895,000

Well-presented character 3 bedroom barn conversion and 2 popular holiday letting cottages. Indoor heated swimming pool a...

D. R. Kivell Country Property (Tavistock)

Tavistock, Devon, PL19 0NW

01822 810810

How much is your home worth?

Use our short form to request a valuation of your property.

Request a Valuation

Mortgage Calculator

Amount Borrowed: £
Total Amount Repayable: £
Total Monthly Payment: £
©2026 The Guild of Property Professionals. All rights reserved. Terms and Conditions | Privacy Policy | Cookie Policy | Complaints Policy | Members Login
The Guild of Property Professionals Trading Address: 121 Park Lane, London W1K 7AG. GPEA Limited. Registered in England & Wales.  Company No: 02819824.  Registered Office Address: 2 St. Stephen's Court, St. Stephen's Road, Bournemouth, Dorset, England, BH2 6LA.  VAT Registration No: 576 8795 61
Book a Property Valuation Update Cookies Preferences