150 Lakemount Road, Omagh

Guide Price
£75,000

Not Specified for sale in Omagh

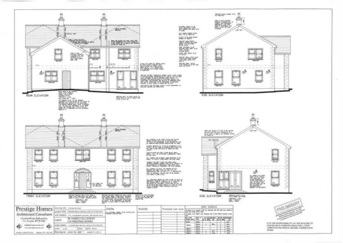
  • Planning Ref: LA/10/2016/0442/F
  • Planning Approval For Detached 4 Bedroom Bungalow
  • Just Off The Lakemount Road
  • 2.1 Miles To Dromore Village, 6.4 Miles To Fintona
  • 11 Miles To Omagh Town
  • Set In A Rural Position
  • Potential For A Family Home

A Partially Constructed Residence Set Within A Country Location.

Located within a central location, convenient to both Dromore and Fintona villages, 11 miles from Omagh, set within a popular location, this is an opportunity to purchase a partially constructed site in an area where the availability of resale homes is very limited.

Set with Full Planning approval for a detached 4 bedroom bungalow, this provides potential for an attractive family home set in a central location.

Planning Ref: LA10/2016/0442/F.

Notice
Please note we have not tested any apparatus, fixtures, fittings, or services. Interested parties must undertake their own investigation into the working order of these items. All measurements are approximate and photographs provided for guidance only.

Property Ref: 1014802

Share:

Similar Properties

Clahernagh, Corraghy Road, Rosslea, Enniskillen

Not Specified | Guide Price £70,000

Samsonagh Road, Boho, Enniskillen

Cottage | Guide Price £78,000

3 Church Road, Ederney, Enniskillen

Commercial Property | POA

21 Kinine Road, Trillick, Omagh

1 Bedroom Detached House | £80,000

Smyth Leslie & Co (Enniskillen)

Enniskillen, Fermanagh, BT74 7BW

028 6632 0456

How much is your home worth?

Use our short form to request a valuation of your property.

Request a Valuation

Mortgage Calculator

Amount Borrowed: £
Total Amount Repayable: £
Total Monthly Payment: £
©2026 The Guild of Property Professionals. All rights reserved. Terms and Conditions | Privacy Policy | Cookie Policy | Complaints Policy | Members Login
The Guild of Property Professionals Trading Address: 121 Park Lane, London W1K 7AG. GPEA Limited. Registered in England & Wales.  Company No: 02819824.  Registered Office Address: 2 St. Stephen's Court, St. Stephen's Road, Bournemouth, Dorset, England, BH2 6LA.  VAT Registration No: 576 8795 61
Book a Property Valuation Update Cookies Preferences